Rakennuksen kuvaus: Antinkatu 1 eli A1 on historiallinen elokuvatarkastamon rakennus, joka on valmistunut vuonna 1952. Tämä funkkiskiinteistö on sane...
Vapaat toimitilat Kamppi (Helsinki)
-
KohdenostoTallenna1 127 m²ToimistotKysy hintaa!
-
KohdenostoTallenna121 m²Liiketilat
Vuokrattavana katutason 121 m² kokoinen kahvila- tai baaritila erinomaisella sijainnilla. Tilassa on enintään noin 55 asiakaspaikkaa, ja pihalle on ma...
Kysy hintaa! -
KohdenostoTallenna2 124 m²Toimistot
Terassillinen laadukas toimisto paraatipaikalla aivan Kampin sydämessä. Hyväkuntoiset tilat ovat muuttovalmiit, mutta tarvittaessa voidaan tehdä muut...
Kysy hintaa! -
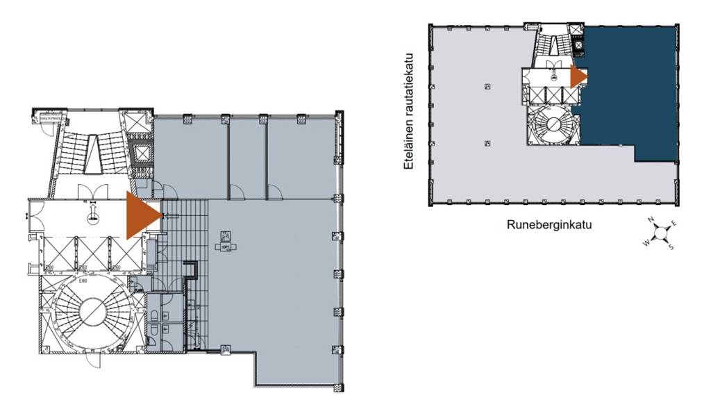
OmistajaTallenna171 m²Toimistot
Entinen sanomalehti Hufvudstadsbladetin liikepalatsi. Lehden entiset painotilat on uudistettu katetuksi atriumiksi, jossa on ravintola- ja liiketil
Kysy hintaa! -
Tallenna
-
Tallenna469 m²Liiketilat
Vuokrattavana katutason 469 m2 liiketila erinomaiselta paikalta Helsingin ydinkeskustasta. Liiketila on mahdollista muuntaa myös esim. baariksi tai ra...
Kysy hintaa! -
-
Tallenna36 m²Liiketilat
Vuokrataan katutason liiketilaa Radisson Blu Hotellin yhteydessä. Radisson Blu Helsinki
Kysy hintaa! -
Tallenna70 m² - 500 m²Toimistot
Toimitilaa legendaarisesta kiinteistöstä Kampin sydämestä!
Kysy hintaa!Tallenna153 m²ToimistotVuokrattavana 9. kerroksen 153 m² toimistotila Helsingin ydinkeskustassa. Toimistokerroksista on hissiyhteys autohalliin. Kaikki Helsingin keskus...
Kysy hintaa! -
-
Tallenna100 m² - 400 m²Toimistot
Moninaista tilaa yrittää Kampissa
Kysy hintaa!Tallenna250 m²LiiketilatVapaana kaksi tilaa 252m2 ja 260m2 liiketilat. Kiinteistö Oy Ruoholahdenkatu 8 tarjoaa erinomaisia liike- ja toimistotiloja Helsingin ydinkeskustan...
Kysy hintaa!Tallenna252 m²ToimistotRakennuksen kuvaus: Ruoholahdenkatu 8 on vuosina 1956 ja 1964 rakennettu toimistokiinteistö Kampissa, joka peruskorjattiin täydellisesti vuonna 2005....
Kysy hintaa! -
Tallenna180 m²Toimistot
Ruoholahdenkatu 14 sijaitsee keskustan tuntumassa hyvien yhteyksien varrella. Kiinteistöä on uudistettu aulan ja tilojen osalta ajan saatossa ja se ta...
Kysy hintaa!Tallenna396 m²ToimistotRuoholahdenkatu 14 sijaitsee Kampissa, noin 500 metrin päässä. Kampin kauppakeskuksesta ja metroasemasta. Kohteen hyviä julkisen liikenteen yhteyksiä ...
Kysy hintaa!Tallenna180 m²ToimistotKysy hintaa! -
Tallenna16 m²Toimistot
Vuokrattavana kalustettu toimistohuone ( 16 m2) POOL Work- alueelta. Vuokra 1250€/kk + alv. POOLin studiovuokraan sisältyvät valmiit verkkoyhteydet, k...
Kysy hintaa!Tallenna46 m²ToimistotRuoholahdenkatu 21 rakennettiin vuonna 1952 Uuden Suomen kirjapainoa varten. Rakennus toimi kirjapaino- ja mediatalona 80-luvulle saakka. Peruskorjauk...
Kysy hintaa!Tallenna46 m²ToimistotTämä valmiiksi kalustettu ja sisustettu toimistotila sijaitsee toisessa kerroksessa ja on 46m2 kokoinen, tarjoten juuri sopivasti tilaa pienelle yrity...
Kysy hintaa!Tallenna155 m²ToimistotVuokrataan 155m2 toimistotila huippusuositusta Kiilasta. Toimistosta avautuvat upeat näkymät sekä Ruoholahteen että Kamppiin kauniisti remontoitujen r...
Kysy hintaa!Tallenna500 m²ToimistotRuoholahdenkatu 21 eli Kiila on käytännössä aina täynnä. Se on niin suosittu että siitä ei oikein koskaan ole tiloja vapaana. Eikä ole nytkään nopeast...
Kysy hintaa!TallennaTallennaTallenna -
Tallenna163 m²Toimistot
Vuokrattavana toimistotila kulmakiinteistöstä osoitteessa Köydenpunojankatu 8/ Ruoholahdenkatu 26. Tila sijaitsee katutasossa taloyhtiön sisäpihalla. ...
Kysy hintaa!Tallenna
241 m²LiiketilatMuut+1Vuokrataan monitoimitila Ruoholahdesta, joka soveluu liiketilaksi, toimistotilaksi tai näyttelytilaksi. Näkyvä sijainti Ruoholahdenkadun ja Köydenpuno...
Kysy hintaa! -
Tallenna498 m²Toimistot
Tyylikäs, toisen kerroksen 498 m² toimisto omalla sisäänkäynnillä, Kampin sydämestä Salomonkadulta. Tämä avara 498 m²:n toimitila sijaitsee rakennu...
Kysy hintaa! -
Tallenna150 m² - 650 m²Toimistot
Näyttävää toimitilaa keskustan ytimestä!
Kysy hintaa! -
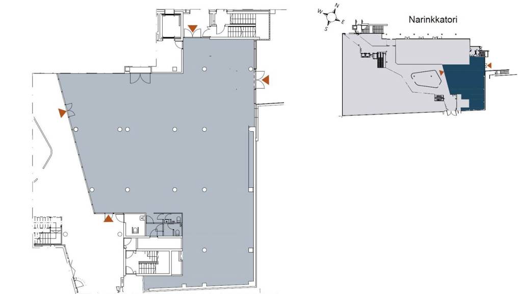
Tallenna165 m²Liiketilat
Siisti 165 m² liiketila loistavalta paikalta Forum-korttelista. Siisti katutason 165 m² liiketila Maalaisten talosta, loistavalta kauppapaikalta Fo...
Kysy hintaa!Tallenna
165 m²LiiketilatVuokrataan katutason liiketila loistopaikalla kauppakeskus Forumin korttelissa. Sisäänkäynti Simonkadulta sekä Forumin kauppakäytävältä. KATSO POHJAKU...
Kysy hintaa! -
-
Tallenna62 m²Liiketilat
Pieni liiketila Simonkentän kauppakujan varrella. Ikkunat niin vilkkaalle Kampin ja Forumin väliselle kujalle kuin Narinkkatorillekin. Ei sovellu ravi...
Kysy hintaa!Tallenna425 m²LiiketilatKatutason siisti liiketila erinomaiselta kauppapaikalta Vuokrattavissa katutason siisti liiketila joka sijaitsee yhdyskäytävän varrella. Kiinteistö...
Kysy hintaa!TallennaTallenna425 m²LiiketilatVuokrataan 425 m2 liiketila Helsingin ydinkeskustassa, Simonkentän kauppakujalla. Sijainti vilkkaiden asiakasvirtojen äärellä Kampin ja Forumin väliss...
Kysy hintaa!Tallenna425 m²LiiketilatSimonkatu 9:ssä on nyt tarjolla erikokoisia liiketiloja huippusijainnilla, aivan Forumin ja Kampin yhdyskäytävän varrella. Vilkkaasti liikennöity kaup...
Kysy hintaa!Tallenna
425 m²LiiketilatVuokrattavana ihana liiketila kauppakujan varrella. Vuokrattavana ihana liiketila kauppakujan varrella. Tila soveltuu myös arvonlisäverottomalle kä...
Kysy hintaa!Tallenna
425 m²LiiketilatVuokrataan edustava liiketila vilkkaalla sijainnilla, Kampin liikekeskuksen ja Forumin yhdistävällä kauppakäytävältä. SOITA ja SOVI ESITTELY: 09 7745 ...
Kysy hintaa!Tallenna
425 m²LiiketilatVuokrataan Simonkentän uudistuvalta Kauppakujalta liiketiloja. Ohessa havainnollistavia kuvia uudistuvasta kauppakäytävästä. Erinomaiset kulkuyhtey...
Kysy hintaa!TallennaTallenna -
-
Tallenna200 m²Muut
Vuokrattavana äyttävä ja tilava 265 m² ravintolatila Kampin kauppakeskuksen 5. kerroksessa. Tilaan kuuluu lisäksi 66 m² kattoterassi, joka tarjoaa upe...
Kysy hintaa! -
OmistajaTallenna
267 m²ToimistotVuokrattavana moderni kuudennen kerroksen toimistotila halutulla ja keskeisellä sijainnilla Kampissa, hyvillä näkymillä. Toimitilassa on monipuolinen ...
Kysy hintaa! -









































































































































































































































































































































































