Uudet käyttö- ja sopimusehdot
Päivitämme käyttö- ja sopimusehtojamme. Uudet ehdot ovat voimassa 1.5.2025 alkaen. Tutustu ehtoihin
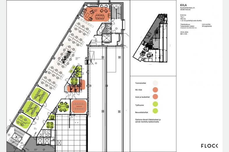
Ruoholahdenkatu 21 Ruoholahti, Helsinki
00180Tyyppi
Toimisto
Koko
465 m²
Kerros
6 / 7
Vuokra
Kysy hintaa!
Upeilla maisemilla ja omalla terassilla varustettu 443 m² toimisto Ruoholahdessa
Kuudennen kerroksen muuttovalmis, tyylikkäällä omalla terassilla varustettu tila.
Tila on 443 m² + 22 m² jyvitettyä tilaa.
Merellisen Ruoholahden, hektisen Baanan ja sykkivän Kampin kainaloon kiilautuu teollisuushenkinen kortteli, joka toimi kirjapaino- ja mediatalona aina 80-luvulle saakka. Peruskorjauksen myötä kiinteistö on palautettu alkuperäiseen loistoonsa näyttävine ristikkoikkunoineen. Kiilan modernit ja joustavat toimitilat taipuvat moneen tarkoitukseen. Rakennuksesta löytyy joustavan työn konsepti POOL, josta löytyy pieniä studioita sekä erilaisia neuvottelu- ja projektityötiloja. Niitä voivat vuokrata talon käyttäjät ja ulkopuoliset yritykset. Toimitilaa on seitsemässä kerroksessa peräti 10 000 neliötä.
Perustiedot
Tyyppi:
Toimisto
Sopimustyyppi:
Vuokrataan
Osoite:
Ruoholahdenkatu 21, 00180 Helsinki
Kaupunginosa:
Ruoholahti
Tilan koko
Kokonaispinta-ala:
465 m²
Rakennustiedot
Rakennusvuosi:
1952
Energialuokka:
Ei lain edellyttämää energiatodistusta
Lisätiedot
Kerros:
6 / 7
Ympäristö
Liikenneyhteydet:
Metroasema 800 m, Raitiovaunupysäkki 200 m, Bussipysäkki 200 m, Juna-asema 2,1 km, Lentoasema 21,6 km
Kartta
Tietoa ilmoittajasta
ScanReal Oy LKV
Näytä kaikki saman ilmoittajan kohteetOpus Business Park, Hitsaajankatu 24
00810
Helsinki
















