Uudet käyttö- ja sopimusehdot
Päivitämme käyttö- ja sopimusehtojamme. Uudet ehdot ovat voimassa 1.5.2025 alkaen. Tutustu ehtoihin
Ruoholahdenkatu 8 Kamppi, Helsinki
00180Tyyppi
Toimisto
Koko
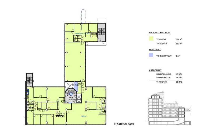
260 m²
Kerros
3 / 7
Vuokra
Kysy hintaa!
Vuokrataan siistikuntoista toimistotilaa, joka räätälöidään käyttäjän tarpeiden mukaan. Keskeinen sijainti Kampin keskuksen ja Ruoholahden läheisyydessä. Toimistossa ilmastointi ja Cat 6 kaapelointi. Sisäkuvat ovat yleiskuvia kiinteistön tiloista ja edustavat tilojen yleistä tasoa. Ota yhteyttä ja sovi esittely, vuokrauspalvelumme on tilanhakijalle maksuton.
Toimistotalo joka on peruskorjattu vuonna 2005.
Sijainti: Lapinlahdenkadun puistikon äärellä.
Perustiedot
Tyyppi:
Toimisto
Sopimustyyppi:
Vuokrataan
Osoite:
Ruoholahdenkatu 8, 00180 Helsinki
Kaupunginosa:
Kamppi
Tilan koko
Kokonaispinta-ala:
260 m²
Rakennustiedot
Energialuokka:
Ei lain edellyttämää energiatodistusta
Lisätiedot
Kerros:
3 / 7
Ympäristö
Pysäköinti:
Sisäpihalla ja autohallissa yhteensä 50 autopaikkaa.
Lähipalvelut:
Kaikki keskustan palvelut.
Liikenneyhteydet:
HSL, Metro
Kartta
Tietoa ilmoittajasta

Senaatin Notariaatti Oy LKV
Näytä kaikki saman ilmoittajan kohteetLämmittäjänkatu 4 A
00880
HELSINKI


















