Uudet käyttö- ja sopimusehdot
Päivitämme käyttö- ja sopimusehtojamme. Uudet ehdot ovat voimassa 1.5.2025 alkaen. Tutustu ehtoihin
Urho Kekkosen katu 4-6 Kamppi, Helsinki
00100Tyyppi
Toimisto
Koko
180 m²
Kerros
4
Vuokra
Kysy hintaa!
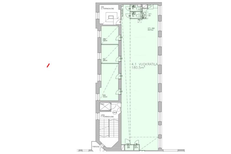
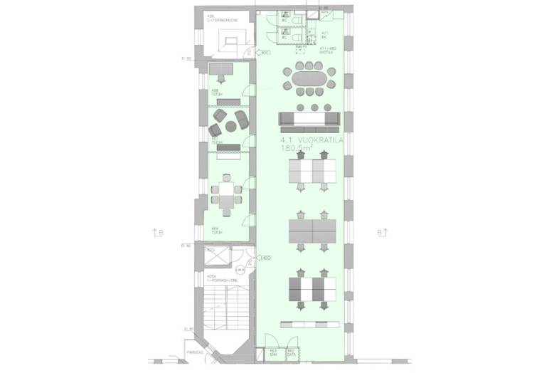
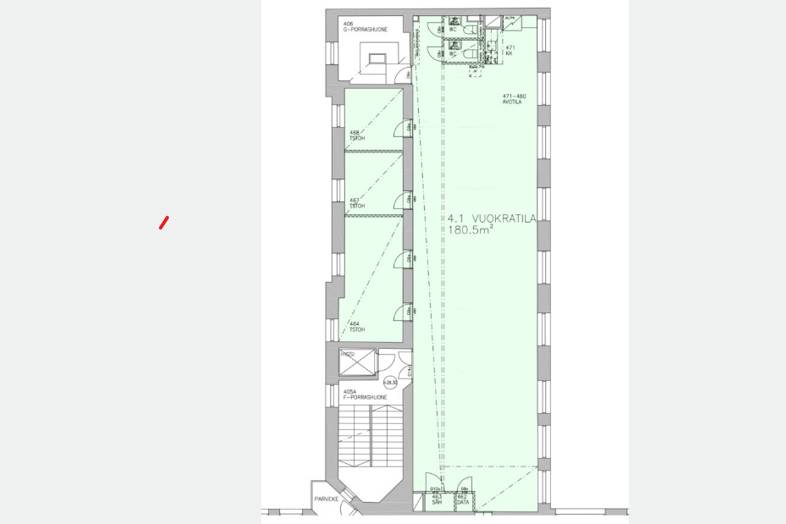
HÄMÄLÄISTEN TALO - toimisto 180,5m2.
Tämä kombi-toimistotila sijaitsee 4. krs. Käynti rauhallisen sisäpihan kautta.
Avotilan lisäksi 3 huonetta, keittiö ja 2 wc-tilaa.
Koneellinen ilmanvaihto, huonekohtainen kaukojäähdytys ja kuituyhteys CAT6-sisäverkolla. Mahdollisuus autopaikkaan.
Kohde vuokrattavissa myös alvittomille käyttäjille.
Vapautuminen kesä/2024. KUVAT YLEISKUVIA KIINTEISTÖSTÄ
Lisätietoja ja näytöt numerosta 040 7070 321 / Heikki
Perustiedot
Tyyppi:
Toimisto
Sopimustyyppi:
Vuokrataan
Osoite:
Urho Kekkosen katu 4-6, 00100 Helsinki
Kaupunginosa:
Kamppi
Tilan koko
Kokonaispinta-ala:
180 m²
Lisätiedot
Kerros:
4
Ympäristö
Liikenneyhteydet:
Metroasema, bussiterminaali ja usea raitiovaunulinja löytyvät aivan vierestä.
Autoilijat voivat hyödyntää viereisiä Forumin ja Kampin parkkihalleja.
Kartta
Tietoa ilmoittajasta

CRE PREMISES
Näytä kaikki saman ilmoittajan kohteetVantaankoskentie 14
01670
VANTAA


























