Uudet käyttö- ja sopimusehdot
Päivitämme käyttö- ja sopimusehtojamme. Uudet ehdot ovat voimassa 1.5.2025 alkaen. Tutustu ehtoihin
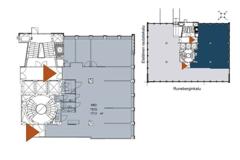
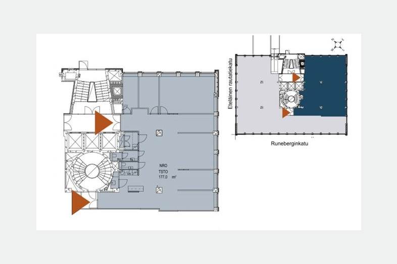
Runeberginkatu 5 Kamppi - Ruoholahti, Helsinki
00100Tyyppi
Toimisto
Koko
177 m²
Kerros
5
Vuokra
Kysy hintaa!
Perustiedot
Tilan koko
Rakennustiedot
Lisätiedot
Kartta
Tietoa ilmoittajasta
Juhola Asset Management Oy
Näytä kaikki saman ilmoittajan kohteetItsehallintokuja 4
02600
Polaris Business Park
Juhola Asset Management Oy on vuodesta 1995 asti toiminut kiinteistöjen varainhoitopalveluyritys. Vahva ja laaja-alainen kokemuksemme kiinteistöalalta antaa meille vankan pohjan toimitilavuokrauksen markkinoilla. Autamme ja neuvomme asiakkaitamme tilatarpeen kartoittamisesta tilan valmistumiseen saakka. Kauttamme löydätte parhaiten tarpeitanne vastaavat toimitilat. Tarjoamme kiinteistöjä omistaville yrityksille ja yhteisöille mahdollisuuden antaa laaja vastuu kiinteistösalkustaan asiantunteviin käsiin ja vapauttaa resursseja yrityksen pääliikeidean toteuttamiseen. Palveluvalikoimamme kattaa omistajahallinnon ja rahastohallinnon, sijoituskiinteistöjen isännöinnin, taloushallinnon, rakennuttamistoiminnan, kiinteistöjen kehittämisen, kiinteistöarvioinnin sekä kiinteistöjen vuokraus-, osto- ja myyntitoiminnan.












































































