Salomonkatu 17 Kamppi, Helsinki

00100

Tyyppi

Toimisto

Koko

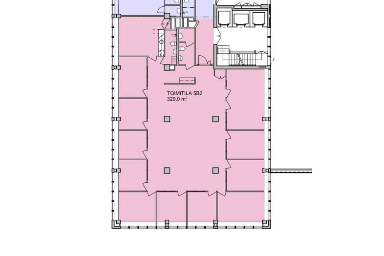
329 m²

Kerros

5

Vuokra

Viidennen kerroksen toimisto läpitalon kkunoilla. Tila koosttu erikokoisista työhuoneista sekä tauko- ja wc-tiloista. Autotalon siistit ja valoisat toimitilat tarjoavat viihtyisän työympäristön. Autotalokortteli sijaitsee näkyvällä paikalla Kampin kauppakeskuksen vieressä. Kohteeseen on erinomaiset julkiset kulkuyhteydet metrolla, raitiovaunulla ja busseilla. Yksityisautoille on maanalaista pysäköintitilaa korttelin omassa autohallissa. Hiljattain remontoitu näyttävä aulatila ottaa vieraat ja työntekijät vastaan tyylillä. Ennen Autotalon rakentamista paikalla oli jo 1800-luvulla rakennettuja kasarmeja, jotka alun perin muodostivat Turun kasarmiin liittyneen varuskunnan läntisimmän osan. Autotalon rakennutti Helsingin Autotalo Oy, jonka perusti autojen maahantuontiliike Korpivaara & Halla Oy. Talon suunnittelivat arkkitehdit Veli Valorinta ja Eino Tuompo. Alunperin talossa sijaitsi autokauppa ja huoltoasema eli nimensä mukaista toimintaa. Nyt autot ajavat ohitse ja vuokralaiset talon halliin, talon tiloissa on moderneja liike- ja toimistotiloja. Me Croisettella autamme teitä löytämään teille parhaat tilat! Olemme puolueettomia asiantuntijoita ja tunnemme toimitilamarkkinat, talot sekä tilat vankalla kokemuksella. Meillä on välityksessä kaikki toimitilat ja tiedämme niiden alustavat vuokratasot. Tehtävämme on tehdä toimitilahaustanne onnistunut ja helppo. Saamme palkkiomme kiinteistönomistajalta, joten sinulle palvelumme on täysin maksuton.

Perustiedot

Tyyppi:
Toimisto
Sopimustyyppi:
Vuokrataan
Osoite:
Salomonkatu 17, 00100 Helsinki
Kaupunginosa:
Kamppi

Tilan koko

Kokonaispinta-ala:
329 m²

Lisätiedot

Kerros:
5

Kartta

Ota yhteyttä

Croisette Finland Oy logotyyppi
CV
Croisette Vuokraus
Näytä puhelinnumero

Lähetä yhteydenottopyyntö

Tietosuojaseloste
This site is protected by reCAPTCHA and the Google Privacy Policy and Terms of Service apply.

Tietoa ilmoittajasta

Croisette Finland Oy logotyyppi

Croisette palvelee paikallisesti Helsingissä, Tampereella, Espoossa ja Vantaalla. Löydämme sinulle juuri sinulle parhaan toimitilan riippumatta omistajasta. Croisette Real Estate Partner on nopeiten kasvava ja innovatiivisin konsultointiyritys Pohjoismaiden kiinteistöalalla. Me edustamme alan kehittyneintä ajattelua. Omistautunut tiimimme tarjoaa laadukasta neuvonantoa vuokrauksen, kiinteistötransaktioiden, sekä arvioinnin ja analyysien parissa.

Ilmoittajan muut kohteet