Uudet käyttö- ja sopimusehdot
Päivitämme käyttö- ja sopimusehtojamme. Uudet ehdot ovat voimassa 1.5.2025 alkaen. Tutustu ehtoihin
Urho Kekkosen katu 4-6 Kamppi, Helsinki
00100Tyyppi
Toimisto
Koko
168 m²
Vuokra
Kysy hintaa!
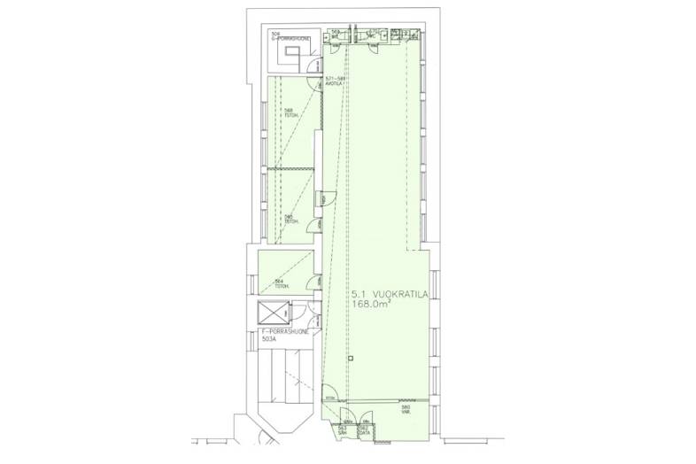
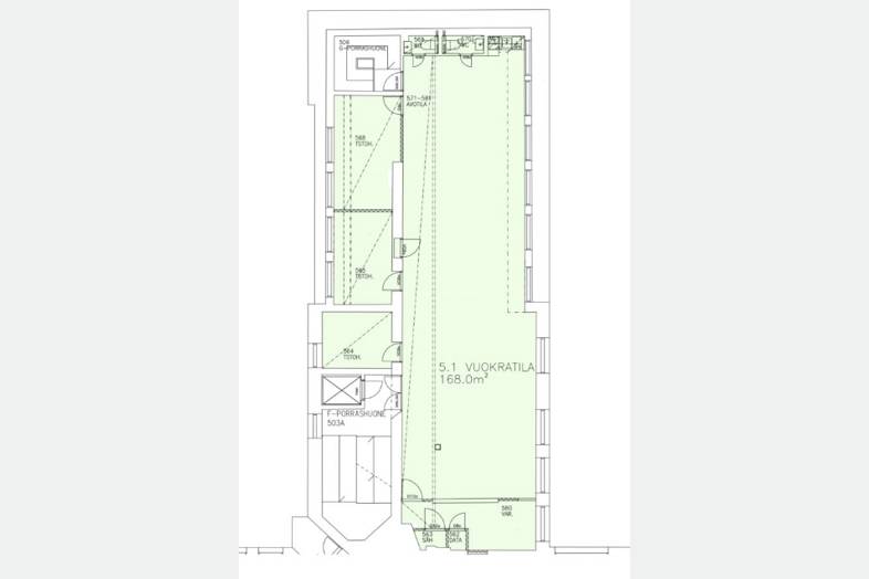
HÄMÄLÄISTEN TALO - toimisto 168m2.
Tämä kombi-toimistotila sijaitsee 5. krs. Käynti rauhallisen sisäpihan puolelta.
Avotilan lisäksi 3 huonetta, keittiö, 2 wc-tilaa ja käsivarasto.
Koneellinen ilmanvaihto, huonekohtainen kaukojäähdytys ja kuituyhteys CAT6-sisäverkolla. Mahdollisuus autopaikkaan.
Kohde vuokrattavissa myös alvittomille käyttäjille.
Vapautuminen kesä/2024. KUVAT YLEISKUVIA KIINTEISTÖSTÄ
Lisätietoja ja näytöt numerosta 040 7070 321 / Heikki
Perustiedot
Tyyppi:
Toimisto
Sopimustyyppi:
Vuokrataan
Osoite:
Urho Kekkosen katu 4-6, 00100 Helsinki
Kaupunginosa:
Kamppi
Tilan koko
Kokonaispinta-ala:
168 m²
Ympäristö
Liikenneyhteydet:
Metroasema, bussiterminaali ja usea raitiovaunulinja löytyvät aivan vierestä.
Autoilijat voivat hyödyntää viereisiä Forumin ja Kampin parkkihalleja.
Kartta
Tietoa ilmoittajasta

CRE PREMISES
Näytä kaikki saman ilmoittajan kohteetVantaankoskentie 14
01670
VANTAA




























