Uudet käyttö- ja sopimusehdot
Päivitämme käyttö- ja sopimusehtojamme. Uudet ehdot ovat voimassa 1.5.2025 alkaen. Tutustu ehtoihin
Urho Kekkosen katu 4-6 Kamppi, Helsinki
00100Tyyppi
Toimisto
Koko
348 m²
Vuokra
Kysy hintaa!
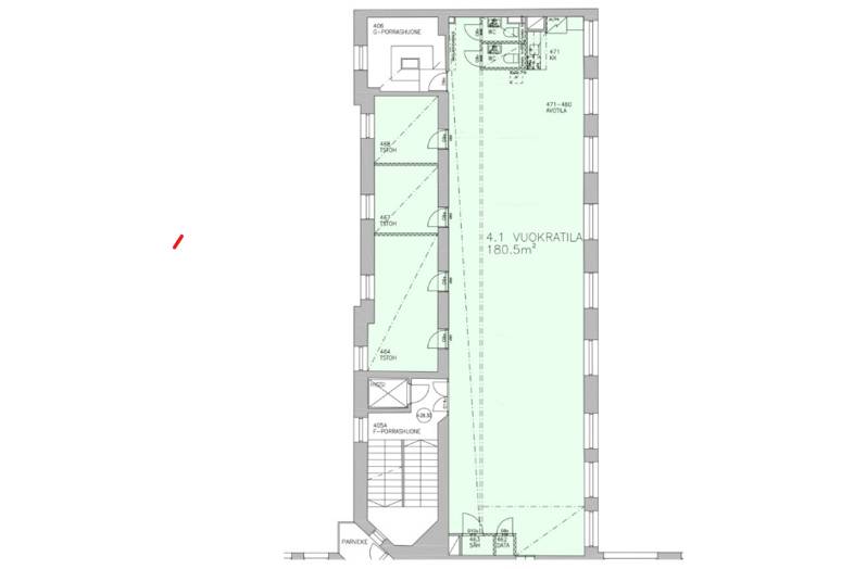
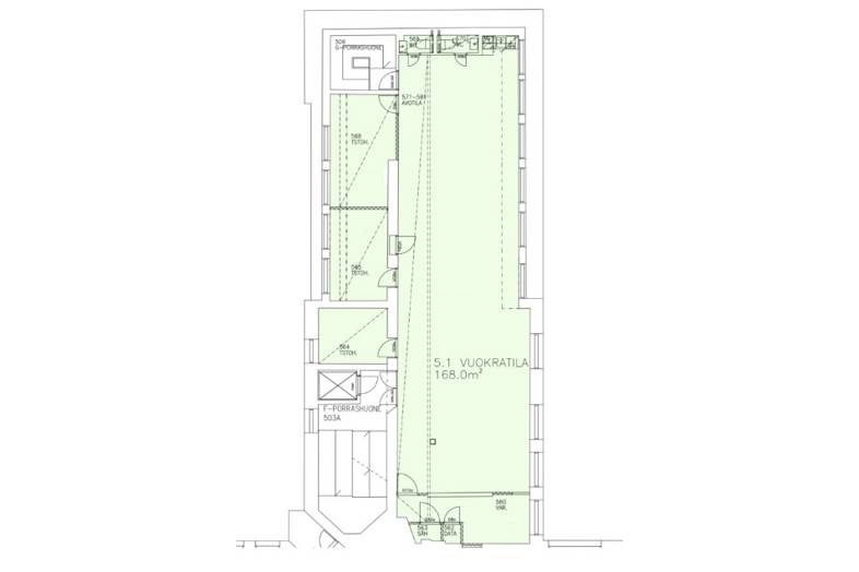
HÄMÄLÄISTEN TALO - toimisto 348,5m2.
Tämä kombi-toimistotila jakautuu 4. ja 5. kerrokseen. Käynti rauhallisen sisäpihan puolelta.
Kahden avotilan lisäksi 6 huonetta, 2 keittiötä, 4 wc-tilaa ja käsivarasto.
Koneellinen ilmanvaihto, huonekohtainen kaukojäähdytys ja kuituyhteys CAT6-sisäverkolla.
Kohde vuokrattavissa myös alvittomille käyttäjille. Mahdollisuus autopaikkaan.
Vapautuminen kesä/2024. KUVAT YLEISKUVIA KIINTEISTÖSTÄ
Lisätietoja ja näytöt numerosta 040 7070 321 / Heikki
Perustiedot
Tyyppi:
Toimisto
Sopimustyyppi:
Vuokrataan
Osoite:
Urho Kekkosen katu 4-6, 00100 Helsinki
Kaupunginosa:
Kamppi
Tilan koko
Kokonaispinta-ala:
348 m²
Ympäristö
Liikenneyhteydet:
Metroasema, bussiterminaali ja usea raitiovaunulinja löytyvät aivan vierestä.
Autoilijat voivat hyödyntää viereisiä Forumin ja Kampin parkkihalleja.
Kartta
Tietoa ilmoittajasta

CRE PREMISES
Näytä kaikki saman ilmoittajan kohteetVantaankoskentie 14
01670
VANTAA




























