Uudet käyttö- ja sopimusehdot
Päivitämme käyttö- ja sopimusehtojamme. Uudet ehdot ovat voimassa 1.5.2025 alkaen. Tutustu ehtoihin
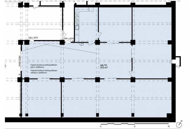
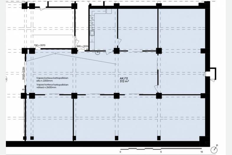
Salomonkatu 17 B Keskusta, Helsinki
00100Tyyppi
Varastotila
Koko
312 m²
Vuokra
Kysy hintaa!
Perustiedot
Tilan koko
Kartta
Tietoa ilmoittajasta
REpoint Toimitilat Oy
Näytä kaikki saman ilmoittajan kohteetItälahdenkatu 22b
00210
HELSINKI
Repoint on pääkaupunkiseudun toimitilavuokraukseen keskittynyt välitysliike. Toimintamme perustuu laadukkaaseen ja luotettavaan palveluun, sekä tilaa hakevan yrityksen toiminnan ja tarpeiden ymmärtämiseen. Soita meille 020 730 4530. Palvelumme on tilanhakijalle ilmainen.


























































































































