Uudet käyttö- ja sopimusehdot
Päivitämme käyttö- ja sopimusehtojamme. Uudet ehdot ovat voimassa 1.5.2025 alkaen. Tutustu ehtoihin
Salomonkatu 17 Kamppi, Helsinki
00100Tyyppi
Toimisto
Koko
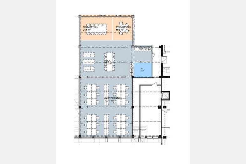
226 m²
Kerros
3
Vuokra
Kysy hintaa!
Vapaana Autotalon A-portaan avo-/kombitoimistotilaa, joka saneerataan vuokralaisen toiveiden mukaiseksi. Tilassa on ilmastointi ja se voidaan tarpeen mukaan jakaa kahdelle käyttäjälle.
Kiinteistö Helsingin Autotalo peruskorjattu ja talotekniikka uudistettu.
Sijainti: Kamppi
Perustiedot
Tyyppi:
Toimisto
Sopimustyyppi:
Vuokrataan
Osoite:
Salomonkatu 17, 00100 Helsinki
Kaupunginosa:
Kamppi
Tilan koko
Kokonaispinta-ala:
226 m²
Rakennustiedot
Energialuokka:
Ei lain edellyttämää energiatodistusta
Lisätiedot
Kerros:
3
Ympäristö
Pysäköinti:
Oma autohalli ja pyöräparkki.
Lähipalvelut:
Kampin kauppakeskus 150 metriä.
Liikenneyhteydet:
Metron, keskusbussiaseman ja useiden raitiovaunulinjojen vieressä sekä juna-asema kävelymatkan päässä.
Kartta
Tietoa ilmoittajasta

Senaatin Notariaatti Oy LKV
Näytä kaikki saman ilmoittajan kohteetLämmittäjänkatu 4 A
00880
HELSINKI






















