Helposti saavutettava logistiikka-, toimisto- ja tuotantotilarakennus Konalassa Vihdintien varrella, Ruosilan logistiikka-alueella. Kohteesta on vapau...
Vapaat toimitilat Konala (Helsinki)
-
KohdenostoTallenna1 676 m²TuotantotilatVarastotKysy hintaa!
-
KohdenostoTallenna317 m²Toimistot
Vuokrattavana toisen kerroksen toimistotila Helsingin Konalassa sijaitsevasta logistiikkakiinteistöstä. Erinomainen sijainti Vihdintien varrella, nope...
Kysy hintaa! -
KohdenostoTallenna600 m²Toimistot
Toimistotilaa Konalassa teollisuuskiinteistön yhteydessä. Vuokrattavissa 1000m2 toimistotilaa kiinteistön kolmannesta kerroksessa. Tila on siistiss...
Kysy hintaa! -
Tallenna1 230 m²Liiketilat
Vuokrattavana 1230 m² liiketila Helsingin Konalassa sijaitsevan Kauppakeskus Ristikon toisessa kerroksessa. Kiinteistön omat palvelut tekevät Rist...
Kysy hintaa!Tallenna1 230 m²LiiketilatVuokrattavana 2. kerroksen 1230 m2 liiketila. Liiketilojen vuokraus ja tiedustelut: C&W Retail Services, puh. 010 836 8418, retail.fi@cushwake.com...
Kysy hintaa!Tallenna -
Tallenna1 778 m²Varastot
Vuokrataan siistiä varasto- /tuotantotilaa keskeiseltä sijainnilta Konalasta. Tilan vapaa korkeus on noin 5 metriä ja siihen on lastauslaituriyhteys. ...
Kysy hintaa!TallennaTallenna -
Tallenna
-
KohdenostoTallenna474 m²Toimistot
Vuokrataan siisti avotoimistoa ja työhuoneita sisältä kokonaisuus, jossa myös useampia neuvottelu-/tiimityötiloja. Avokeittiö ja asialliset sosiaaliti...
Kysy hintaa!
-
Tallenna1 162 m²TuotantotilatVarastot
Tuotanto- ja varastotilaa Konalassa
Kysy hintaa! -
Tallenna50 m² - 5 100 m²ToimistotTuotantotilat+1
Avaraa ja toimivaa tilaa keskeisesti Konalasta
Kysy hintaa! -
-
-
-
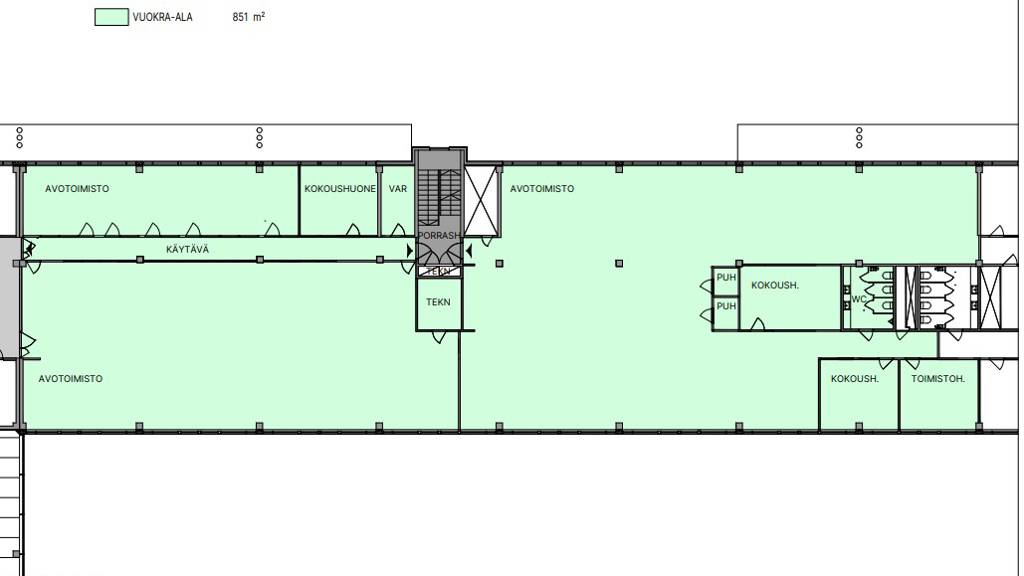
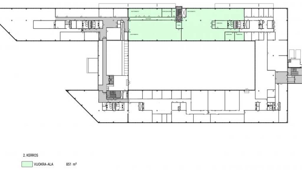
Tallenna851 m²Toimistot
Vuokrataan moderni 851 m² toimistotila Konalasta. Tila voidaan räätälöidä tulevan vuokralaisen tarpeisiin. Kiinteistön vuokralaisia palvelevat Faz...
Kysy hintaa!OmistajaTallenna2 330 m²ToimistotToimitilat Helsinki vuokrataan toimisto 2330 m² Konalan helmi! Modernia toimistoa pääkonttoritasoisen kiinteistön toisessa kerroksessa. Toimistosta ...
Kysy hintaa!Tallenna2 330 m²ToimistotVuokrataan modernia toimistotilaa Konalasta Konalasta hyvällä sijainnilla vapaana modernia monikäyttöistä toimistotilaa. Pääkonttoritasoisesta...
Kysy hintaa!Tallenna
2 330 m²ToimistotModernia toimistoa pääkonttoritasoisen kiinteistön toisessa kerroksessa. Tilasta on mahdollisuus rakentaa käynti toimistotalon kattotasanteelle. T...
Kysy hintaa!Tallenna
2 330 m²ToimistotVuokrattavana modernia toimistotilaa kiinteistön toisessa kerroksessa. Vuokrattavana modernia toimistotilaa kiinteistön toisessa kerroksessa. Toimi...
Kysy hintaa!Tallenna2 330 m²ToimistotMonien mahdollisuuksien toimisto Länsi-Helsingistä Konalasta Vihdintien varrelta.
Kysy hintaa!Tallenna130 m² - 3 500 m²ToimistotKysy hintaa!TallennaTallennaTallenna2 330 m²ToimistotKysy hintaa! -
Tallenna1 m² - 30 m²Varastot
Turvallista varastotilaa keskeisellä sijainnilla Konalassa, 0,75-30 m2. Ei määräaikaa tai vuokravakuutta. Ystävällinen asiakaspalvelu.
Kysy hintaa! -
Tallenna500 m²Toimistot
Etsitkö tilavaa toimistotilaa, joka sijaitsee kätevästi Helsingin Konalassa, lähellä Vihdintietä? Paperitie 7 tarjoaa ainutlaatuisen mahdollisuuden yr...
Kysy hintaa! -
Tallenna8 200 m²Liiketilat
Toimitilahanke Konalassa näkyvällä paikalla
Kysy hintaa! -
Tallenna560 m²Toimistot
Nyt vuokrattavissa ylimmän kerroksen valoisa toimisto. Tila koostuu erillisistä huoneista, mutta tilaa on mahdollista muokata vuokralaisen toiveitten ...
Kysy hintaa!Tallenna742 m²ToimistotValoisa toimisto toisessa ja kolmannessa kerroksessa vapaana. Kolmannessa kerroksessa lisävaloa tuovat kattoikkunat sekä molemmissa kerroksissa mukavu...
Kysy hintaa! -
OmistajaTallenna60 m²Toimistot
Toimitilat Helsinki vuokrataan toimisto 60 m² Valoisa avotoimistotila rakennuksen ylimmässä kerroksessa. Toimitilassa on yhteiset keittiö- ja sosiaa...
Kysy hintaa!Tallenna
60 m²ToimistotVuokrataan valoisa avotoimistotila ylimmästä kerroksesta. Yhteiset keittiö- ja sosiaalitilat. Tilakohtainen jäähdytys. Vuonna 1972 rakennettu monik...
Kysy hintaa!Tallenna60 m²ToimistotValoisa, avotoimistotila rakennuksen ylimmässä kerroksessa. Valoisa, avotoimistotila rakennuksen ylimmässä kerroksessa. Yhteiset keittiö- ja sosiaa...
Kysy hintaa!Tallenna60 m²ToimistotVuokrataan edullista ja siistiä toimistotilaa, vuokrattava tila on 3. kerroksen 60m2 toimistotila. Valoisaa avotoimistotilaa vapaana Konalassa! ...
Kysy hintaa!Tallenna60 m²ToimistotValoisa avotoimistotila rakennuksen ylimmässä kerroksessa. Yhteiskäyttöiset keittiö- ja sosiaalitilat.
Kysy hintaa!Tallenna60 m²ToimistotVapaana valoisaa toimistotilaa Konalasta Ristipellontieltä Konalasta ylimmän kerroksen toimistotilat etsivät nyt uutta vuokralaista. Toimitilan...
Kysy hintaa!Tallenna60 m²ToimistotTämä avotoimisto tarjoaa tehokkaat puitteet työskentelylle, ja on vastus hieman pienempään tilan tarpeeseen. Toimitilassa on yhteiskäytössä olevat kei...
Kysy hintaa!Tallenna60 m²ToimistotSiistiä toimistotilaa Vihdintien läheisyydessä. Tämä tyylikäs 60 m2 toimisto sijaitsee kiinteistön ylimmässä kolmannessa kerroksessa. Keittiö- ja ...
Kysy hintaa!Tallenna
60 m²ToimistotValoisa avotoimistotila rakennuksen ylimmässä kerroksessa. Konalassa Ristipellontiellä tarjolla siisti, pieni toimistotila hyvällä paikalla. Yhteis...
Kysy hintaa!Tallenna363 m²VarastotEnsimmäisen kerroksen tuotantoon ja varastointiin soveltuva tila vapautumassa 1.5.2024. Toimitilassa on maantaso-ovi. Lisätiedot Sami Tukiainen 04...
Kysy hintaa!Tallenna368 m²VarastotEtsitkö monipuolista varastotilaa/tuotantotilaa Helsingin Konalasta? Ristipellontie 17 tarjoaa 368 neliömetriä ensimmäisen kerroksen toimitilaa, joka ...
Kysy hintaa!TallennaTallenna -
Tallenna312 m² - 1 833 m²MuutToimistot+1
Meillä saat 25m² ilmastoitua toimitilaa yhden keskustan autopaikan hinnalla! Heti vapaana 120-1000m2 tiloja. Toimistot huonekohtaisin jäähdytyksin.
Kysy hintaa! -
Tallenna
-
Tallenna
-
OmistajaTallenna181 m²Toimistot
Toimitilat Helsinki toimisto 181 m² Vapautumassa vuokrattavaksi viihtyisä toimisto Helsingin Konalasta syyskuun lopulla 2025 . Toimitilassa on oma k...
Kysy hintaa!Tallenna181 m²ToimistotToimistotilaa Helsingin Konalassa, Vihdintien varrella. Tämä 181 m² toimistotila sijaitsee kiinteistön 2. kerroksessa. Toimisto on pääosin huoneel...
Kysy hintaa!Tallenna
181 m²ToimistotVuokrattavana 2. kerroksen viihtyisää toimistotilaa. Vuokrattavana viihtyisää toimistotilaa. Tilassa on oma keittiö, wc- ja suihkutilat.
Kysy hintaa!Tallenna181 m²ToimistotRuosilantie 1 on rakennettu vuonna 1982 ja se sijaitsee erittäin helposti saavutettavalla paikalla. Täältä on erinomaiset liikenneyhteydet esimerkiksi...
Kysy hintaa!Tallenna181 m²ToimistotVuokrattavana 181 m² toimistotilaa Helsingin Konalasta. Tila sijaitsee rakennuksen 2. kerroksessa ja sisältää oman keittiön, wc- sekä suihkutilat, jot...
Kysy hintaa!Tallenna
188 m²LiiketilatToimistotVuokrattavana loistavalla sijainnilla Konalassa Vihdintien varrella moneen käyttöön soveltuva toimistotila. Tilassa oma keittiö, wc-ja suihkutilat. Pi...
Kysy hintaa!TallennaTallenna -
Tallenna
-
Tallenna
1 676 m²TuotantotilatVapautumassa 1. kerroksessa toimintavalmis datakeskustila yrityksen omaan käyttöön ja/tai muille yrityksille datakeskuspalveluja tarjoavaan datacenter...
Kysy hintaa! -
Tallenna
-
Tallenna430 m²Toimistot
Rakennuksen kuvaus: Rakennettu vuonna 1971 ja vuosina 2000-2001 peruskorjattu kiinteistö sijaitsee hyvien kulkuyhteyksien varrella Vihdintien ja Kehä...
Kysy hintaa!Tallenna430 m²ToimistotToisen kerroksen rauhallista toimistotilaa Vihdintien maisemilla (Vianor yläkerta). Tilat tällä hetkellä jaettu huoneisiin, mahdollisuus muuntaa avot...
Kysy hintaa!Tallenna
754 m²ToimistotRuosilantie 14 kiinteistö sijaitsee Konalassa aivan Vihdintien vieressä heti Kehä I:n pohjoispuolella liikenteellisesti loistavalla paikalla. Vuokratt...
Kysy hintaa! -
-
Tallenna281 m² - 1 000 m²Toimistot
Avaraa toimistotilaa kiinteistön kolmannessa kerroksessa. Jaettavissa kahteen osaan, jako suunnitellaan asiakkaan tarpeiden mukaan vastaamaan työympä...
Kysy hintaa!Tallenna
282 m² - 1 000 m²ToimistotVuokrataan valoisaa ja avaraa toimistotilaa kiinteistön 3. kerroksesta. Tila on jaettavissa kahteen osaan, joka suunnitellaan vastaamaan asiakkaan tar...
Kysy hintaa!Tallenna
700 m² - 1 000 m²ToimistotRuosilantie 18 sijaitsee Helsingin Konalassa, Vihdintien varrella. Kiinteistö sijoittuu Kehä I:n ja Kehä III:n välin joten liikennöinti kiinteistölle ...
Kysy hintaa!Tallenna1 000 m²ToimistotVapaana monikäyttöistä ja avaraa toimistotilaa Konalasta Avaraa ja hyväkuntoista toimistotilaa kiinteistön kolmannessa kerroksessa. Tilat jaettavis...
Kysy hintaa!OmistajaTallenna1 000 m²ToimistotToimitilat Helsinki vuokrataan toimisto 1000 m² Avaraa toimistoa kiinteistön kolmannessa kerroksessa. Toimitilat ovat jaettavissa kahteen osaan. ...
Kysy hintaa!Tallenna1 000 m²ToimistotRakennuksen kuvaus: Teollisuuskiinteistö Helsingin Konalassa hyvien kulkuyhteyksien päässä joka sijaitsee Vihdintien varrella. Kiinteistöllä oleva ko...
Kysy hintaa!Tallenna
1 000 m²ToimistotValoisaa toimistotilaa kiinteistön kolmannessa kerroksessa Konalassa. Vuokrattavana toimistotilaa kiinteistön kolmannessa kerroksessa. Valoisista ...
Kysy hintaa!Tallenna1 000 m²ToimistotVuokrataan siistiä ja erinomaisella sijainnilla olevaa toimistotilaa Konalassa, vuokrattava tila on 3. kerroksen 1000m2 toimistotila. Kiinteistö s...
Kysy hintaa!Tallenna1 000 m²ToimistotTehokasta toimistotilaa hyvien kulkuyhteyksien varrelta Helsingin Konalasta. Avaraa toimistotilaa kiinteistön kolmannessa kerroksessa. Jaettavissa ...
Kysy hintaa!Tallenna1 000 m²ToimistotAvara toimistotila kiinteistön kolmannessa kerroksessa. Tilan isoista ikkunoista tulvii valoa sisään, ja vaaleat pinnat pitävät toimiston ilmeen raikk...
Kysy hintaa!Tallenna1 695 m²VarastotVuokrattavissa aiemmin teknisen tukkukaupan noutomyymälänä toiminut toimitila. Tila on siisti, sisäänajettava ja soveltuu monenlaiseen käyttöön. Piha...
Kysy hintaa!TallennaTallennaTallennaTallenna -
Tallenna36 m²Liiketilat
Vuokraa yrityksesi käyttöön siisti ja toimiva asuintaloyhtiön yhteydessä oleva kivijalan liiketila 36 m². Tila solvetuu hyvin toimistoksi tai palvelul...
Kysy hintaa! -
Tallenna625 m²TuotantotilatKysy hintaa!
















































































































































































































































































































































































































































































































































































































































































