Uudet käyttö- ja sopimusehdot
Päivitämme käyttö- ja sopimusehtojamme. Uudet ehdot ovat voimassa 1.5.2025 alkaen. Tutustu ehtoihin
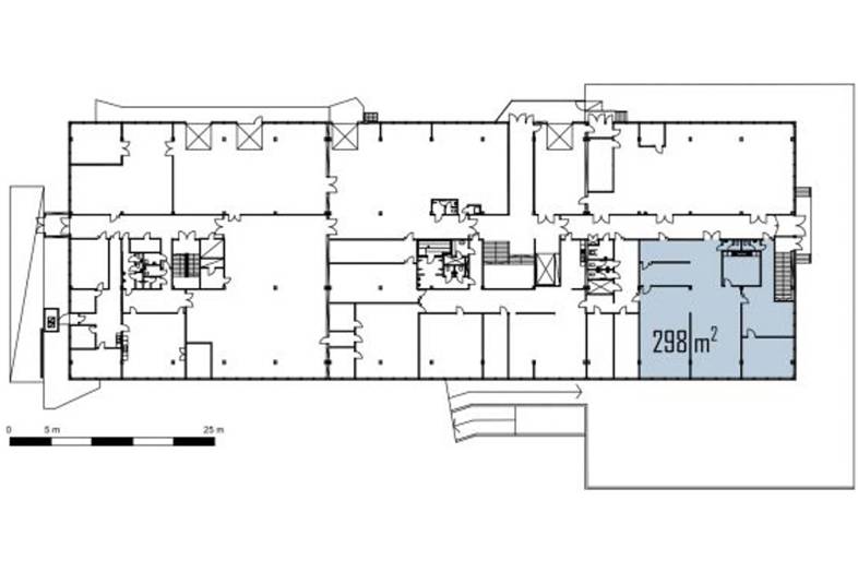
Hankasuontie 9 Konala, Helsinki
00390Tyyppi
Toimisto
Koko
298 m²
Vuokra
Kysy hintaa!
Vuokrataan Helsingin Konalasta ensimmäisen kerroksen 298 m² varastotila toimistolla. Soveltuu myös tuotantotilaksi.
Tilassa on keittiö ja wc:t. Toimiston osuus on noin 152 m² ja varaston 146 m². Lastauslaituri käytössä. Väliseiniä on mahdollista poistaa ja näin avata tiloja. Rauhallinen sisäänkäynti pihan puolelta, jossa parkkipaikkoja.
Kysy rohkeasti lisätietoja ja sovitaan käynti kohteella jo tänään!
Perustiedot
Tyyppi:
Toimisto, Tuotantotila, Varastotila
Sopimustyyppi:
Vuokrataan
Osoite:
Hankasuontie 9, 00390 Helsinki
Kaupunginosa:
Konala
Tilan koko
Kokonaispinta-ala:
298 m²
Tilan jakautuminen tilatyyppien mukaan
| Tilatyypit | Min m² | Max m² | €/m²/kk |
|---|---|---|---|
| Toimisto | 298 | ||
| Tuotantotila | 298 | ||
| Varastotila | 298 |
Rakennustiedot
Kiinteistön nimi:
Hankasuontie 9
Kartta
Tietoa ilmoittajasta
Hausala Oy
Näytä kaikki saman ilmoittajan kohteetErkkilänkatu 11
33100
TAMPERE






















