Uudet käyttö- ja sopimusehdot
Päivitämme käyttö- ja sopimusehtojamme. Uudet ehdot ovat voimassa 1.5.2025 alkaen. Tutustu ehtoihin
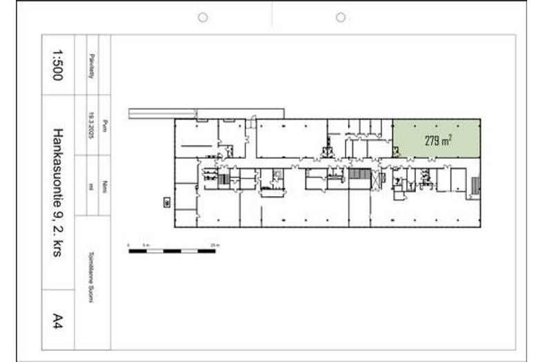
Hankasuontie 9 Konala, Helsinki
00390Tyyppi
Tuotantotila
Koko
279 m²
Vuokra
Kysy hintaa!
Vuokrataan Helsingin Konalasta toisen kerroksen 279 m² tuotanto-/varastotila.
Tilan vapaakorkeus on n. 3 m. Yhteydet tilaan on tavarahissillä sekä ajorampin kautta. Oma wc löytyy. Remontoituna mahdollista tehdä myös toimistotilaa, tila on mahdollisuuksia täynnä.
Kysy rohkeasti lisätietoja ja sovitaan käynti kohteella jo tänään!
Perustiedot
Tyyppi:
Tuotantotila, Varastotila
Sopimustyyppi:
Vuokrataan
Osoite:
Hankasuontie 9, 00390 Helsinki
Kaupunginosa:
Konala
Tilan koko
Kokonaispinta-ala:
279 m²
Tilan jakautuminen tilatyyppien mukaan
| Tilatyypit | Min m² | Max m² | €/m²/kk |
|---|---|---|---|
| Tuotantotila | 279 | ||
| Varastotila | 279 |
Rakennustiedot
Kiinteistön nimi:
Hankasuontie 9
Kartta
Tietoa ilmoittajasta
Hausala Oy
Näytä kaikki saman ilmoittajan kohteetErkkilänkatu 11
33100
TAMPERE




















