Uudet käyttö- ja sopimusehdot
Päivitämme käyttö- ja sopimusehtojamme. Uudet ehdot ovat voimassa 1.5.2025 alkaen. Tutustu ehtoihin
Hankasuontie 9 Konala, Helsinki
00390Tyyppi
Toimisto
Koko
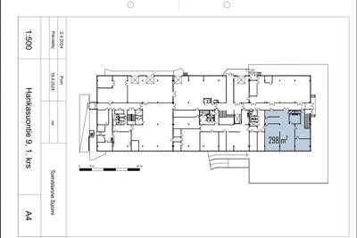
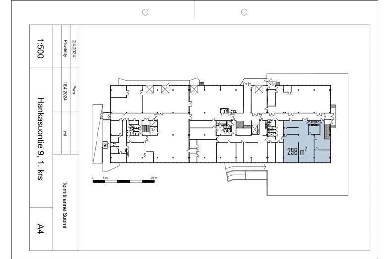
298 m²
Kerros
1
Vuokra
Kysy hintaa!
Siisti 298 m² ensimmäisen kerroksen toimisto-/varastotila Konalasta teollisuuskiinteistöstä.
Katutason toimisto-varastotila, jossa keittiö ja wc:t.
Toimiston osuus on noin 152 m² ja varaston 146 m².
Lastauslaituri käytössä. Väliseiniä on mahdollista poistaa ja näin avata tiloja. Rauhallinen sisäänkäynti pihan puolelta, jossa parkkipaikkoja.
Kiinteistö sijaitsee Vihdintien tuntumassa vilkkaalla Hankasuontien teollisuus- ja yritysalueella. Rakennuksessa toimii tällä hetkellä yrityksiä mm. maahantuonnin, tukkukaupan, kokoonpanon ja B2B-toiminnan parista.
Perustiedot
Tyyppi:
Toimisto, Varastotila
Sopimustyyppi:
Vuokrataan
Osoite:
Hankasuontie 9, 00390 Helsinki
Kaupunginosa:
Konala
Tilan koko
Kokonaispinta-ala:
298 m²
Tilan jakautuminen tilatyyppien mukaan
| Tilatyypit | Min m² | Max m² | €/m²/kk |
|---|---|---|---|
| Toimisto | 152 | ||
| Varastotila | 146 |
Rakennustiedot
Energialuokka:
Ei lain edellyttämää energiatodistusta
Lisätiedot
Kerros:
1
Kartta
Tietoa ilmoittajasta
ScanReal Oy LKV
Näytä kaikki saman ilmoittajan kohteetOpus Business Park, Hitsaajankatu 24
00810
Helsinki




























