Uudet käyttö- ja sopimusehdot
Päivitämme käyttö- ja sopimusehtojamme. Uudet ehdot ovat voimassa 1.5.2025 alkaen. Tutustu ehtoihin
Ruosilantie 18 Konala, Helsinki
00390Tyyppi
Toimisto
Koko
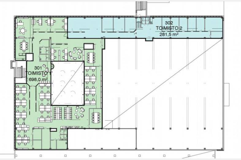
700 - 1 000 m²
Kerros
3 / 3
Vuokra
Kysy hintaa!
Ruosilantie 18 sijaitsee Helsingin Konalassa, Vihdintien varrella. Kiinteistö sijoittuu Kehä I:n ja Kehä III:n välin joten liikennöinti kiinteistölle ja sieltä eri suuntiin on sujuvaa. Vihdintien bussit palvelevat työmatkalaisia kuten myös Malminkartanon junaseisake, joka on kävelymatkan päässä. Tämä siistikuntoinen toimistotila sijaitsee kiinteistön kolmannessa kerroksessa ja on jaettavissa pienempiin kokonaisuuksiin. Ps. talosta on vuokrattavissa myös varastotilaa n. 1.700m2. SOITA ja SOVI ESITTELY!
Toimisto- ja varastokiinteistö
Lähistöllä sijaitsee Kauppakeskus Ristikko kattavine palveluineen.
Sijainti: Konala Vihdintien varrella
Perustiedot
Tyyppi:
Toimisto
Sopimustyyppi:
Vuokrataan
Osoite:
Ruosilantie 18, 00390 Helsinki
Kaupunginosa:
Konala
Tilan koko
Kokonaispinta-ala:
1000 m²
Tilan jakautuminen tilatyyppien mukaan
| Tilatyypit | Min m² | Max m² | €/m²/kk |
|---|---|---|---|
| Toimisto | 700 | 1 000 |
Rakennustiedot
Energialuokka:
Ei lain edellyttämää energiatodistusta
Lisätiedot
Kerros:
3 / 3
Ympäristö
Pysäköinti:
Runsaasti tilaa pihalla.
Lähipalvelut:
Kiinteistössä toimii oma lounasravintola.
Liikenneyhteydet:
Hyvät
Dokumentit
Kartta
Tietoa ilmoittajasta

Senaatin Notariaatti Oy LKV
Näytä kaikki saman ilmoittajan kohteetLämmittäjänkatu 4 A
00880
HELSINKI






























