Uudet käyttö- ja sopimusehdot
Päivitämme käyttö- ja sopimusehtojamme. Uudet ehdot ovat voimassa 1.5.2025 alkaen. Tutustu ehtoihin
Hankasuontie 9 Konala, Helsinki
00390Tyyppi
Varastotila
Koko
275 m²
Kerros
1
Vuokra
Kysy hintaa!
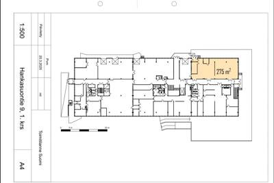
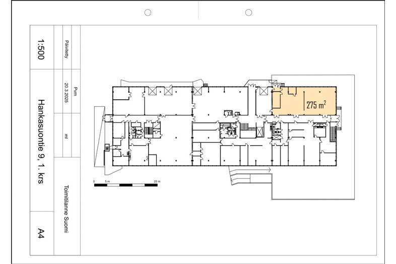
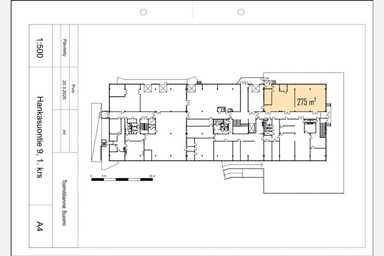
Siisti 275 m² ensimmäisen kerroksen toimisto-/varastotila Konalasta teollisuuskiinteistöstä.
275 m² toimitila ensimmäisestä kerroksesta jossa väliseinä jakaa tilan noin puoliksi toimistolle ja varastolle.
Kulkuyhteys ulkoa suoraan omasta ovesta tai lastauslaiturilta käytävän kautta. Varastopuolelle myös oma ovi käytävästä. Toimistossa keittiönurkka, wc:t käytävällä.
Kiinteistö sijaitsee Vihdintien tuntumassa vilkkaalla Hankasuontien teollisuus- ja yritysalueella. Rakennuksessa toimii tällä hetkellä yrityksiä mm. maahantuonnin, tukkukaupan, kokoonpanon ja B2B-toiminnan parista.
Perustiedot
Tyyppi:
Varastotila
Sopimustyyppi:
Vuokrataan
Osoite:
Hankasuontie 9, 00390 Helsinki
Kaupunginosa:
Konala
Tilan koko
Kokonaispinta-ala:
275 m²
Rakennustiedot
Energialuokka:
Ei lain edellyttämää energiatodistusta
Lisätiedot
Kerros:
1
Kartta
Tietoa ilmoittajasta
ScanReal Oy LKV
Näytä kaikki saman ilmoittajan kohteetOpus Business Park, Hitsaajankatu 24
00810
Helsinki






























