Helsingin Kuninkaantammi tarjoaa avaraa ja muunneltavaa toimitilaa kahdessa kerroksessa. Kiinteistöstä löytyy vuokrattavaa toimisto- ja varastotilaa, ...
Varastot
Etsitkö varastotilaa? Tällä sivulla on listattuna kaikki vapaana olevat vuokrattavat ja myytävät varastot, varastotilat ja hallitilat. Jos etsit varastotilaa tietyltä alueelta, muokkaa hakua sijainnin mukaan. Laajasta valikoimastamme on helppoa löytää sopiva varastorakennus, pienvarasto, varastohalli, vuokravarasto tai vaikkapa autotalli!
-
KohdenostoTallenna5 000 m²VarastotKysy hintaa!
-
KohdenostoTallenna20 000 m²Varastot
Vuokrattavana moderni logistiikkatila joka valmistunut vuonna 2024. Sijainti tarjoaa hyvät liikenneyhteydet ja sijaitsee lähellä Kehä 3:tietä.
Kysy hintaa! -
KohdenostoTallenna4 857 m²TuotantotilatVarastot
Oulun Limingantullin / Nuottasaaren alueelta vuokrattavana tuotanto-/varastototilaa, tilat soveltuvat erinomaisesti myös liiketilakäyttöön. Tilat ovat...
Kysy hintaa! -
Tallenna50 m² - 5 100 m²ToimistotTuotantotilat+1
Avaraa ja toimivaa tilaa keskeisesti Konalasta
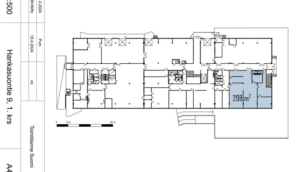
Kysy hintaa!Tallenna298 m²VarastotVuokrataan katutason 298 m2 toimisto-varastotila, jossa keittiö ja wc:t. Toimiston osuus on noin 152 m2 ja varaston 146 m2. Lastauslaituri käytössä. V...
Kysy hintaa!Tallenna -
Tallenna70 m²Varastot
Vuokrattavana kellarikerroksen varasto- ja sosiaalitilat Helsingin Konalassa. Kiinteistö sijaitsee Vihdintien varrella, nopeilla yhteyksillä sekä Kehä...
Kysy hintaa! -
Tallenna
228 m²TuotantotilatVarastotVarasto-/työtilaa Tattariharjun teollisuuskiinteistössä n 228 m2. Ei sisäänajoa tilaan ks. pohjakuva. Lisätietoja: p. 045 261 6555/Mika. Kohtee...
Kysy hintaa! -
Tallenna482 m²TuotantotilatVarastot
Myydään kiinteistön maanvuokraoikeus ja sillä oleva hallirakennus 482 m2, johon 2 kpl nosto-ovia (2,25 m x 2,44 m). Halli on matalimmasta kohdasta 3,6...
Kysy hintaa! -
-
Tallenna1 600 m²Varastot
Huippupaikalla Helsingin Malmilla varastotilaa vuokrattavana. - Varastoa n.1400m2 (kuormalavahyllyt valmiina) ja vapaa korkeus n. 7m - Toimistoa ...
Kysy hintaa! -
Tallenna
-
-
Tallenna371 m²Varastot
Vuokrattavana 371 m² varastotilaa kellari kerroksessa Pitäjänmäellä. Sijainti tarjoaa hyvät julkiset liikenneyhteydet ja alueella on kattavat palvelut...
Kysy hintaa!Tallenna371 m²VarastotVarastotilaa Helsingin Pitäjänmäessä. Tämä 371 m² varastotila sijaitsee kiinteistön kellarikerroksessa. Tilaan on tavarahissiyhteys. Hiomotie 6...
Kysy hintaa!Tallenna
371 m²VarastotVuokrattavana suuri varastotilakokonaisuus kiinteistön kellarikerroksessa. Tilaan on tavarahissiyhteys, joka helpottaa tavaroiden siirtelyä. Hiomotie ...
Kysy hintaa! -
Tallenna14 m² - 1 438 m²HoivatilatToimistot+1
Hoivatilaa terveys- ja terapeuttialan toimijoille!
13,00 €/m2/kk -
Tallenna
255 m²TuotantotilatVarastotKellarikerroksen varasto-/tuotantotilaa Herttoniemen metroaseman läheisyydessä. Tilasta löytyy wc-/taukotilat. Sijainti: Herttoniemi
Kysy hintaa!Tallenna255 m²VarastotVuokrataan 255,5m2 varastotilaa Herttoniemessä. Vuokrattava tila on kellari kerroksessa. Tilasta löytyy wc- tilat ja pukuhuone. Tilaan kulkee tava...
Kysy hintaa!Tallenna256 m²VarastotVarastotilaa Itäväylän varrella Herttoniemessä
Kysy hintaa!Tallenna256 m²VarastotVarastotilaa Helsingin Herttoniemessä. Tämä 255,5 m² varasto sijaitsee kiinteistön kellarikerroksessa. Hitsaajankatu 4 on toimisto- ja varasto...
Kysy hintaa! -
Tallenna
-
Tallenna1 674 m²Varastot
Holkkitie 8b – Herttoniemi, Helsinki Holkkitie 8b on 100% vuokrattu moderni varasto- ja toimitilakiinteistö strategisella last-mile - sijainnilla Hels...
Kysy hintaa! -
Tallenna
354 m²TuotantotilatVarastotVuokrattavana varasto ja tuotantotilaa Hyttitie 4:ssa. Tilassa on yksi toimistohuone, pukuhuone ja wc. Kiinteistö sijaitsee erinomaisella paikalla, jo...
Kysy hintaa!Tallenna354 m²TuotantotilatVarastotVuokrattavana varasto-/tuotantotilaa Hyttitie 4:ssä. Tilassa yksi toimistohuone, pukuhuone ja wc:eet. Kiinteistö sijaitsee hyvällä paikalla ja kohtees...
Kysy hintaa!Tallenna354 m²VarastotVapaata varastotilaa Malmin Tattariharjussa Helsingissä. Tämä 519 m² varastotila sijaitsee kiinteistön 1. kerroksessa. Tila on jaettavissa n. 354 m...
Kysy hintaa!Tallenna
519 m²VarastotVuokrattavana suuri varasto-/tuotantotila. Vuokrattavana suuri varasto-/tuotantotila. Toimitilassa on toimistohuone, pukuhuone ja sosiaalitilat.
Kysy hintaa!Tallenna -
Tallenna519 m²Varastot
Hyttitie 4 sijaitsee Malmin rauhallisella alueella, josta on kuitenkin hyvät yhteydet eri puolille kaupunkia. Kiinteistö soveltuu erinomaisesti toimis...
Kysy hintaa! -
Tallenna
-
OmistajaTallenna
-
Tallenna
81 m²VarastotVuokrattavana siistiä varastotilaa. Vuokrattavana siistiä varastotilaa.
Kysy hintaa! -
Tallenna
-
Tallenna
-
Tallenna663 m²Varastot
Vuokrattavana 6.kerroksen toimitila (663 m2), joka soveltuu sekä varasto että toimistotilaksi. Kerrokseen tulee tavarahissi. Sisäpihalla on lastauslai...
Kysy hintaa! -
Tallenna
-
Tallenna












































































































































































