Toimistotilaa erinomaisella sijainnilla palvelujen ja liikenneyhteyksien lähellä.
Vapaat toimitilat Sörnäinen (Helsinki)
-
KohdenostoTallenna590 m²ToimistotKysy hintaa!
-
KohdenostoOmistajaTallenna1 107 m²Toimistot
Valoisaa toimistotila Kalasatamassa Tämä pääkonttoritason toimistotila sijaitsee Troolin C-rapun toiseksi ylimmässä, viidennessä kerroksessa. Tilan i...
Kysy hintaa! -
KohdenostoTallenna234 m²Toimistot
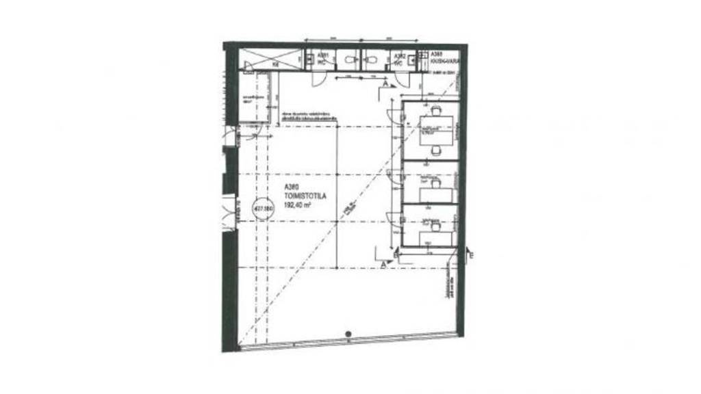
Toimistotilaa Sörnäisissä erinomaisella sijainnilla. Tämä 234m2 tila kattaa kiinteistön 7. kerroksen. Tila kostuu kahdeksasta työhuoneesta, avotil...
Kysy hintaa! -
Tallenna120 m²Muut43,15 €/m2/kk
-
Tallenna28 m²Liiketilat90 000 €Tallenna
Haapaniemenkatu 3 LHA
Helsinki, Näkinpuisto, Sörnäinen, Kallio, Merihaka FI HOMES LKV - RE/MAX Kodit28 m²Liiketilat83 000 € -
Tallenna
208 m²ToimistotMERITORNI tarjoaa hyväkuntoista ja edullista toimistotilaa hyvien liikenneyhteyksien äärellä. Kiinteistössä on uudistettu vastaanottoaula sekä lounas...
Kysy hintaa!Tallenna -
KohdenostoTallenna143 m²Toimistot
Tarjolla upea arkkitehdin suunnittelema toimistotila. Tila edustaa korkeatasoista toimitilakonseptia, jossa on panostettu sekä estetiikkaan että käytä...
Kysy hintaa!
-
Tallenna531 m²Toimistot
Myydään upea valoisa toimistotila Kalasatamassa , loistava sijainti metron ja kauppakeskus Redin vieressä. Alhainen vastike ja hyvin hoidettu yhtiö.
Kysy hintaa! -
-
OmistajaTallenna224 m²Toimistot
Vuokrataan toimistotila hyvällä sijainnilla Helsingin Kalasatamassa. Toimitila koostuu avotilasta, keittiöstä sekä wc-tiloista. Kohde sijaitsee erinom...
Kysy hintaa!Tallenna -
Tallenna652 m²Toimistot
Kolmannen kerroksen toimisto modernissa ja tyylikkäässä Rantatie Business Parkissa on erinomaiset palvelut ja toimitilat, jotka on suunniteltu ketteri...
Kysy hintaa! -
-
-
Tallenna229 m² - 1 446 m²Toimistot
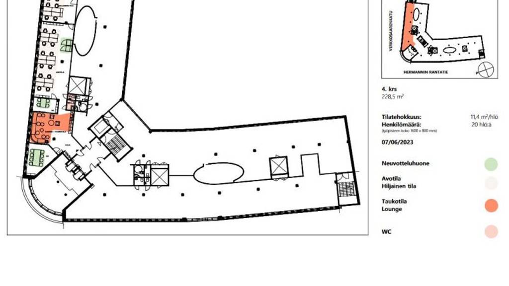
Hermannin Rantatie 10 tarjoaa edustavat toimitilat keskeisellä paikalla kehittyvässä Kalasatamassa. Tässä kiinteistössä on erinomaiset puitteet muokat...
Kysy hintaa!Tallenna -
Tallenna110 m²Liiketilat
Heti vapaaana Liiketilaa loistavalta sijainnilla Vuokrataan Katutason liiketilaa näkyvällä paikalla. Tila ei sovellu ravintolakäyttöön Lisät...
Kysy hintaa!Tallenna115 m²LiiketilatVuokrattavana katutason valoisa 115 m² liiketila näkyvällä paikalla Hämeentiellä. Vuokrattavana katutason valoisa liiketila näkyvällä paikalla Häm...
Kysy hintaa!Tallenna115 m²LiiketilatLiiketilaa näkyvältä paikalta, Hämeentieltä siis!
Kysy hintaa!Tallenna
115 m²LiiketilatVuokrataan katutason liiketila näkyvällä paikalla Hämeentiellä. Ei vuokrata ravintolaksi tai elintarvikekaupaksi. Lisätietoja numerosta 020 7290 71...
Kysy hintaa!TallennaTallenna115 m²LiiketilatVuokrataan hyvällä sijainnilla 115m2 katutason tila Helsingin Hakaniemessä, Hämeentien ja Vetehisenkujan risteyksessä. Liiketilaksi sopivassa tilass...
Kysy hintaa!Tallenna -
Tallenna166 m²LiiketilatToimistotKysy hintaa!
-
Tallenna315 m²Toimistot
Vuokrataan 6. ja 7. kerroksen toimistotila Kalliosta tyylikkäästi saneeratusta kiinteistöstä. Koko kiinteistö on saneerattu vuoden 2019 aikana. Ilmoit...
Kysy hintaa!Tallenna
1 072 m²ToimistotVuokrataan korkelaatuisilla materiaaleilla tyylikkäästi saneerattu, pääosin erikokoisiin huoneisiin jaettu persoonallinen toimistotila. Tila on hienos...
Kysy hintaa! -
Tallenna205 m²Toimistot
Tila on talon toisessa kerroksessa, joka on Hämeentien puolelta katutasossa. Tilasta saa myös tarpeen niin vaatiessa 450m2 kokonaisuuden yhdistämällä ...
Kysy hintaa! -
Tallenna222 m²Toimistot
Valoisa ja moderni toimistotila rakennuksen päädyssä. Tässä avarassa tilassa onnistuu tehokas kommunikointi kollegoiden kanssa, ja kunnon taukokeittiö...
Kysy hintaa! -
-
Tallenna54 m² - 590 m²Toimistot
Vapaana toimistotilaa loistavalla sijainnilla Hämeentien varrella Sörnäisistä. Vapaana toimistotilaa loistavalla sijainnilla Hämeentien varrella Sö...
Kysy hintaa!Tallenna275 m²ToimistotTämä Hämeentie 19:sta neljännen kerroksen toimistotila tarjoaa 275 neliömetriä muuttovalmista toimistotilaa. Tilasta löytyy iso keittiötila ja tiimiti...
Kysy hintaa!TallennaTallenna -
Tallenna
-
Tallenna
10 m² - 33 m²ToimistotVuokrattavana 6. kerroksen erikokoisia laadukkaita pientoimistotiloja toimistohotellista. Vuokrattavana 6. kerroksen erikokoisia laadukkaita piento...
Kysy hintaa!Tallenna -
Tallenna
-
Tallenna360 m²Toimistot
Uudistettua ja modernia toimistotilaa Kallion kehittyvälle alueelta. Tämä peruskorjauksesta 2024 syksyllä valmistuva kiinteistö tarjoaa ensiluokkaiset...
Kysy hintaa! -
Tallenna483 m²Toimistot
Elannon Leipätehdas rakennettiin 1923 ja laajennettiin 1955. Ennen nykyistä suurleipomoa korttelissa oli 1907 valmistunut leipomo, jota purettiin suur...
Kysy hintaa!










































































































































































































































































































































