Uudet käyttö- ja sopimusehdot
Päivitämme käyttö- ja sopimusehtojamme. Uudet ehdot ovat voimassa 1.5.2025 alkaen. Tutustu ehtoihin
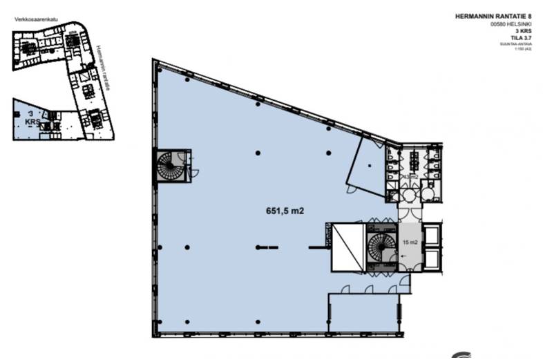
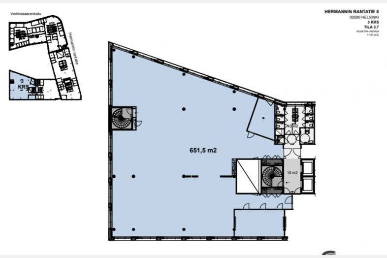
Hermannin Rantatie 8 Kalasatama, Helsinki
00580Tyyppi
Toimisto
Koko
652 m²
Kerros
3
Vuokra
Kysy hintaa!
Rantatie Business Park on korkeatasoinen usean käyttäjän toimistotalo Kalasataman kehittyvällä alueella, parhaalla paikalla Hermannin Rantatien varrella. Modernien ja tyylikkäiden talojen laadukkaat tilat ovat helposti muunneltavissa vastaamaan erilaisten käyttäjien tarpeita. Talossa on kattavat palvelut vuokralaisille, kuten paljon erikokoisia neuvottelutiloja, aulapalvelu ja lounasravintola.
Kalasataman metroasemalle ja REDI kauppakeskukseen on lyhyt kävelymatka ja autoilijoille vuokrattavissa pysäköintitilaa. Työmatkapyöräilijöille hyvät sosiaalitilat.
Lisätietoja soita 020 730 4530 tai info@repoint.fi. Palvelumme on tilanhakijalle ilmainen.
Perustiedot
Tilan koko
Lisätiedot
Kartta
Tietoa ilmoittajasta
REpoint Toimitilat Oy
Näytä kaikki saman ilmoittajan kohteetItälahdenkatu 22b
00210
HELSINKI
Repoint on pääkaupunkiseudun toimitilavuokraukseen keskittynyt välitysliike. Toimintamme perustuu laadukkaaseen ja luotettavaan palveluun, sekä tilaa hakevan yrityksen toiminnan ja tarpeiden ymmärtämiseen. Soita meille 020 730 4530. Palvelumme on tilanhakijalle ilmainen.
















































































































