Uudet käyttö- ja sopimusehdot
Päivitämme käyttö- ja sopimusehtojamme. Uudet ehdot ovat voimassa 1.5.2025 alkaen. Tutustu ehtoihin
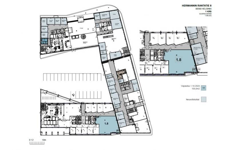
Hermannin rantatie 8 Kalasatama, Helsinki
00580Tyyppi
Toimisto
Koko
168 m²
Vuokra
Kysy hintaa!
Vuokrataan ilmaistoitu valoisa 1.kerroksen moderni 168 m2 toimistotila hyvällä paikalla Kalasataman kauppakeskus Redin vieressä.
Tilassa on avotyötila, oma keittiö, wc:t ovat heti käytäväll. Tarvittaessa tilaa on muokattavissa vuokralaisen tarpeen mukaan, samassa kerroksessa löytyy neuvottelutilat.
Kiinteistössä on vuokrattavissa parkkipaikkoja pihalta tai kiinteistön autohallista, vieraspaikkoja löytyy pihalta. Katolla on oma terassi.
Kiinteistössä on tarjolla monipuoliset palvelut, kuten aulapalvelu, siivous, vartiointi, kokoustilat, hierontapalvelut, remontti- ja sisustussuunnittelupalvelu, lounasravintola, kahvio sekä juhla- ja cateringpalvelut.
Taloissa on hyvät sosiaali- ja suihkutilat (naisten ja miesten pukuhuoneet, joissa suihkut, kuivauskaapit, lokerikot, silityslaudat yms.), käytettävissä veloituksetta.
Pyöräparkkialueet ja klubifillarit veloituksetta. On mahdollista vuokrata hydridiauton.
Kiinteistö on lähellä Kalasataman kehittyvällä alueella ja hyvien kulkuyhteyksien varrella sijaitseva toimistotalo, johon on sijoittunut useita tunnettuja suomalaisia ja kansainvälisiä yrityksiä.
Perustiedot
Tyyppi:
Toimisto
Sopimustyyppi:
Vuokrataan
Osoite:
Hermannin rantatie 8, 00580 Helsinki
Kaupunginosa:
Kalasatama
Tilan koko
Kokonaispinta-ala:
168 m²
Kartta
Tietoa ilmoittajasta
Comreal Oy
Näytä kaikki saman ilmoittajan kohteetLäkkisepänkuja 6
00620
Helsinki




















