Uudet käyttö- ja sopimusehdot
Päivitämme käyttö- ja sopimusehtojamme. Uudet ehdot ovat voimassa 1.5.2025 alkaen. Tutustu ehtoihin
Hämeentie 29 Sörnäinen, Helsinki
00500Tyyppi
Toimisto
Koko
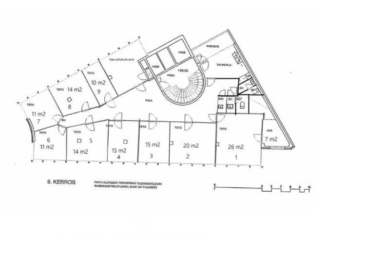
11 m²
Kerros
6
Vuokra
Kysy hintaa!
Pientoimistotilaa loistavien kulkuyhteyksien äärellä.
Pientoimistokerroksesta on vuokrattavissa yksittäisiä toimistohuoneita.
Vuokraan sisältyy mm. sähkö, siivous, internet, kokoushuoneen yhteiskäyttö.
Keittiö ja wc:t yhteiskäytössä.
Talon pysäköintipaikalta voit vuokrata autopaikan.
Metro- ja raitiovaunuyhteydet löytyvät aivan rakennuksen ulkopuolelta.
Rakennuksen katutasossa toimivat ravintolat Kolme Kaisaa ja Picnic.
Perustiedot
Tyyppi:
Toimisto
Sopimustyyppi:
Vuokrataan
Osoite:
Hämeentie 29, 00500 Helsinki
Kaupunginosa:
Sörnäinen
Tilan koko
Kokonaispinta-ala:
11 m²
Rakennustiedot
Energialuokka:
Ei lain edellyttämää energiatodistusta
Lisätiedot
Kerros:
6
Kartta
Tietoa ilmoittajasta
ScanReal Oy LKV
Näytä kaikki saman ilmoittajan kohteetOpus Business Park, Hitsaajankatu 24
00810
Helsinki












