2. kerroksen varastohuoneisto. Osoite Elimäenkatu 15. Kravattitehdas on paikkana ainutlaatuinen – ja työpaikkana vielä ainutlaatuisempi. Alun perin...
Varastot Vallila (Helsinki)
-
Tallenna154 m²VarastotKysy hintaa!
-
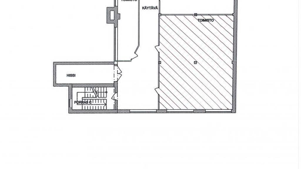
Tallenna154 m²ToimistotVarastot
Modernia ja viihtyisää toimitilaa vapaana Helsingin Vallilasta. Soveltuu toimisto / varastointi käyttöön! Tarjolla on valoisa ja tehokas toimisto/v...
Kysy hintaa!Tallenna154 m²ToimistotTuotantotilat+1Vuokrataan 154m2 varastotila kulttuurihistoriallisesti arvokkaasta toimistotalosta Kravattitehtaalta. Kravattitehtaaseen kuuluu kolme rakennusta, ...
Kysy hintaa!Tallenna154 m²VarastotVarasto-/työtilaa Vallilan Kravattitehtaalla. Tämä 154m2 varastotila sijaitsee kiinteistön 2. kerroksessa pientoimistoalueella. Tila koostuu avotil...
Kysy hintaa!Tallenna
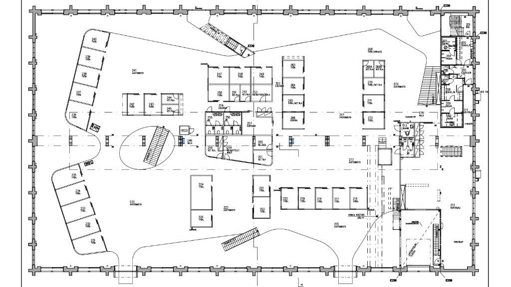
154 m²VarastotVuokrataan varastotila (ikkunaton) Kravattitehtaan kiinteisöstä Vallilasta, 2. kerroksesta. Kravattitehdas sijaitsee keskellä Vallilaa Elimäenkadu...
Kysy hintaa!Tallenna
1 814 m²MuutToimistot+1Vuokrataan 4. kerroksen tila 1814 m2, joka soveltuu toimistoksi, showroomiksi ja varastoksi. Tämä Kravattitehtaaksi 1920-luvulla rakennettu kiinteistö...
Kysy hintaa!Tallenna -
Tallenna
-
Tallenna700 m²Varastot
Vallilan Konepajan alueelta varastotilaa teollisuushistoriallisesti merkittävästä kiinteistöstä. Vapaana upeassa teollisuusmiljöössä sijaitseva 710...
Kysy hintaa!Tallenna710 m²VarastotVuokrataan 710m2 varastotilaa Vallilan konepajan sydämestä. Varastotilassa on oma lastausovi. Kyseessä on Vallilan Konepajan alueella sijaitseva te...
Kysy hintaa!Tallenna710 m²VarastotToimisto- ja varastotilaa Vallilan Konepajan alueella. Tämä 4921 m² toimitilakokonaisuus koostuu 1. kerroksen 2126 m² toimistotilasta ja 710 m² var...
Kysy hintaa!Tallenna
710 m²VarastotVuokrattavana katutason varastotila Vallilan Konepajan alueella, teollisuushistoriallisesti ja rakennustaiteellisesti arvokkaassa ja täysin saneeratus...
Kysy hintaa!Tallenna
710 m²VarastotVallilan Konepajan alueella tarjolla katutason, autolla sisään ajettavaa varastotilaa. Vallilan Konepajan alueella tarjolla katutason, autolla sisä...
Kysy hintaa!Tallenna
4 921 m²MuutToimistot+1Vuokrataan Vallilan Konepajan alueella sijaitseva teollisuushistoriallisesti ja rakennustaiteellisesti ainutlaatuinen toimistokiinteistö. Uniikki toim...
Kysy hintaa!TallennaTallenna -
Tallenna
-
-
Tallenna515 m²ToimistotVarastot
Varastotilaa keskeisellä sijainnilla Vallilassa, kiven heiton päässä Triplasta
Kysy hintaa!Tallenna
84 m²VarastotVuokrataan varastotilaa 84.5 m2. Tilassa on laminaattilattia ja se sisältää myös pukutilan ja suihkun. Tilaan on rappuyhteys, ei wc. Vuokrattavana ...
Kysy hintaa!TallennaTallenna -
Tallenna
-
-
Tallenna62 m² - 185 m²Varastot
Vapaana varastotiloja Vallilan Akseli & Elina dynaamisesta kokonaisuudesta! Vallilan Akseli & Elina on viime vuosina palvellut etenkin designin, te...
Kysy hintaa!Tallenna -
Tallenna200 m²Varastot125 000 €
-
Tallenna
-
Tallenna
-
Tallenna
-
Tallenna
-
Tallenna





































































































































































































































































































