Vallilan Konepajan alue on kehittymässä Helsingin kiinnostavimmaksi alueeksi työskennellä. Täällä vireän kaupunkikulttuurin ja luovan työn keskuudessa...
Toimistot Vallila (Helsinki)
-
KohdenostoTallenna307 m²ToimistotKysy hintaa!
-
KohdenostoTallenna447 m²Toimistot
Rakennuksen kuvaus: Berlin/Vallila tarjoaa moderneja työtiloja vanhassa teollisuusrakennuksessa. Berlin/Vallila koostuu kahdesta yhteisen sisäpihan y...
Kysy hintaa! -
KohdenostoTallenna48 m²Toimistot
Vuokrattavana siistiä pientoimistotilaa Vallilassa, modernissa toimistokiinteistössä. Tämä 48 m² toimisto sijaitsee 3. kerroksen POOL Work -alueel...
Kysy hintaa! -
Tallenna
-
Tallenna64 m²Toimistot
Vuokrataan kalustettu pientoimisto Vallilan Kravattitehtaasta. Tilassa on oma wc, keittiö ja neuvottelutila . Ilmoituksen kuvat yleiskuvia kiinteistön...
Kysy hintaa!Tallenna
471 m²ToimistotUniikki industrial-toimisto joustavalla sopimuksella. Betonilattia, korkeat huoneet ja suuret ruutuikkunat luovat ainutlaatuisen tunnelman. Mahdollisu...
Kysy hintaa! -
Tallenna380 m² - 532 m²Toimistot
Modernia ja viihtyisää toimistotilaa vapaana Helsingin Vallilasta Tarjolla on valoisa ja tehokas toimistotila Pasilan Elimäentiellä. Nämä 7. kerrok...
Kysy hintaa!Tallenna -
-
Tallenna246 m²Toimistot
Rakennuksen kuvaus: Kravattitehdas on kahden rakennuksen toimistokiinteistö. Elimäenkatu 15 on Kravattitehtaan 1970-luvulla valmistunut osa ja edusta...
Kysy hintaa! -
-
Tallenna
781 m²ToimistotVuokrataan muuntojoustavaa kaikki nykyajan talotekniset vaatimukset täyttävää toimistotilaa näkyvällä paikalla Vallilassa. Talossa aulapalvelu, neuvot...
Kysy hintaa! -
-
Tallenna
529 m²ToimistotVapaana 529 m2 toimistotila Vallila Corner -kiinteistöstä. Tilat räätälöidään vielä vuokralaiselle sopiviksi. Ohessa havainnollistavia kuvia kiinteist...
Kysy hintaa! -
Tallenna
-
Tallenna887 m²Toimistot
Persoonallista industrial-henkistä toimistotilaa lähellä Pasilan asemaa. Vuonna 1999 valmistuneessa kiinteistössä on pääosin avotoimistotilaa. Kiintei...
Kysy hintaa! -
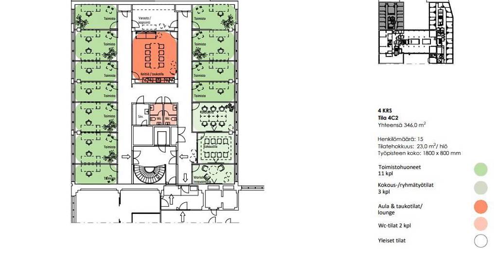
Tallenna346 m²Toimistot
Toimistotilaa Helsingin Vallilassa. Tämä 346m2 tila sijaitsee kiinteistön 4. kerroksessa. Vapautuminen sopimuksen mukaan. Elimäenkatu 30 on teol...
Kysy hintaa!Tallenna -
-
Tallenna526 m²Toimistot
Rakennuksen kuvaus: Konepaja on kehittyvä alue, joka tulee yhdistämään liike-elämän, kulttuurin, palvelut sekä asumisen saumattomasti toisiinsa. Alue...
Kysy hintaa!Tallenna526 m²ToimistotKiinteistö Oy Fredriksberg B sijaitsee Vallilassa kehittyvällä VR:n vanhalla konepajan alueella. Konepaja on alue, joka tulee yhdistämään liike-elämän...
Kysy hintaa! -
Tallenna4 200 m²Toimistot
Vallilan Konepajan alueelta pääkonttoritason toimistotilaa teollisuushistoriallisesti merkittävästä kiinteistöstä. Kiinteistö on peruskorjattu mode...
Kysy hintaa!Tallenna
4 211 m²ToimistotVuokrattavana täysin pääkonttoritasoiseksi saneerattu toimistotila Vallilan Konepajan alueella. Teollisuushistoriallisesti ja rakennustaiteellisesti a...
Kysy hintaa!Tallenna
4 211 m²ToimistotVuokrattavana laadukas, ainutlaatuinen, upea toimistotilakokonaisuus. Vuokrattavana näyttävää ja erinomaisessa kunnossa olevaa tilaa. Nykytilantees...
Kysy hintaa!Tallenna4 211 m²ToimistotVuokrataan remontoitua laadukasta toimistotilaa Vallilan konepajan sydämestä. Vuokrattavana on 1.-2. kerroksien 4211m2 toimistotila. Tila koostuu 1. k...
Kysy hintaa!Tallenna4 921 m²ToimistotVuokrataan Vallilan konepajan alueelta uniikki toimistorakennus. Kokonaisuus koostuu 1. ja 2. kerroksen toimistotiloista ja katutason myymälästä, joka...
Kysy hintaa!Tallenna4 921 m²ToimistotVallilassa Konepajankuja 6:ssa on vapautumassa ainutlaatuinen toimistotilakokonaisuus. Kiinteistö sijaitsee Vallilan Konepajan alueella ja on teo...
Kysy hintaa!OmistajaTallenna
4 921 m²ToimistotVallilan Konepajan alueella sijaitseva teollisuushistoriallisesti ja rakennustaiteellisesti arvokas kohde, joka on täysin saneerattu pääkonttoritasois...
Kysy hintaa!Tallenna
4 921 m²MuutToimistot+1Vuokrataan Vallilan Konepajan alueella sijaitseva teollisuushistoriallisesti ja rakennustaiteellisesti ainutlaatuinen toimistokiinteistö. Uniikki toim...
Kysy hintaa!TallennaTallenna -
-
-
Tallenna513 m²Toimistot
Vuokrattavana hyväkuntoinen 6. kerroksen 513m2 toimistotila. Tila on muokattavissa asiakkaan tarpeen mukaan. Kiinteistö sijaitsee hyvien kulkuyhteyksi...
Kysy hintaa! -
Tallenna
950 m²ToimistotVuokrataan jaettavissa olevaa toimistotilaa Vallilan vehreämmällä puolella. Kumpula 9 tarjoaa kasvaville yrityksille toimitilaa sekä luovuuteen, että ...
Kysy hintaa! -
Tallenna174 m²Toimistot
Toimistotilaa Helsingin Vallilassa. Tämä 173,5m2 tila sijaitsee kiinteistön 4. kerroksessa. Elimäenkatu 30/Kumpulantie 15 on teollisuushenkinen...
Kysy hintaa!Tallenna
346 m²ToimistotVuokrattavana valoisaa, muuntojoustavaa ja modernia toimistotilaa.
Kysy hintaa!














































































































































































































































































































































































