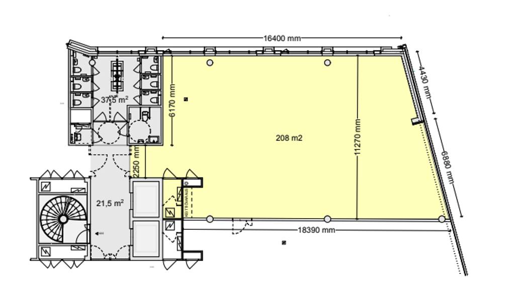
Modernia toimistotilaa Rantatie Business Parkista, Helsingin Kalasatamasta. Tämä 208 m² toimistotila sijaitsee kiinteistön 5. kerroksessa. Tila on...
Toimistot Helsinki
-
KohdenostoTallenna208 m²ToimistotKysy hintaa!
-
KohdenostoOmistajaTallenna
319 m²ToimistotToimistotila, johon mahtuu vähintään 28 työpistettä, avotilassa 18 työpistettä ja 6 hot deskiä, lisäksi kolme vetäytymistilaa. Kahvilakeittiön yhteyd...
Kysy hintaa! -
KohdenostoTallenna1 624 m²Toimistot
Kolmannen kerroksen toimistokokonaisuus pilkottavaksi tai kokonaan omaan käyttöön! Tila koostuu 699,5 m2 kokonaisuudesta, 627 m2 tilasta sekä nämä til...
Kysy hintaa! -
Tallenna497 m²Toimistot
Tästä kuudennen kerroksen toimistosta avautuvat upeat näkymät Helsingin keskustaan. Tila on moderni ja heti muuttovalmis, joten voit aloittaa työt uus...
Kysy hintaa!Tallenna497 m²ToimistotRakennuksen kuvaus: Vuonna 2003 rakennettu Elielinaukio 5 on ollut pääkonttorina koko historiansa ajan ja nyt muutetaan ensi kertaa monikäyttäjätalok...
Kysy hintaa!Tallenna
497 m²ToimistotVapaana valoisa ja avara 6. kerroksen toimistotila 497 m2, jossa ikkunat kolmeen suuntaan. Näkymät Töölönlahden sekä Ratapihan kuin myös viihtyisän si...
Kysy hintaa!Tallenna
502 m²ToimistotVuokrattavana avaraa, modernia, valoisaa ja viihtyisää 6. kerroksen toimistotilaa upeilla keskustan näkymillä. Vuokrattavana avaraa, modernia, valo...
Kysy hintaa!Tallenna1 451 m²ToimistotModerni 1451 m² toimisto Helsingin ydinkeskustassa Rautatieaseman vieressä. Tässä toimistossa on avotilaa ja työhuoneita n. 124 työpisteelle, 12 ne...
Kysy hintaa!Tallenna -
Tallenna
Elimäenkatu 5
Helsinki, Vallila645 m² - 1 159 m²ToimistotPääkonttoritasoista tilaa eloisasta Vallilasta! Elimäenkatu 5:n julkisivut ovat pääosin lasia, joten sisään tulvii paljon luonnonvaloa. Pääkonttori...
Kysy hintaa!Tallenna -
Tallenna64 m²Toimistot
Vuokrataan kalustettu pientoimisto Vallilan Kravattitehtaasta. Tilassa on oma wc, keittiö ja neuvottelutila . Ilmoituksen kuvat yleiskuvia kiinteistön...
Kysy hintaa! -
-
Tallenna380 m² - 532 m²Toimistot
Modernia ja viihtyisää toimistotilaa vapaana Helsingin Vallilasta Tarjolla on valoisa ja tehokas toimistotila Pasilan Elimäentiellä. Nämä 7. kerrok...
Kysy hintaa!Tallenna -
-
-
Tallenna246 m²Toimistot
Rakennuksen kuvaus: Kravattitehdas on kahden rakennuksen toimistokiinteistö. Elimäenkatu 15 on Kravattitehtaan 1970-luvulla valmistunut osa ja edusta...
Kysy hintaa! -
Tallenna
Elimäenkatu 17-19
Helsinki, Vallila48 m²ToimistotTutustu tähän kätevää 48m2 pientoimistotilaan loistavine yhteiskäyttöisine tiloineen. Vallilan sydämessä. Elimäenkatu 17-19 tarjoaa yrityksellesi pait...
Kysy hintaa! -
Tallenna
529 m²ToimistotVapaana 529 m2 toimistotila Vallila Corner -kiinteistöstä. Tilat räätälöidään vielä vuokralaiselle sopiviksi. Ohessa havainnollistavia kuvia kiinteist...
Kysy hintaa! -
Tallenna
-
Tallenna
Elimäenkatu 28
Helsinki, Vallila425 m² - 888 m²ToimistotVapaata toimitilaa Elimäenkadulla. Elimäenkatu 28 tarjoaa yrityksille siistit ja tehokkaat teollisuushenkiset toimitilat. Tilat ovat pääosin avokon...
Kysy hintaa!Tallenna887 m²ToimistotPersoonallista industrial-henkistä toimistotilaa lähellä Pasilan asemaa. Vuonna 1999 valmistuneessa kiinteistössä on pääosin avotoimistotilaa. Kiintei...
Kysy hintaa! -
Tallenna
Elimäenkatu 30
Helsinki, Vallila
346 m²ToimistotVuokrataan 4.kerroksen toimistotila. Tila on mahdollista muokata vastaamaan asiakkaan tarpeita. Elimäenkatu 30 toimitilat ovat viihtyisiä, teollisu...
Kysy hintaa!Tallenna346 m²ToimistotToimistotilaa Helsingin Vallilassa. Tämä 346m2 tila sijaitsee kiinteistön 4. kerroksessa. Vapautuminen sopimuksen mukaan. Elimäenkatu 30 on teol...
Kysy hintaa!TallennaElimäenkatu 30
Helsinki, Vallila346 m²ToimistotVuokrattavana 346 m² toimitilaa Vallilasta, 4. kerroksesta. Nämä hiljattain uudistetut tilat ovat viihtyisiä ja teollisuushenkisiä, tarjoten ainut...
Kysy hintaa!Tallenna -
Tallenna28 m²Toimistot
Vuokrattavana 6. kerroksen 28 m2 toimistotila. Tilassa on oma pieni keittiönurkkaus. WC sijaitsee aivan tilan vieressä ja on yhteiskäytössä taloyhtiön...
Kysy hintaa!Tallenna
28 m²ToimistotVuokrattavana toimistotilaa hyvien liikenneyhteyksien varrelta Helsingin Hermannissa. Vuokrattavana toimistotilaa hyvien liikenneyhteyksien varrelt...
Kysy hintaa!Tallenna30 m²ToimistotTeurastamon vieressä rustiikkisen rouheaa toimitilaa
Kysy hintaa!Tallenna -
Tallenna
-
-
Tallenna550 m²Toimistot
Haluatko sijoittaa yrityksesi merelliseen paikkaan, jossa luovuus ja tehokkuus kohtaavat? Etsiessäsi täydellistä toimistotilaa, Energiakuja 3, Helsing...
Kysy hintaa! -
Tallenna13 m² - 150 m²Toimistohotellit / CoworkingToimistot
VillageWorks Erottaja2 – Upeat toimistotilat Helsingin sydämessä Erottajankadulla
Kysy hintaa! -
Tallenna
201 m²ToimistotNyt vuokrattavana valoisa, avara ja hyväkuntoinen 2. kerroksen toimitila, jossa on useita työhuoneita sekä avotilaa. Korkeat ikkunat aukeavat Erottaja...
Kysy hintaa!Tallenna201 m²ToimistotVuokrataan valoisa, avara ja hyväkuntoinen 2. kerroksen toimistotila, jossa on useita työhuoneita sekä avotilaa. Korkeat ikkunat aukeavat Erottajankad...
Kysy hintaa!Tallenna201 m²ToimistotElegantti toimistotila huippusijainnilla, keskellä Helsingin sydäntä
Kysy hintaa!Tallenna201 m²ToimistotVuokrattavana laadukas ja huippusijainnilla oleva 201 m² toimistotila Helsingin ydinkeskustasta. Tila sijaitsee kiinteistön 2. kerroksessa, ja sen ikk...
Kysy hintaa!Tallenna201 m²ToimistotToisen kerroksen avara toimistotila useilla työhuoneilla sekä avotilalla. Monipuolisessa tilassa onnistuu työskentely niin itsenäisesti kuin tiimin ka...
Kysy hintaa!Tallenna
201 m²ToimistotHuippuosoitteessa Erottajankatu 4:ssä tarjolla 2. kerroksen tyylikästä, valoisaa ja hyväkuntoista toimitila, jossa on useita työhuoneita sekä avotilaa...
Kysy hintaa!Tallenna201 m²ToimistotRakennuksen kuvaus: Upea arvokiinteistöjen kokonaisuus, Bulevardinkulma, sijaitsee Helsingin ydinkeskustassa paraatipaikalla Bulevardin ja Erottajank...
Kysy hintaa!Tallenna
201 m²ToimistotVuokrataan valoisa, avara ja hyväkuntoinen 2. kerroksen toimistotila, jossa on sekä työhuoneita että avotilaa, Korkeat ikkunat antavat Erottajankadull...
Kysy hintaa!Tallenna201 m²ToimistotSiistiä ja valoisaa toimistotilaa Erottajankadun arvokiinteistössä. Tämä 201m2 toimistotila sijaitsee kiinteistön 2. kerroksessa. Toimistossa on s...
Kysy hintaa!Tallenna -
Tallenna
-
Tallenna8 m² - 30 m²Toimistohotellit / CoworkingToimistot
Tyylikkäitä toimistohuoneita uudessa toimistohotellissa Helsingin ydinkeskustassa Erottajalla. Avajaishinnat alk. 549€/kk
53,29 €/m2/kkTallenna196 m²ToimistotSupertyylikästä ja monimuotoista toimitilaa vapaana Erottajankadulla, aivan Helsingin ytimessä. Kuudennen kerroksen vapaana oleva 196 m² tila tarjo...
Kysy hintaa!Tallenna400 m² - 500 m²ToimistotVuokrattavia toimitiloja Erottajankadulla. Erottajankatu 15 tarjoaa loistavan tilaisuuden yrityksille, jotka arvostavat keskeistä sijaintia ja moni...
Kysy hintaa!

















































































































































































































































































































































































































































































