Uudet käyttö- ja sopimusehdot
Päivitämme käyttö- ja sopimusehtojamme. Uudet ehdot ovat voimassa 1.5.2025 alkaen. Tutustu ehtoihin
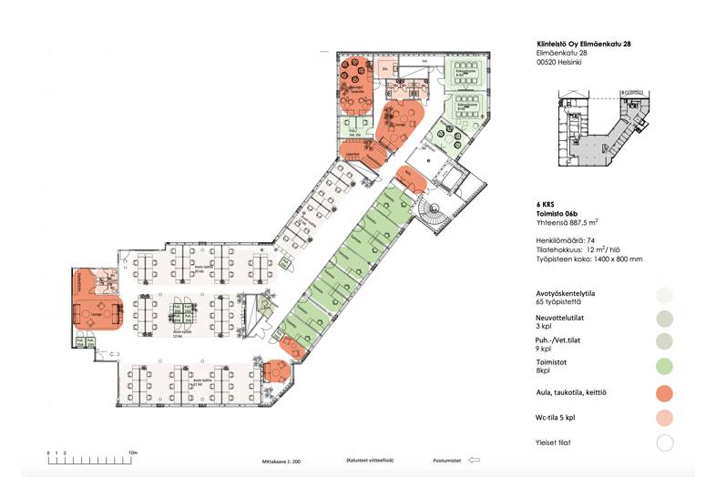
Elimäenkatu 28 Vallila, Helsinki
00510Tyyppi
Toimisto
Koko
888 m²
Kerros
6
Vuokra
Kysy hintaa!
Vuokrataan siisti, valoisa toimistotila, joka koostuu useista työ- ja neuvoteluhuoneista. Ohessa havainnollistavia kuvia.
Tämän teollisuustunnelmaisen kiinteistön toimitilat ovat hyväkuntoisia ja tehokkaita tilaratkaisuiltaan. Kiinteistössä palvelee lounasravintola ja vuokralaisten käytettävissä on tavarahissi.
Helposti lähestyttävä kohde sijoittuu lähelle vilkkaasti liikennöityä Mäkelänkatua ja Pasilan asemaa. Elimäenkadulta pääsee sutjakasti niin Tuusulanväylän kuin Lahden moottoritien alkuun. Raitiovaunu sekä bussi tuovat työmatkalaiset talon välittömään läheisyyteen. Pyöräilijöille on omat suihkutilat. Kiinteistön kerroksista on yhteys kiinteistön omiin pysäköintitiloihin.
Lisätietoja 020 2790 710, lisää kohteita www.premises.fi
Kohteella ei ole lain edellyttämää energiatodistusta tai energialuokka ei tiedossa.
Perustiedot
Tyyppi:
Toimisto
Sopimustyyppi:
Vuokrataan
Osoite:
Elimäenkatu 28, 00510 Helsinki
Kaupunginosa:
Vallila
Tilan koko
Kokonaispinta-ala:
888 m²
Lisätiedot
Kerros:
6
Ympäristö
Liikenneyhteydet:
Raitiovaunu- ja bussipysäkeille 100 m, metroasemalle 1.3 km ja juna-asemalle 700 m.
Tietoa ilmoittajasta

CRE PREMISES
Näytä kaikki saman ilmoittajan kohteetVantaankoskentie 14
01670
VANTAA












