Uudet käyttö- ja sopimusehdot
Päivitämme käyttö- ja sopimusehtojamme. Uudet ehdot ovat voimassa 1.5.2025 alkaen. Tutustu ehtoihin
Elimäenkatu 25-27 Vallila, Helsinki
00510Tyyppi
Toimisto
Koko
640 m²
Vuokra
Kysy hintaa!
Saatavilla
Heti vapaa
Rakennuksen kuvaus:
Berlin/Vallila tarjoaa moderneja työtiloja vanhassa teollisuusrakennuksessa. Berlin/Vallila koostuu kahdesta yhteisen sisäpihan yhdistämästä kiinteistöstä ja se tarjoaa kodin uuden ajan rohkeille yrityksille. Kohde uudistetaan ja sen industriaalihenkiset tilat modernisoidaan uusille käyttäjille. Vanhan osan toimistoissa on hyvä huonekorkeus ja vanhan tehtaan tunnelmaa. Talossa on aulapalvelu ja ravintola sekä suihkut ja pyöräparkki.
Tilan kuvaus:
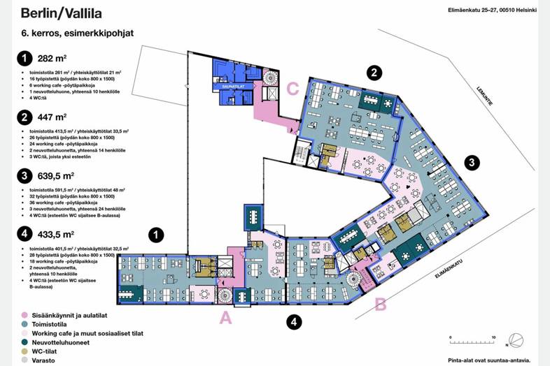
Moderneja industriaalitiloja! Berlin/Vallila on purettu suurilta osin betonille, mahdollistaen vapaiden tilojen räätälöinnin vuokralaisten toiveiden ja tarpeiden mukaan. Vapaiden kerroksien kerroskoko vaihtelee aina jopa 2.595 m² asti sallien joustavat tilajaot ja tilakoot. Tämä upea ylimmän kerroksen 639.5 m2 kulmatoimisto sijaitsee kiinteistön vanhemmalla puolella, jossa on upeat ristikkoikkunat molemmilla pitkillä seinillä tehden tilasta avaran ja valoisan.
Olipa yrityksesi jo iso ja tunnettu tai sitten skaalautumisen kynnyksellä oleva startup, toimitilojesi täytyy tukea liiketoimintaasi ja innostaa työntekijöitäsi. Tutustu osoitteessa berlinvallila(.)fi tai soita numeroon 050 464 8640.
Oheiset havainnekuvat ovat luotu markkinointitarkoituksiin eivätkä välttämättä edusta lopullista toteutusta.
Kerros: 6
Perustiedot
Tyyppi:
Toimisto
Sopimustyyppi:
Vuokrataan
Osoite:
Elimäenkatu 25-27, 00510 Helsinki
Kaupunginosa:
Vallila
Tilan koko
Kokonaispinta-ala:
640 m²
Rakennustiedot
Kiinteistön nimi:
Toimistotila
Lisätiedot
Saatavilla:
Heti vapaa
Tietoa ilmoittajasta
JLL Jones Lang LaSalle Finland Oy
Näytä kaikki saman ilmoittajan kohteetKeskuskatu 7, 4. krs
00100
HELSINKI















