Avoin toimistotila tarjoaa monia mahdollisuuksia työskentelylle. Tämä muuntojoustava tila tarjoaa valmiiksi tehokasta työskentelytilaa, mutta tilaa vo...
Uudet käyttö- ja sopimusehdot
Päivitämme käyttö- ja sopimusehtojamme. Uudet ehdot ovat voimassa 1.5.2025 alkaen. Tutustu ehtoihin
Croisette Finland Oy
Croisette palvelee paikallisesti Helsingissä, Tampereella, Espoossa ja Vantaalla. Löydämme sinulle juuri sinulle parhaan toimitilan riippumatta omistajasta. Croisette Real Estate Partner on nopeiten kasvava ja innovatiivisin konsultointiyritys Pohjoismaiden kiinteistöalalla. Me edustamme alan kehittyneintä ajattelua. Omistautunut tiimimme tarjoaa laadukasta neuvonantoa vuokrauksen, kiinteistötransaktioiden, sekä arvioinnin ja analyysien parissa.
-
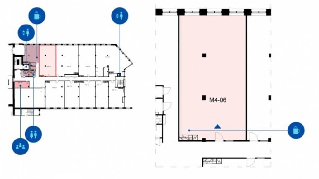
Tallenna201 m²ToimistotKysy hintaa!
-
Tallenna489 m²Toimistot
Toisen kerroksen tilava toimistohuoneisto, joka muokataan vastaamaan juuri teidän tarpeitanne. Erinomainen sijainti ja talon kattavat palvelut mahdoll...
Kysy hintaa! -
Tallenna259 m²Liiketilat
Katutason tila tarjoaa mahdollisuuksia monenlaiseen toimintaan. Täällä onnistuu niin asiakasläheinen toimistotyöskentely kuin liiketoiminta. Tilassa o...
Kysy hintaa! -
Tallenna260 m²Liiketilat
Tämä toisen kerroksen liiketila tarjoaa selkeän pohjan toiminnalle. Tila räätälöidään teille sopivaksi käyttöönottoa varten. Kysy meiltä lisätietoa ti...
Kysy hintaa! -
Tallenna91 m²Liiketilat
Ensimmäisen kerroksen liiketila Koskikeskuksesa tarjoaa mahdollisuuden menestykselle. Tila ei sovellu ravintola-, kahvila- tai kampaamotoimintaan. Ota...
Kysy hintaa! -
Tallenna
Hallituskatu 14-16
Tampere, Keskusta84 m²LiiketilatRemontoitu, hyväkuntoinen liiketila näkyvällä sijainnilla Tampereen keskustassa. Hallituskatu 14-16 tarjoaa yrityksellesi loistavan sijainnin Tampe...
Kysy hintaa! -
Tallenna80 m²Liiketilat
Siisti liiketila Tampereen Aaretissa tarjoaa mahdollisuuden liiketoimintaan lähellä asiakkaita. Tämän liiketilan isot näyteikkunat avautuvan Lentävänn...
Kysy hintaa! -
Tallenna63 m²Liiketilat
Tämä tehokas liiketila sijaitsee rakennuksen kulmalla, joten ikkunoita siinä on kahteen suuntaan. Tämän kauniin liiketilan takahuoneesta löytyy oma mi...
Kysy hintaa! -
Tallenna80 m²Liiketilat
Valoisa liiketila isoilla ikkunoilla Lentävänniemen torin suuntaan. Tämä tila soveltuu esimerkiksi parturi-kampaamolle, ja asiakkaatkin löytyvät lähel...
Kysy hintaa! -
Tallenna111 m²Toimistot
Avotoimisto Seelannin pientoimistokerroksessa, aivan yhteiskäyttöisten sosiaalitilojen tuntumassa. Avokonttorissa kommunikointi on tehokasta. Kerrokse...
Kysy hintaa! -
Tallenna139 m²Toimistot
Siisti avotoimisto Seelannin pientoimistokerroksessa. Tilan ikkunat pohjoiseen ja näkymä kanavalle. Täällä käytössänne ovat kerroksen yhteiskäyttöiset...
Kysy hintaa! -
Tallenna83 m²Toimistot
Finlaysoninkatu 4:ssa sijaitseva avotoimistotila. Wc ja eri kokoiset neuvottelutilat (4 kpl) ovat yhteiskäytössä kerroksen muiden vuokralaisten kanssa...
Kysy hintaa! -
Tallenna132 m²Toimistot
Toimistotila Finlaysoninkatu 4:ssa, Pääkonttori-rakennuksen tiloissa. Kolme avotilaa ja neuvotteluhuone. Lisäksi toimistosta löytyy minikeittiö sekä w...
Kysy hintaa! -
Tallenna223 m²Toimistot
Ensimmäisen ja toisen kerroksen toimistotila T-talon eteläreunassa. Tilassa on oma sisäänkäynti, wc:t sekä käynti yläkertaan. Pienin toimistoyksikkö n...
Kysy hintaa! -
Tallenna1 964 m²Toimistot
Tämä tila kattaa alueen vanhan päärakennuksen, joka on tiilitalo 1920-luvulta. Tilaan kuuluu siis toimistotilojen lisäsi rakennuksen sosiaalitilat. ...
Kysy hintaa! -
Tallenna255 m²Tuotantotilat
Ensimmäisen kerroksen oma erillinen hallitila, joka on toiminut hiekkapuhaltamona. Tilassa on maantason lastausovi. Tilan läheisyydestä löytyy toimist...
Kysy hintaa! -
Tallenna2 790 m²Tuotantotilat
Ensimmäisen kerroksen hallitila järelällä hallinosturilla. Tilassa oma iso maantason nosto-ovi, vapaa korkeus 7,5 m. Tilassa on pieni toimisto-osa. ...
Kysy hintaa! -
Tallenna1 442 m²Tuotantotilat
Ensimmäisen kerroksen n. 7 m korkeaa hallitilaa, jossa on järeä hallinosturi. Osa aidalla ja suojaseinällä erotettua tuotantohallia, oma maantason nos...
Kysy hintaa! -
Tallenna591 m²Toimistot
Tämä viidennen kerroksen toimisto tarjoaa siistit ja remontoidut työskentelytilat teille. Tilan ikkunat ovat korkeat, joten valoa on runsaasti. Tilass...
Kysy hintaa! -
Tallenna245 m²Toimistot
Siistikuntoinen toimisto-/työtila PMK-talon toisessa kerroksessa. PMK-talo valmistui vuonna 1938 suomalaisten puuvillatehtaiden yhteiseksi keskusv...
Kysy hintaa! -
Tallenna280 m²Toimistot
Seitsemännen kerroksen korkea toimistotila juuri teitä varten. Tila remontoidaan tulevan vuokralaisen toiveiden mukaisesti. Wc-tilat löytyvät aivan to...
Kysy hintaa! -
Tallenna300 m²Toimistot
Joustavaa avotilaa rakennuksen neljännessä kerroksessa. Tilan yksinkertainen pohjaratkaisu mahdollistaa sen monenlaisen käytön. PMK-talo valmistui...
Kysy hintaa! -
Tallenna345 m²Toimistot
PMK-talo valmistui vuonna 1938 suomalaisten puuvillatehtaiden yhteiseksi keskusvarastoksi. Nykyään historiallinen mutta täysin uudistettu PMK-talo tar...
Kysy hintaa! -
Tallenna123 m²Tuotantotilat
Kolmannen kerroksen tuotantotila PMK-talossa. Tila taipuu monenlaiseen toimintaan, joten olethan yhteydessä niin mietitään sopiiko se teille! Tilassa ...
Kysy hintaa! -
Tallenna128 m²Toimistot
Tämä seitsemännen kerroksen toimitila soveltuu joustavasti monenlaiseen toimitaan. Tässä avotilassa on omat wc- ja suihkutilat, ja tila soveltuu erime...
Kysy hintaa!
































































































































































