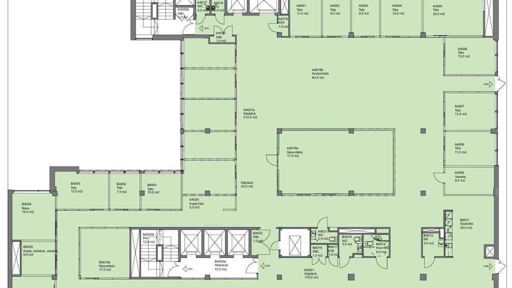
Nyt vapaana remontoitu toimitila Hakaniemessä. Tilassa on runsaasti työ- ja neuvottelutiloja sekä taukotilat, jossa on keittiö. Lisäksi tilassa on avo...
Uudet käyttö- ja sopimusehdot
Päivitämme käyttö- ja sopimusehtojamme. Uudet ehdot ovat voimassa 1.5.2025 alkaen. Tutustu ehtoihin
Croisette Finland Oy
Croisette palvelee paikallisesti Helsingissä, Tampereella, Espoossa ja Vantaalla. Löydämme sinulle juuri sinulle parhaan toimitilan riippumatta omistajasta. Croisette Real Estate Partner on nopeiten kasvava ja innovatiivisin konsultointiyritys Pohjoismaiden kiinteistöalalla. Me edustamme alan kehittyneintä ajattelua. Omistautunut tiimimme tarjoaa laadukasta neuvonantoa vuokrauksen, kiinteistötransaktioiden, sekä arvioinnin ja analyysien parissa.
-
Tallenna902 m²ToimistotKysy hintaa!
-
Tallenna370 m²Toimistot
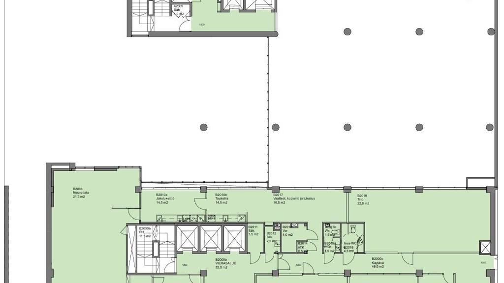
Hakaniemessä on nyt vapaana upeasti remontoitu moderni toimisto. Tilasta löytyy monia eri kokoisia työ- ja neuvotteluhuoneita sekä toimivat tauko- ja ...
Kysy hintaa! -
Tallenna
Elimäenkatu 17-19
Helsinki, Vallila429 m²ToimistotTämä moderni ja siisti toimitila on nyt vapautumassa Vallilassa. Talo on saanut BREEAM Excellent -sertifikaatin, mikä kuvastaa sen ympäristöystävällis...
Kysy hintaa! -
Tallenna
Elimäenkatu 17-19
Helsinki, Vallila1 174 m²ToimistotValoisat ja modernit toimitilat nyt vapautumassa Helsingin Vallilassa. Nämä Pasilan naapurissa sijaitsevat toimitilat ovat hyväkuntoiset ja tilaratkai...
Kysy hintaa! -
Tallenna
Elimäenkatu 17-19
Helsinki, Vallila520 m²ToimistotNyt vapautumassa valoisaa ja tehokasta toimistotilaa hyvien kulkuyhteyksien varrella. Tämä tila remontoidaan vuokralaisen tarpeiden mukaan, mutta se o...
Kysy hintaa! -
Tallenna
Elimäenkatu 17-19
Helsinki, Vallila781 m²ToimistotNyt vapautumassa modernit ja teollisuushenkiset toimitilat Helsingin Vallilassa. Nämä toimitilat ovat hyväkuntoiset ja tilaratkaisuiltaan tehokkaat. T...
Kysy hintaa! -
Tallenna317 m²Toimistot
Tämä valoisa ja vastuullisesti toteutettu toimistotila on nyt vapaana Hakaniemessä. Juuri remontoidusta tilasta löytyy runsaasti avotilaa sekä pienemp...
Kysy hintaa! -
Tallenna476 m²Toimistot
Nyt vuokrattavissa valoisa toimistotila upeilla merinäköaloilla. Tämä moderni tila tarjoaa joustavan pohjaratkaisun, ja voit valita pintamateriaalit m...
Kysy hintaa! -
Tallenna1 359 m²Toimistot
Nyt vuokrattavissa koko kolmannen kerroksen kattava toimistotila upeilla näkymillä. Tämä moderni ja valoisa tila tarjoaa mahdollisuuden valita omat pi...
Kysy hintaa! -
Tallenna605 m²Toimistot
Nyt vuokrattavissa koko viidennen kerroksen kattava toimistotila upeilla näkymillä. Tämä moderni ja valoisa tila tarjoaa mahdollisuuden valita omat pi...
Kysy hintaa! -
Tallenna614 m²Toimistot
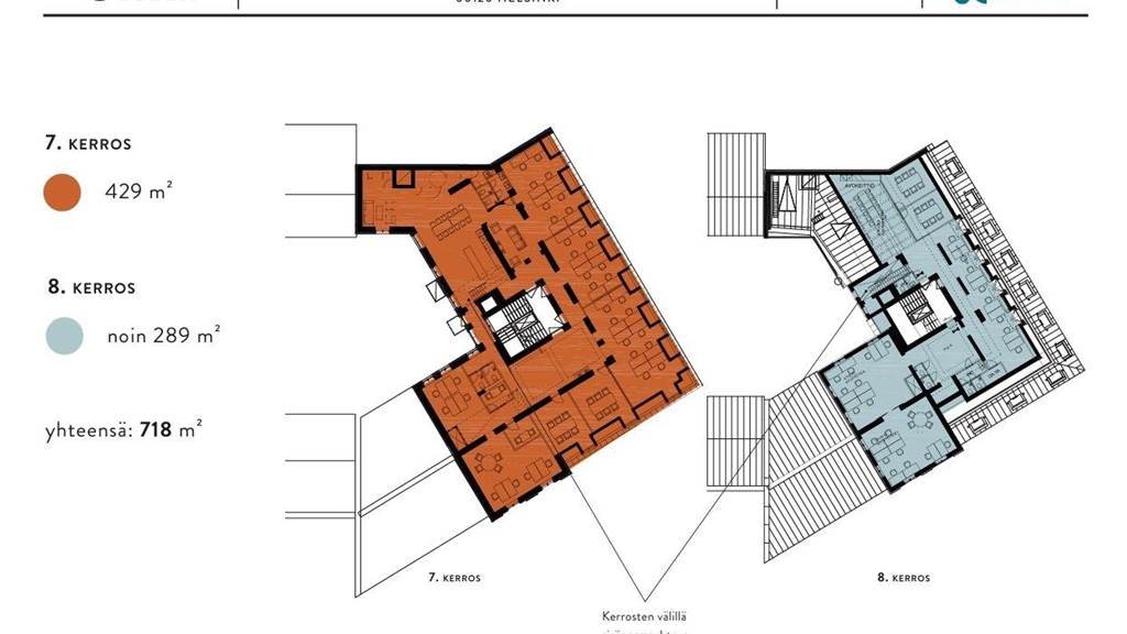
Vuokrattavissa 7.kerroksen toimistotila upeilla näköaloilla. Tästä modernista tilasta löytyy joustava pohjaratkaisu, mihin voit valita pintamateriaali...
Kysy hintaa! -
Tallenna534 m²Toimistot
Vuokrattavissa ylimmän kerroksen toimistotila omalla terassilla ja upeilla näköaloilla. Tästä modernista tilasta löytyy joustava pohjaratkaisu, mihin ...
Kysy hintaa! -
Tallenna233 m²Toimistot
Vapaana upea ja täysin remontointu toimisto 5. kerroksessa Ruoholahdessa. Tila on pääosin avokonttoria, jota täydentävät työ- ja neuvotteluhuoneet. Li...
Kysy hintaa! -
Tallenna757 m²Toimistot
Vapaana upea ja täysin remontoitu 7. kerroksen toimisto. Muuttovalmiissa toimistotiloissa on paljon avonaista työtilaa, yksittäisiä neuvotteluhuoneita...
Kysy hintaa! -
Tallenna3 272 m²Toimistot
Nyt tarjolla koko kerroksen kattava tilakokonaisuus, joka voidaan jakaa pienempiin toimitiloihin. Tilat ovat muokattavissa, ja ne modernisoidaan tulev...
Kysy hintaa! -
Tallenna284 m²Toimistot
Viidennen kerroksen toimisto, joka toteutetaan käyttäjän toiveiden mukaan. Tämä on täysin uutta tilaa, joten loppuratkaisusta voidaan luoda täydelline...
Kysy hintaa! -
Tallenna421 m²Toimistot
Avoin toimistoratkaisu ilman turhia hukkaneliöitä. Työskentely käy avotilassa tehokkaasti, ja omat neukkarit tarjoavat mahdollisuuden työskennellä tii...
Kysy hintaa! -
Tallenna264 m²Toimistot
Avokonttori tarjoaa tehokkaan ympäristön työskentelylle. Tila on valoisa ja viihtyisä, ja se räätälöidään vastaamaan teidän tarpeitanne. Toimmistossa ...
Kysy hintaa! -
Tallenna500 m²Varastot
Ennakkomarkkinoinnissa Pirkkalan Jasperintiellä 1000 - 2143m2 tilat, jotka soveltuvat monipuolisesti niin tuotanto- kuin liiketilakäyttöönkin. Tilat ...
Kysy hintaa! -
Tallenna
Hautalankatu 26
Tampere, Linnainmaa5 000 m²TuotantotilatEnnakkomarkkinoinnissa uudiskohde suositulla Tampereen Linnainmaan alueella. Mahdollisuus suunnitella 5000-10 000 m2 tilat tulevan käyttäjän toiveiden...
Kysy hintaa! -
Tallenna
Ratakatu 1
Helsinki, Kaartinkaupunki794 m²ToimistotNyt on mahdollisuus vuokrata upouuta, vielä rakenteilla olevaa toimistotilaa arvokkaasta Ratakatu 1 kiinteistöstä. Tämä upea toimisto jakautuu kahteen...
Kysy hintaa! -
Tallenna
Ratakatu 1
Helsinki, Kaartinkaupunki454 m²ToimistotNyt on mahdollisuus vuokrata upouuta, vielä rakenteilla olevaa toimistotilaa arvokkaasta Ratakatu 1 kiinteistöstä. Gloria-niminen kiinteistö sijaitsee...
Kysy hintaa! -
Tallenna
Ratakatu 1
Helsinki, Kaartinkaupunki296 m²ToimistotNyt on mahdollisuus vuokrata upouuta, vielä rakenteilla olevaa toimistotilaa arvokkaasta Ratakatu 1 kiinteistöstä. Gloria-niminen kiinteistö sijaitsee...
Kysy hintaa! -
Tallenna607 m²Toimistot
Kolmannen kerroksen toimisto erinomaisella sijainnilla Vallilassa. Tilan huonekorkeus on hieman tyypillistä toimistoa korkeampi, mikä luo tilalle valo...
Kysy hintaa! -
Tallenna387 m²Toimistot
Valoisa toimisto Vantaan Aviapoliksen alueella. Tila koostuu toimistohuoneista sekä avokonttorista. Tässä toimistossa voivat menestyä niin itsenäisen ...
Kysy hintaa!
















































































































































































































