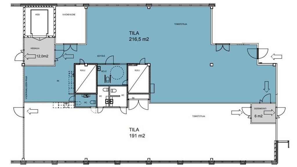
Tämä toimistotila tarjoaa mahdollisuuden tehokkaaseen työskentelyyn erinomaisella sijainilla. Tällä hetkellä avoimeen tilaan voidaan toteuttaa tilarat...
Uudet käyttö- ja sopimusehdot
Päivitämme käyttö- ja sopimusehtojamme. Uudet ehdot ovat voimassa 1.5.2025 alkaen. Tutustu ehtoihin
Croisette Finland Oy
Croisette palvelee paikallisesti Helsingissä, Tampereella, Espoossa ja Vantaalla. Löydämme sinulle juuri sinulle parhaan toimitilan riippumatta omistajasta. Croisette Real Estate Partner on nopeiten kasvava ja innovatiivisin konsultointiyritys Pohjoismaiden kiinteistöalalla. Me edustamme alan kehittyneintä ajattelua. Omistautunut tiimimme tarjoaa laadukasta neuvonantoa vuokrauksen, kiinteistötransaktioiden, sekä arvioinnin ja analyysien parissa.
-
Tallenna224 m²ToimistotKysy hintaa!
-
Tallenna96 m²Liiketilat
Selkeäpohjainen liiketila erinomaisella sijainnilla Helsingin Hermannissa. Tämä liiketila on lähellä ihmisvirtoja, mutta kuitenkin omassa rauhassa. ...
Kysy hintaa! -
Tallenna2 605 m²Varastot
Tehokas varastotila erinomaisella sijainnilla Vantaan Petikossa. -Vapaa korkeus 8,5 m2 -4 lastaustakua -2 lastauslaiturillista nosto-ovea Ota ha...
Kysy hintaa! -
Tallenna1 162 m²Varastot
Korkeaa varastotilaa logistisesti erinomaisella sijainnilla. Tilan vapaa korkeus n. 10 metriä. Tilan yhteydessä on kaksi lastaustaskua, lastauslaituri...
Kysy hintaa! -
Tallenna1 008 m²Toimistot
Tämä Finnairin pääkonttorina tunnettu ja nykyisin monikäyttäjä toimistotalona toimiva upea toimistokiinteistö tarjoa modernia toimistotilaa lentoasema...
Kysy hintaa! -
Tallenna524 m²Toimistot
Tietokuja 2, BLU Helsinki Tämä ikoninen pääkonttorikiinteistö on päivitetty kohti energiatehokasta, hybridityöskentelyyn soveltuvaa, huikeat palvel...
Kysy hintaa! -
Tallenna6 084 m²Varastot
Kattava kokonaisuus varasto- ja toimistotilaa erinomaisella sijainnilla Helsinki-Vantaan lentokentän välittömässä läheisyydessä. Varastotila on varust...
Kysy hintaa! -
Tallenna
Tehtaankatu 27–29 D, 3. Krs
Helsinki, Punavuori640 m²ToimistotMestaritalossa persoonallinen ja valoisa D-rapun ja sen kolmannen kerroksen 640-neliöinen kulmahuoneisto, jossa on runsaasti avokonttoritilaa, neuvott...
Kysy hintaa! -
Tallenna
Tehtaankatu 27–29
Helsinki, Punavuori1 103 m²ToimistotTarjolla tilaa historiallisesta Mestaritalosta ja sen neljännestä kerroksesta. Täydellinen monitilatoimisto - löytyy pieniä tiloja vetäytymisiin, pala...
Kysy hintaa! -
Tallenna
Tehtaankatu 27–29
Helsinki, Punavuori293 m²ToimistotMestaritalon mestarillinen ja myös vuokraltaan edullinen 293 m2 toimisto - erittäin siisti toimisto olisi vapaana seuraavalle käyttäjälle. <BR> Täm...
Kysy hintaa! -
Tallenna900 m²Toimistot
Tämä koko kerroksen kattava toimistohuoneisto tarjoaa teille toimivan työympäristön. Tilaa voidaan jakaa sopimaan myös hieman pienemmän tilan hakijoil...
Kysy hintaa! -
Tallenna575 m²Toimistot
Tämä kattavan kokoinen toimisto tarjoaakin hieman erilaiset puitteet työskentelylle. Näistä tiloista löytyy iso tuotantokeittiö ammattikeittiökalustei...
Kysy hintaa! -
Tallenna305 m²Toimistot
Tämä neljännen kerroksen toimisto tarjoaa tehokkaat tilat työskentelylle. Tässä tilassa on avokonttoria, jossa kommunikointi kollegoiden kanssa on hel...
Kysy hintaa! -
Tallenna1 487 m²Varastot
Vapautettavissa 1487-neliöinen varastotila, jossa kaksi lastauslaiturillista nosto-ovea, vapaa korkeus huikeat 8,6 m ja lattiakantavuus 2 000 kg/m2. S...
Kysy hintaa! -
Tallenna115 m²Toimistot
Nämä remontoitavat tilat tarjoavat siistit puitteet toiminnallenne. Näitä tiloja voidaan jakaa monella tapaa noin 115m2 toimistotilasta aina yli tuhan...
Kysy hintaa! -
Tallenna63 m²Liiketilat
Upouuden asuintalon kivijalkaan valmistuu tämä 63 m2. Upeat lattiasta lähes katonrajaan kulkevat isot ikkunat tuovat valoa ja näyttävyyttä tilaan. ...
Kysy hintaa! -
Tallenna632 m²Toimistot
Viidennen kerroksen huikeilla merinäköalailla varustettu 632 m2 remontoitava toimistotila, joka räätälöidään seuraavan käyttäjän tarpeiden mukaan. Til...
Kysy hintaa! -
Tallenna
Tallberginkatu 2
Helsinki, Ruoholahti93 m²ToimistotTallberginkatu 2:n funkkistalo tunnetaan parhaiten Tallbergintalona. Se toimii käsi kädessä viereisen toimistorakennuksen, Itämerentalon kanssa. Yhtei...
Kysy hintaa! -
Tallenna590 m²Toimistot
Tämä ensimmäisen kerroksen toimistotila on osittain remontoitu ja on toiminut Takomo Basen showroomina. Tätä tilaa on jaettu soveltumaan monenlaiseen ...
Kysy hintaa! -
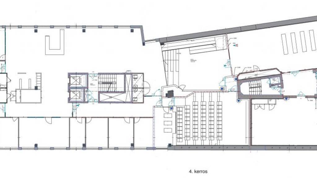
Tallenna704 m²Toimistot
Vapaana kiinteistön 3. kerroksesta 704 m2 tila, josta on näkymät Takomotien suuntaan. Tiloissa on hyvä huonekorkeus ja ikkunoita kolmeen suuntaan ja n...
Kysy hintaa! -
Tallenna343 m²Tuotantotilat
Ensimmäisen kerroksen sisäänajettava 343 m2 varasto-/tuotantotila, jossa nosto-ovi 3,5 m x 3,7 m. Jos et tarvitse pihaa etkä tilalta korkeutta, mut...
Kysy hintaa! -
Tallenna17 m²Toimistot
POOL Verk tarjoaa joustavia sekä vastuullisia tiloja tulevaisuuden työelämään! POOL Work -toimistot voivat toimia monissa käyttötarkoituksissa, kuten ...
Kysy hintaa! -
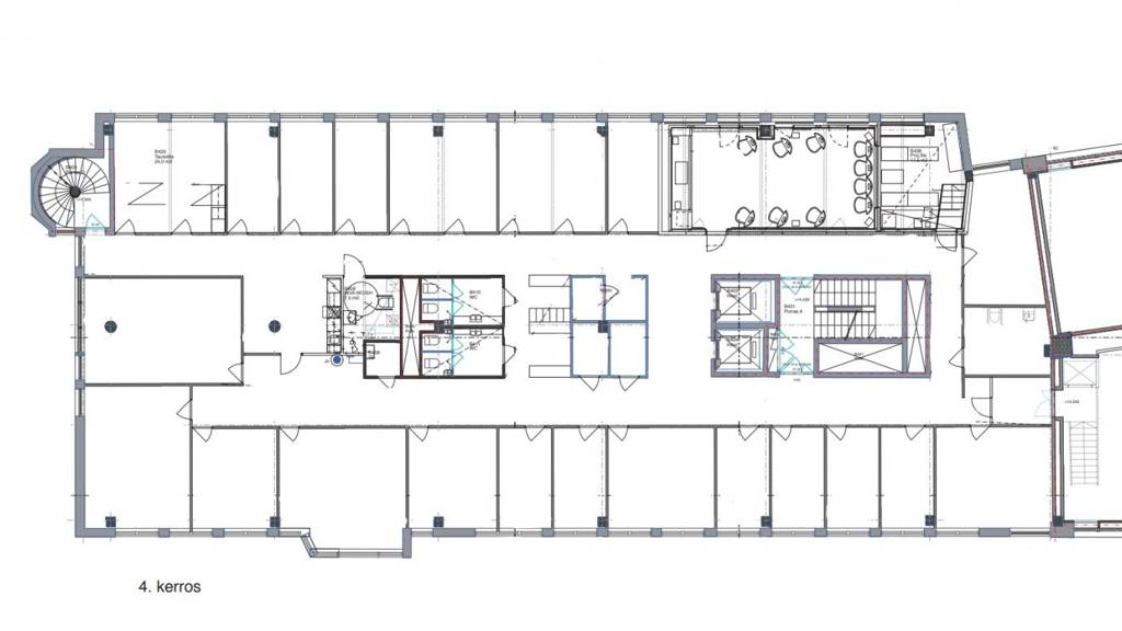
Tallenna694 m²Toimistot
Tätä neljännen kerroksen toimistotilaa reunustavat erikokoiset työ- ja neuvottaluhuoneet. Tilan keskiosassa on taukotilaa keittiöineen, varasto-/kopio...
Kysy hintaa! -
Tallenna1 365 m²Toimistot
Huoneistosta löytyy tavallista toimistoa, jonka lisäksi tilaa on käytetty avoimena aula- ja näyttelytilana. Toimistotiloja täydentävät oma taukotila k...
Kysy hintaa! -
Tallenna4 700 m²Varastot
Tämä nykyaikainen ja monipuolinen varasto- ja logistiikkakokonaisuus tarjoaa erinomaiset puitteet tehokkaalle toiminnalle. Tilakokonaisuuteen sisältyy...
Kysy hintaa!


































































































































































































































