Rauhallinen toimistotila työ- ja tiimihuoneilla. Huoneet luovat hyvän pohjan keskittyneelle työskentelylle. Tilassa on oma taukokeittiö ja wc. Käynti ...
Uudet käyttö- ja sopimusehdot
Päivitämme käyttö- ja sopimusehtojamme. Uudet ehdot ovat voimassa 1.5.2025 alkaen. Tutustu ehtoihin
Croisette Finland Oy
Croisette palvelee paikallisesti Helsingissä, Tampereella, Espoossa ja Vantaalla. Löydämme sinulle juuri sinulle parhaan toimitilan riippumatta omistajasta. Croisette Real Estate Partner on nopeiten kasvava ja innovatiivisin konsultointiyritys Pohjoismaiden kiinteistöalalla. Me edustamme alan kehittyneintä ajattelua. Omistautunut tiimimme tarjoaa laadukasta neuvonantoa vuokrauksen, kiinteistötransaktioiden, sekä arvioinnin ja analyysien parissa.
-
Tallenna195 m²ToimistotKysy hintaa!
-
Tallenna465 m²Toimistot
Peruskuntoinen huonetoimisto muutosmahdollisuuksilla. Oma taukotila ja wc:t sujuvoittavat päivän kulkua. Tila voidaan saneerata ja muokata vastaamaan ...
Kysy hintaa! -
Tallenna459 m²Toimistot
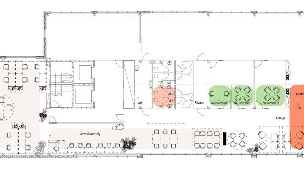
Katutason moderni monitilatoimisto, jonne niin työntekijöiden kuin asiakkaiden on helppo saapua. Tilassa on kaksi neuvotteluhuonetta, kolme vetäytymis...
Kysy hintaa! -
Tallenna642 m²Toimistot
Valoisa, suurilla ikkunoilla kolmeen ilmansuuntaan varustettu monipuolinen toimistotila. Tässä hybridityöskentelyä tukevassa tilassa on 2 isoa neuvott...
Kysy hintaa! -
Tallenna1 157 m²Toimistot
Koko siiven suuri toimistotila jopa 88 työpisteellä. Valoisassa tilassa on ikkunat kolmeen ilmansuuntaan. Toimisto ilman seinänaapureita on rauhalline...
Kysy hintaa! -
Tallenna573 m²Toimistot
Valoisa päätytoimisto ikkunoilla kolmeen ilmansuuntaan. Avotilaa täydentää kaksi neuvotteluhuonetta, kolme vetäytymistilaa ja rauhallinen cafe/lounge....
Kysy hintaa! -
Tallenna361 m²Toimistot
Kauniilla puistomaisemalle varustettu läpitalon muuttovalmis toimisto. Tila koostuu avokonttorista, jota täydentää viisi vetäytymistilaa sekä neuvotte...
Kysy hintaa! -
Tallenna2 980 m²Toimistot
Seitsemännen kerroksen valoisa toimistokokonaisuus. Rakennuksessa on kolme siipeä, joissa on ikkunat kolmeen eri suuntaan. Tila räätälöidään teille so...
Kysy hintaa! -
Tallenna680 m²Toimistot
Peruskorjattu toimitila nyt vapaana Kalliossa. Tässä modernissa, isossa toimitilassa on hyvin tilaa sekä työ- että neuvotteluhuoneille. Lisäksi tilass...
Kysy hintaa! -
Tallenna902 m²Toimistot
Swing Housen B-talo tarjoaa siistin työympäristön erinomaisella sijainnilla. Tila koostuu pääosin avokonttorista, jota täydentävät neuvotteluhuoneet. ...
Kysy hintaa! -
Tallenna400 m²Toimistot
Swing Housen B-talo tarjoaa siistin työympäristön erinomaisella sijainnilla. Kolmas kerros kattaa yhteensä noin 900 m2, mutta se voidaan jakaa pienemp...
Kysy hintaa! -
Tallenna500 m²Toimistot
Swing Housen B-talo tarjoaa siistin työympäristön erinomaisella sijainnilla. Kolmas kerros kattaa yhteensä noin 900 m2, mutta se voidaan jakaa pienemp...
Kysy hintaa! -
Tallenna352 m²Toimistot
Nyt vapaa muuttovalmis toimisto Ruoholahdesta. Tämä tila koostuu isosta avotilasta sekä työ- ja neuvotteluhuoneista. Lisäksi tilasta löytyy iso keitti...
Kysy hintaa! -
Tallenna556 m²Toimistot
Seitsemännen kerroksen iso toimisto nyt vapaana Hakaniemessä. Tämä toimitila voidaan jakaa myös kahteen 237 m² ja 267,5 m² kokoisiin kokonaisuuksiin. ...
Kysy hintaa! -
Tallenna265 m²Toimistot
Nyt vapaana moderni toimisto upeilla näkymillä Paasivuorenpuistikkoon. Tästä täysin remontoidusta toimistosta löytyy kaunis keittiölounge ja wc-tilat....
Kysy hintaa! -
Tallenna189 m²Toimistot
Nyt vapaana muuttovalmis tila Ruoholahdessa. Tässä toisen kerroksen toimitilassa on avotilaa sekä kaksi neuvotteluhuonetta. Tilassa on lisäksi iso lou...
Kysy hintaa! -
Tallenna368 m²Toimistot
Valoisa toimisto nyt vuokrattavissa Ruoholahdessa. Tässä toimistossa on iso avotila ja muutama pienempi neuvotteluhuone. Lisäksi toimistossa on lounge...
Kysy hintaa! -
Tallenna676 m²Toimistot
Nyt vapaana toimisto huikealla näkymällä Teurastamolle. Tila tullaan remontointoimaan ennen vuokralaisen muuttoa, joten materiaaleihin ja pohjakuvaan ...
Kysy hintaa! -
Tallenna578 m²Toimistot
Nyt vuokrattavissa räätälöitävä toimitila Helsingistä. Tähän Kalasatamassa sijaitsevaan toimistoon on mahdollista toteuttaa juuri sinun unelmatilasi. ...
Kysy hintaa! -
Tallenna778 m²Toimistot
Nyt vuokrattavissa avara kolmannen kerroksen toimitila. Tila on hyvin muokattavissa, ja tullaankin modernisoimaan tulevan käyttäjän tarpeiden mukaan. ...
Kysy hintaa! -
Tallenna6 200 m²Toimistot
Kahden kerroksen upea tilakokonaisuus nyt vapaana Kalasatamassa. Toimitilat ovat muokattavissa, ja ne tullaan modernisoimaan käyttäjän toiveiden mukaa...
Kysy hintaa! -
Tallenna1 526 m²Toimistot
Nyt vuokrattavissa toimitila huikealla näkymällä Suvilahdelle. Tästä tilasta saat itsellesi täydellisen, sillä tila tullaan räätälöimään sinulle ennen...
Kysy hintaa! -
Tallenna
Siltasaarenkatu 18-20
Helsinki, Hakaniemi688 m²ToimistotNyt vuokrattavissa suuri toimistotila Helsingin tunnetusta Ympyrätalosta. Tässä yhdeksännen kerroksen toimitilassa on suuret ikkunat, jotka tuovat hyv...
Kysy hintaa! -
Tallenna586 m²Toimistot
Upea ja ainutlaatuinen toimitila nyt vuokrattavissa Helsingin sydämessä. Tila on avara ja koostuu pääosin avotilasta, mutta sieltä löytyy myös muutami...
Kysy hintaa! -
Tallenna533 m²Toimistot
Nyt vuokrattavissa tehdashenkinen toimitila Punavuoresta. Tämä tila remontoidaan vuokralaisen toiveiden mukaan, joten voit räätälöidä toimiston juuri ...
Kysy hintaa!



































































































































































































































































































































