HALLIKOKONAISUUS KEHÄ V VARRELLA Salpausselkää mukaillen kulkee Valtatie 25 tuttavallisemmin Hankobaana. Nurmijärven RAJAMÄELLÄ, kiinni Hankotiessä ...
Tuotantotilat Nurmijärvi
-
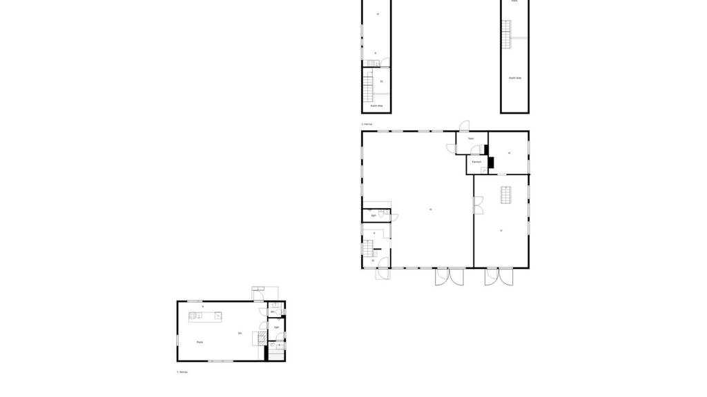
KohdenostoTallenna4 250 m²Tuotantotilat1 250 000 €
-
Tallenna
-
Tallenna
-
Tallenna
275 m² - 585 m²TuotantotilatVarastotHyvää tuotanto- ja varastotilaa Nurmijärven Ilvesvuorelta. Tila kokonaisuudessaan 585 m2 ja jakaantuu n 310 m2 tuotanto-/varastotilaan (2 nosto-ovea) ...
Kysy hintaa! -
Tallenna
-
-
Tallenna
-
Tallenna
-
-
Tallenna500 m²ToimistotTuotantotilat+1Kysy hintaa!
-
Tallenna
-
Tallenna1 531 m²TuotantotilatVarastot
Vuokrattavana 1531 m² teollisuus- ja varastotila, joka tarjoaa erinomaiset mahdollisuudet monipuoliseen käyttöön. Tila sijaitsee helposti saavutettava...
Kysy hintaa! -
Tallenna
-
Tallenna
Kontiontie 5
Nurmijärvi, Karhunkorpi1 354 m²TuotantotilatVarasto-/teollisuustilaa Nurmijärven Karhunkorven teollisuusalueella. Vuokrattavana 1354m2 varasto-/teollisuustilaa. Tila on mahdollista vuokrata y...
Kysy hintaa! -
Tallenna1 354 m²TuotantotilatVarastot
Vuokrattavana 1354 m² teollisuus- ja varastotila, joka tarjoaa erinomaiset mahdollisuudet monipuoliseen käyttöön. Tila sijaitsee helposti saavutettava...
Kysy hintaa! -
Tallenna183 m²Tuotantotilat
Omalla tontilla sijaitseva 183m2 tuotantotila/varastotila/toimitilarakennus. Tuotantorakennuksessa on hallitilojen lisäksi varastotilaa, pieni toim...
200 000 € -
Tallenna
-
Tallenna
-
Tallenna
-
Tallenna

















































































































