Vapaat toimitilat Koivuhaka (Vantaa)
-
Tallenna490 m²ToimistotTuotantotilat
Vuokrattavana monipuolinen 490 m² toimistotila, joka soveltuu myös tuotantotilaksi. Tilassa on huoneita, avotilaa sekä omat keittiö- ja wc-tilat. ...
Kysy hintaa!Tallenna490 m²ToimistotVuokrataan Vantaan Koivuhaassa 490m2 monitoimitila, joka soveltuu on toimisto- tai tuotantotilaksi. Tilasta löytyy työhuoneita, avoitilaa sekä omat ke...
Kysy hintaa! -
Tallenna
-
Tallenna
458 m²ToimistotTuotantotilat+1Vuokrattavana monitoimitilaa, jossa on toimistoa sekä varasto-/tuotantotilaa. Vuokrattavana monitoimitilaa, jossa on toimistoa sekä varasto-/tuotan...
Kysy hintaa!Tallenna
458 m²ToimistotTuotantotilatMointoimitilaa Koivuhaassa, aivan Tuusulantien lähellä. Soveltuu hyvin toimistoksi ja osin myös varastoksi. Katetulta lastauslaiturilta tavarat helpos...
Kysy hintaa!Tallenna458 m²ToimistotTuotantotilat+1Vuokrattavana 2. kerroksen 458 m² monitoimitila, jossa yhdistyvät toimisto- ja varasto- tai tuotantotilat. Varastotilassa on käytettävissä lastaus...
Kysy hintaa!Tallenna458 m²TuotantotilatVuokrataan 458m2 monitoimitila, jossa on toimistoa sekö varasto-/tuotantotilaa. Varastoon on lastauslaituri ja nosto-ovi. Maksuttomia pysäköintip...
Kysy hintaa!Tallenna
458 m²ToimistotTuotantotilat+1Vuokrattavissa monitoimitila, jossa toimistoa sekä matalaa varasto- / tuotantotilaa. Varastoon on lastauslaituri ja nosto-ovi. Tuusulanväylän kupe...
Kysy hintaa! -
Tallenna
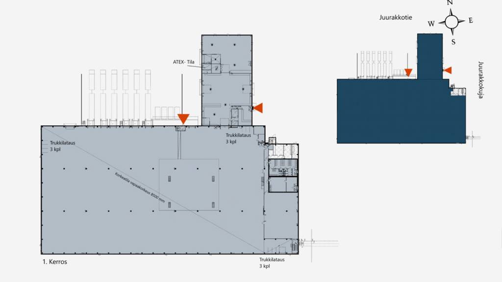
3 123 m² - 10 418 m²ToimistotVarastotVuokrataan yhteensä 9.218m2 varasto-tuotantotilaa (8.135m2 + 1.083m2) joka on jaettavissa kahdelle. Varaston isomman osan korkeus on 8.50m ja pienemm...
Kysy hintaa!Tallenna9 214 m²VarastotVuokrattavana 9214 m² varastotilaa Vantaalta. Tila on heti vapaa ja soveltuu erinomaisesti logistiikkaan ja varastointikäyttöön. Varasto muodostuu ...
Kysy hintaa!Tallenna
9 214 m²VarastotKoivuhaassa Tuusulantien läheisyydessä vuokrattavissa hyvää ja korkeaa varastotilaa. Koivuhaassa Tuusulantien läheisyydessä vuokrattavissa hyvää ja...
Kysy hintaa!Tallenna
9 214 m²VarastotNykyaikainen varasto muodostuu korkeammasta ja matalammasta osasta. Korkeus n. 8,5 m. Hyvät sosiaalitilat, pukuhuoneet ja suihkut 1. kerroksessa. Jääh...
Kysy hintaa!Tallenna9 214 m²VarastotVuokrattavana varasto-/tuotanto- ja toimistotilaa Vantaan Koivuhaassa. Tämä 9214 m² toimitila koostuu korkeammasta 8131 m² osasta ja matalammasta ...
Kysy hintaa!OmistajaTallenna9 214 m²VarastotNykyaikainen varasto muodostuu korkeammasta ja matalammasta osasta. Korkeampi osa n. 8 131 m² Korkeus n. 8,5 m Lattiakantavuus 40 kN/m² 6 lastau...
Kysy hintaa!Tallenna9 218 m²VarastotVuokrataan varasto 9 218 m2. Nykyaikainen varasto muodostuu korkeammasta ja matalammasta osasta. Korkeampi osa n. 8 135 m². Korkeus n. 8,5 m. Latti...
Kysy hintaa!Tallenna9 218 m²VarastotKoivuhaassa vapautuu moderni varastotila sekä toimistotilaa. Varastotilat muodostuvat korkeammasta ja matalammasta osasta. Korkeampi osa n. 8 13...
Kysy hintaa!Tallenna9 218 m²VarastotJuurakkotie 4 eli Vantaankulma sijaitsee loistavalla paikalla Tuusulanväylän ja Kehä III:n välittömässä läheisyydessä. Tämä vuonna 2008 valmistunut va...
Kysy hintaa!Tallenna9 218 m²VarastotRakennuksen kuvaus: Vuonna 2009 huhtikuussa valmistunut korkea varastorakennus erittäin hyvällä sijainnilla, Tuusulantien ja Kehä 1 tuntumassa, lento...
Kysy hintaa!Tallenna9 218 m²VarastotVuokrattavana varastotilaa Vantaan Koivuhaassa. Varasto muodostuu korkeammasta ja matalammasta osasta. Korkeus n. 8,5 m Lattiakantavuus 40 kN/m² 6...
Kysy hintaa!Tallenna9 218 m²VarastotVuokrattavana monipuolinen ja energiatehokas varastokokonaisuus Vantaalla! Vuokrataan nykyaikainen varastorakennus, joka koostuu kahdesta eri korke...
Kysy hintaa!TallennaTallenna9 218 m²TuotantotilatVarastotNykyaikainen, tehokas ja monipuolinen varastorakennus loistosijainnilla Vantaan Koivuhaassa. Moderni varastokokonaisuus, joka muodostuu kahdesta os...
Kysy hintaa!Tallenna1 083 m² - 9 218 m²TuotantotilatVarastotKysy hintaa!Tallenna -
Tallenna570 m²Varastot
Lähes uudesta varastotilasta ja laadukkaasta toimistotilasta koostuva tila. Vajaa 200 m2 käsittävä toimistotila koostuu avokonttorista, jota täydentää...
Kysy hintaa!TallennaTallenna -
-
Tallenna35 m²LiiketilatToimistot
Jäähdytetty 2 hengen toimisto runsailla pysäköintitiloilla
Kysy hintaa! -
-
Tallenna485 m²ToimistotTuotantotilat
Vuokrattavissa tuotanto-/toimistoilaa Koivuhaasta Hyväkuntoista toimitilaa, joka soveltuu toimistokäyttöön sekä myös kevyeen tuotantoon. Toimitilaa...
Kysy hintaa!Tallenna490 m²TuotantotilatVuokrattavana hyväkuntoista toimisto-/kevyttuotantotilaa Vantaan Koivuhaassa. Tämä 490 m² tila sijaitsee kiinteistön 1. kerroksessa. Tila on pääos...
Kysy hintaa!Tallenna
490 m²ToimistotTuotantotilat+1Vapautumassa loppuvuodesta 2025 hyväkuntoista toimisto/kevyt tuotantotilaa. Toimitilaan on kulkuyhteys lastauslaiturilta. Tila pääosin avotilaa, tilas...
Kysy hintaa!OmistajaTallenna490 m²ToimistotTuotanto-/toimistotila 490 m², Koivuhaankuja 1 Heti vapaana hyväkuntoista toimitilaa, joka soveltuu toimistokäyttöön sekä myös kevyeen tuotantoon. To...
Kysy hintaa!Tallenna490 m²ToimistotVarastotHyväkuntoinen toimitila kevyeen tuotantoon tai toimistoksi, loistavalla sijainnilla Koivuhaassa. Hyväkuntoinen toimisto-/kevyttuotantotila loistopa...
Kysy hintaa!Tallenna
490 m²ToimistotTuotantotilatVuokrattavana hyväkuntoista toimisto-/kevyt tuotantotilaa. Vuokrattavana hyväkuntoista toimisto-/kevyt tuotantotilaa. Toimitilaan on kulkuyhteys l...
Kysy hintaa!Tallenna1 800 m²ToimistotTuotantotilatViehättävän yksilöllistä tilaa Koivuhaasta
Kysy hintaa!Tallenna -
Tallenna
-
Tallenna490 m²ToimistotTuotantotilatKysy hintaa!
-
Tallenna200 m² - 5 000 m²ToimistotVarastot
Lentokentän vierestä tilaa loistaa
Kysy hintaa!OmistajaTallenna
228 m²ToimistotVuokrattavana siisti 2. kerroksen toimistotila lähellä Helsinki-Vantaan lentokenttää. Tilassa on muutama huone, avotilaa sekä omat wc- ja keittiötilat...
Kysy hintaa!TallennaTallennaTallennaTallenna -
Tallenna450 m² - 1 500 m²ToimistotTuotantotilat+1
Tilaa mahtavien kulkuyhteyksien päästä
Kysy hintaa!Tallenna -
Tallenna
-
-
Tallenna51 m²Varastot
Kompakti, uutta vastaava halliosake erinomaisella sijainnilla Koivuhaassa Lähellä Tuusulantietä ja Kesä III:a. Tila 53,7m2: Leveys 4,613m, pituus 8,...
15,49 €/m2/kk -
Tallenna
-
Tallenna404 m²ToimistotTuotantotilat+1
Myydään tuotanto- / varasto- / toimistotila 404 m2
249 000 € -
Tallenna
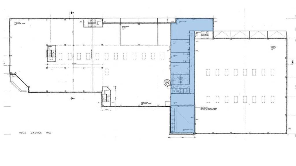
228 m²ToimistotVuokrattavana toimistotilaa toisesta kerroksesta 228m2. Tilat vuokrataan yhdessä kiinteistön varastotilojen kanssa. Lisätietoja 020 7290 710. Lisää...
Kysy hintaa!Tallenna
228 m²ToimistotVuokrattavana toisen kerroksen siistiä ja monipuolista toimistotilaa. Vuokrattavana toisen kerroksen siistiä ja monipuolista toimistotilaa. Tilas...
Kysy hintaa!Tallenna228 m²ToimistotToimistotilaa Vantaan Koivuhaassa. Tämä 228m2 toimistotila sijaitsee kiinteistön 2. kerroksessa. Meiramitie 3 sijaitsee hyvällä paikalla, Tuusu...
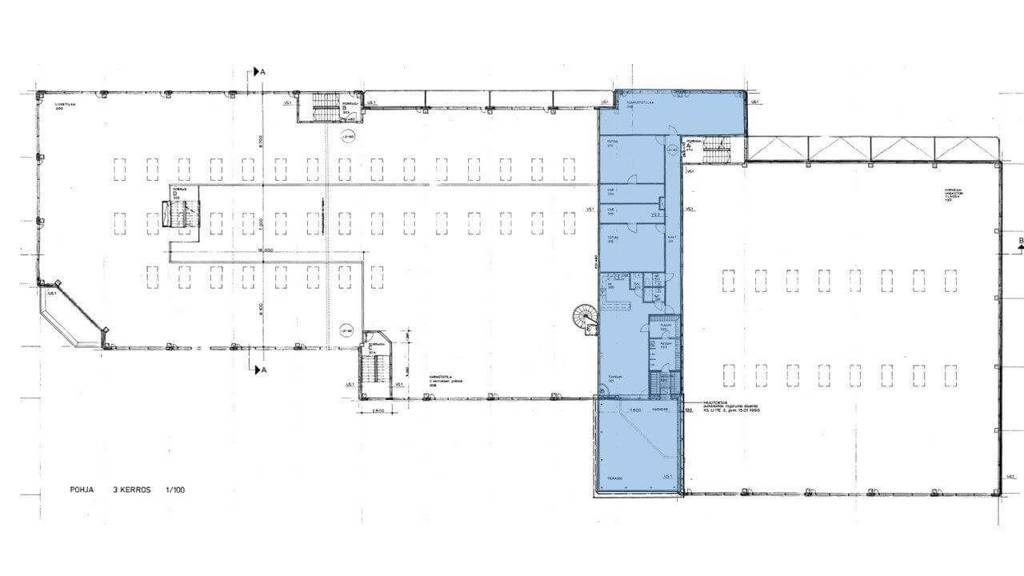
Kysy hintaa!Tallenna2 479 m²VarastotKoivuhaassa katutason varasto 1902m2 +tsto 577 yht. 2479 m2 lähellä lentokenttää. Toimistotila 2. kerroksessa. Kysy lisää mika.tilli@rhg.fi, 040 70...
Kysy hintaa! -
Tallenna
750 m²ToimistotVarastotVuokrataan tai myydään kiinteistökokonaisuus, joka sijaitsee loistavalla paikalla Koivuhaassa Vantaalla. Vuokrataan kiinteistökokonaisuus, joka koo...
Kysy hintaa! -
Tallenna
1 258 m²ToimistotModernia monitilatoimistoa Vantaan Koivuhaan yritysalueella. Avotilaa ja huoneita, siistit sosiaalitilat. Ota yhteyttä ja sovi esittely, palvelumme ...
Kysy hintaa! -
Tallenna396 m²Toimistot
Vuokrattavana toimistotilaa Koivuhaassa Vantaalla. Tämä noin 396m2 tila sijaitsee kiinteistön 2.kerroksessa. Tila koostuu avotilasta sekä huoneist...
Kysy hintaa! -
Tallenna215 m²TuotantotilatVarastot
Katutason 215 m² varasto-/tuotanto-/toimistotila loistavalta sijainnilta, Vantaan Koivuhaasta. 215 m² tila jossa korjaamohalli (n. 70 m²) kahdella ...
Kysy hintaa!Tallenna215 m²VarastotKorjaamo-/tuotantotilaa hyvien yhteyksien varrelta Koivuhaasta. Toimitilassa on omat sosiaali- ja varastotilat. Toimitilassa on 2 nosto-ovea sekä öl...
Kysy hintaa!Tallenna
486 m²ToimistotVuokrattavana toimistoa loistavalla sijainnilla. Toimitila voidaan remontoida asiakkaan tarpeiden mukaiseksi. Toimitilassa on oma takkahuone, keittiö,...
Kysy hintaa!Tallenna486 m²ToimistotVuokrattavana 486 m² toimistotilaa Vantaan Koivuhaasta. Toimisto sijaitsee erinomaisella paikalla, ja tila voidaan remontoida vastaamaan asiakkaan...
Kysy hintaa!OmistajaTallenna486 m²ToimistotToimisto 486 m², Niittytie 13 Vuokrattavana toimistoa loistavalla sijainnilla. Toimitila voidaan remontoida asiakkaan tarpeiden mukaiseksi. Toimitila...
Kysy hintaa!Tallenna
486 m²ToimistotVuokrattavana toimistoa loistavalla sijainnilla. Toimitila voidaan remontoida asiakkaan tarpeiden mukaiseksi. Toimitilassa on oma takkahuone, keittiö,...
Kysy hintaa!Tallenna486 m²ToimistotToimistotilaa näkyvällä paikalla Koivuhaassa. Tämä 486m2 toimistotila sijaitsee kiinteistön 2. ja 3. kerroksessa. Tila remontoidaan vuokralaisen t...
Kysy hintaa!TallennaTallennaTallenna -
Tallenna
-
Tallenna























































































































































































































































































































