Toimistot Satamaradankatu (HELSINKI)
-
-
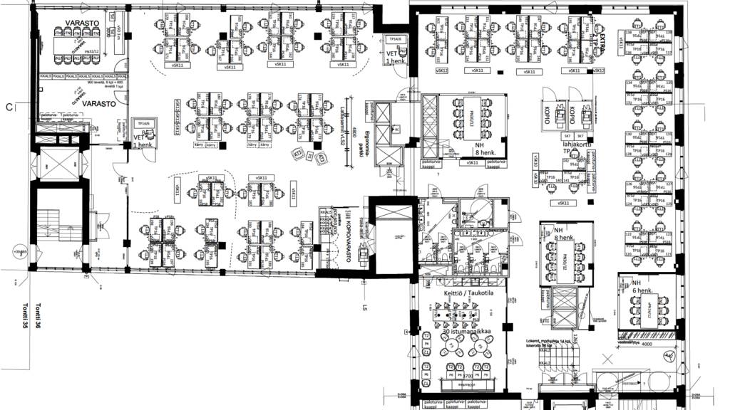
Tallenna873 m²Toimistot
Teollisuushenkistä toimistotilaa Vallilan parhaalla paikalla, hienoin maisemin. Kiinteistön 6. kerroksessa on vuokrattavana 873m2 modernia ja avara...
Kysy hintaa!































