Muut Pirkkala
-
Tallenna
735 m²LiiketilatMuutVapautumassa vuokrattavaksi 1.5.2026 alkaen näyttävä liiketila. Toimitila on katutasossa ja se sisältää pienet sosiaalitilat. Tilassa on nosto-ovi se...
Kysy hintaa!Tallenna -
Tallenna
-
Tallenna135 m²LiiketilatMuut
Moderni monitoimitila vuokrattavissa erinomaisella sijainnilla Valtatie 3:n varrella Pirkkalassa. Rakennuksen näkyvimmältä paikalta toimiva myymälä...
Kysy hintaa! -
Tallenna1 118 m²Muut
Vuokrattavaksi tulossa siisti ja korkea hallikokonaisuus, jossa tällä hetkellä käytössä kolme nosto-ovea (määrä räätälöitävissä tarpeen mukaan). Tilaa...
Kysy hintaa! -
Tallenna
-
-
Tallenna538 m²MuutTuotantotilat
Keskeisellä sijainnilla monikäyttöinen halli- ja toimistokiinteistö omalla tontilla Tarjolla on monipuolinen ja hyvin pidetty teollisuuskiinteistö Pi...
Kysy hintaa! -
Tallenna
Keisarinviitta 18
Pirkkala, Takamaa
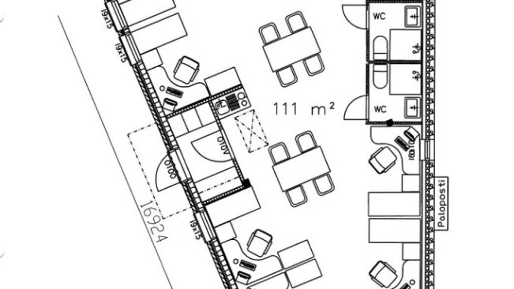
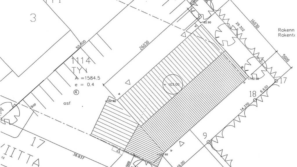
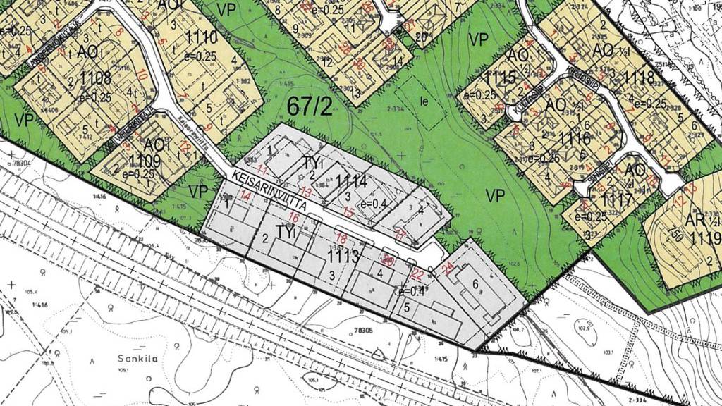
1 129 m²MuutMyydään täyteen vuokrattu toimitilakiinteistö Pirkkalasta kehätien varrelta. Nettotuotto noin 127.000 e/vuosi. Erinomainen sijainti suositulla ...
Kysy hintaa! -
-
Tallenna752 m²Muut
Vuokrattavana heti vapaa tuotanto- ja varastotila, jossa vapaa korkeus on noin 7 metriä ja valaisinkiskojen kohdalla noin 10 metriä. Tilassa on yksi n...
Kysy hintaa! -
Tallenna
-
Tallenna1 075 m²MuutToimistot+1
Vuokrataan toimistotyöskentelyyn ja pientuotantoon soveltuva kiinteistö Pirkkalan Teollisuustieltä! Ensimmäisessä kerroksessa oleva 360 neliön til...
Kysy hintaa! -
Tallenna1 m² - 4 000 m²LiiketilatMuut+3
Suunnitteilla uutta varasto- / tuotanto- / liiketilaa Pirkkalaan. Tilaa on saatavilla noin 2000-4000m², ja se rakennetaan yksilöidysti vuokralaisen...
Kysy hintaa! -
Tallenna1 m² - 320 m²LiiketilatMuut+3Kysy hintaa!
-
OmistajaTallenna6 400 m²MuutToimistot+2
Mahdollisuus rakentaa laadukas teollisuus-, tuotanto- tai logistiikkatila. Tontti sijaitsee suositulla Vähä-Vaitin teollisuuskeskuksen alueella Pir...
Kysy hintaa! -
Tallenna
5 000 m²MuutVuokrataan noin 5000 m2 varastoalue Pirkkalasta. Alue on tasattu ja vaihdettu maa-aines murskeelle. Alue voidaan tarvitaessa aidata, asentaa valot...
Kysy hintaa!Tallenna

























































































































