Vuokrattavana siistiä liiketilaa, joka soveltuu toimistoksi. Vuokrattavana siistiä liiketilaa, joka soveltuu toimistoksi. Tila ei vuokrata ravintol...
Uudet käyttö- ja sopimusehdot
Päivitämme käyttö- ja sopimusehtojamme. Uudet ehdot ovat voimassa 1.5.2025 alkaen. Tutustu ehtoihin
Realium Oy LKV toimitilat
Realium Oy on pääkaupunkiseudulla toimiva toimitilojen välittämiseen erikoistunut yritys. Toimitilojemme valikoima on yksi laajimmista ja kattavimmista markkinoilla. Tavoitteenamme on löytää yrityksellesi uudet toimitilat, jotka soveltuvat tarpeisiinne parhaiten. Autamme yrityksiä löytämään aina kulloinkin tarjolla olevat parhaat tilat helposti ja tehokkaasti. Kerro meille tilantarpeesi, niin kartoitamme teille aina parhaat tarjolla olevat vaihtoehdot. Palvelumme ovat tilojen hakijoille ilmaisia. Tilantarpeessasi ota reippaasti meihin yhteyttä! Realium Oy LKV Tammasaarenkatu 1 00180 Helsinki info@realium.fi Puh. vaihde: 010 3263 466 Tuomo Mäkelä p. 044 050 1158 tuomo.makela@realium.fi tai Joel Keto p.045 317 0330 joel.keto@realium.fi
-
Tallenna155 m²LiiketilatToimistotKysy hintaa!
-
Tallenna97 m²Liiketilat
Kampissa Malminkadulla tarjolla katutason liiketila. Kampissa Malminkadulla tarjolla katutason liiketila. Liiketilassa avotilan lisäksi on kolme hu...
Kysy hintaa! -
Tallenna429 m²Toimistot
Vuokrattavana 4. kerroksen asiallista, tasokasta ja hyväkuntoista toimistotilaa. Vuokrattavana asiallista, tasokasta ja hyväkuntoista toimistotilaa...
Kysy hintaa! -
Tallenna668 m²Toimistot
Vuokrattavana remontoitua, siistiä ja asiallista toimistotilaa. Vuokrattavana remontoitua, siistiä ja asiallista toimistotilaa. Pääasiassa avoimest...
Kysy hintaa! -
Tallenna178 m²Toimistot
Vuokrattavana ylimmän kerroksen valoisaa ja siistiä toimistotilaa. Vuokrattavana ylimmän kerroksen valoisaa ja siistiä toimistotilaa. Tilassa on av...
Kysy hintaa! -
Tallenna200 m²Toimistot
Vuokrattavana 4. kerroksen siistiä avotoimistoa. Vuokrattavana 4. kerroksen siistiä avotoimistoa. Mahdollista yhdistää viereiseen 227 m² kokoiseen...
Kysy hintaa! -
Tallenna324 m²Toimistot
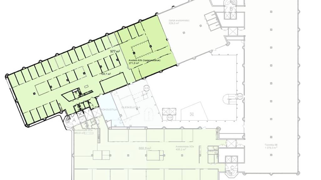
Vuokrattavana opetustilaa, jossa on 4 luokkaa. Vuokrattavana tilavaa toimitila, joka soveltuu hyvin esimerkiksi koulutustilaksi. Tilassa on neljä l...
Kysy hintaa! -
Tallenna256 m²Varastot
Vuokrattavana varastotilaa kellarikerroksesta. Vuokrattavana varastotilaa kellarikerroksesta. Tilassa on wc- tilat ja pukuhuone. Tilaan kulkee tava...
Kysy hintaa! -
Tallenna24 m²Varastot
Vuokrattavana pienvarastotilaa kellarikerroksesta. Vuokrattavana pienvarastotilaa kellarikerroksesta.
Kysy hintaa! -
Tallenna56 m²Varastot
Vuokrattavana pienvarastotilaa kellarikerroksesta. Vuokrattavana pienvarastotilaa kellarikerroksesta. Tilaan kulkee tavarahissi.
Kysy hintaa! -
Tallenna271 m²Toimistot
Vuokrattavana täysin remontoitua, valoisaa ja tehokasta toimistotilaa edustavassa ja näyttävässä kiinteistössä. Vuokrattavana täysin remontoitua, v...
Kysy hintaa! -
Tallenna307 m²Toimistot
Vuokrattavana 3. kerroksen täysin remontoitua ja valoisaa toimistotilaa. Vuokrattavana 3. kerroksen täysin remontoitua ja valoisaa toimistotilaa. T...
Kysy hintaa! -
Tallenna262 m²Toimistot
Vuokrattavana modernia, valoisaa, edustavaa, täysin remontoitua toimistotilaa. Vuokrattavana modernia, valoisaa, edustavaa, täysin remontoitua toim...
Kysy hintaa! -
Tallenna189 m²Toimistot
Vuokrattavana 3. kerroksen täysin remontoitua ja valoisaa toimistotilaa. Vuokrattavana 3. kerroksen täysin remontoitua ja valoisaa toimistotilaa. T...
Kysy hintaa! -
Tallenna77 m²Toimistot
Vuokrattavana toisen kerroksen siistiä toimistotilaa Vuokrattavana toisen kerroksen siistiä toimistotilaa Stella Business Park Novassa.
Kysy hintaa! -
Tallenna757 m²Toimistot
Tarjolla valoisaa, tasokasta, muuntojoustavaa ja modernia toimistotilaa. Tarjolla valoisaa, tasokasta, muuntojoustavaa ja modernia toimistotilaa. K...
Kysy hintaa! -
Tallenna365 m²Liiketilat
Vuokrattavana upeaa ravintola-/liiketilaa. Vuokrattavana upeaa ravintola-/liiketilaa.
Kysy hintaa! -
Tallenna594 m²Toimistot
Vuokrattavana 2. kerroksen avaraa, siistiä toimistotilaa. Vuokrattavana 2. kerroksen avaraa ja siistiä toimistotilaa. Toimistossa on avotoimistotil...
Kysy hintaa! -
Tallenna291 m²Toimistot
Vuokrattavana 5. kerroksen upea ja täysin remontoitu toimistotila. Vuokrattavana 5. kerroksen upea ja täysin remontoitu toimistotila. Tilassa on av...
Kysy hintaa! -
Tallenna92 m²Toimistot
Vuokrattavana remontoitua toimistotilaa. Vuokrattavana remontoitua toimistotilaa. Tila on hyvin muokattavissa ja modernisoidaan tulevan käyttäjän t...
Kysy hintaa! -
Tallenna155 m²Toimistot
Vuokrattavana upea, täysin muuttovalmis avotoimistotila hyvällä sijainnilla Kampissa. Vuokrattavana upea, täysin muuttovalmis toimistotila. Tilassa...
Kysy hintaa! -
Tallenna17 m²Toimistot
Vuokrattavana valmiiksi kalustettu ja sisustettu studio-/ toimistotila. Vuokrattavana valmiiksi kalustettu ja sisustettu studio-/ toimistotila. Til...
Kysy hintaa! -
Tallenna208 m²Toimistot
Vuokrattavana 2. kerroksen upeaa, täysin remontoitua, muuttovalmista toimistotilaa. Vuokrattavana upeaa, täysin remontoitua, muuttovalmista toimist...
Kysy hintaa! -
Tallenna208 m²Toimistot
Vuokrattavana 2. kerroksen upeaa, täysin remontoitua, muuttovalmista toimistotilaa. Vuokrattavana upeaa, täysin remontoitua, muuttovalmista toimist...
Kysy hintaa! -
Tallenna362 m²Toimistot
Vuokrattavana kolmannen kerroksen valoisaa toimistotilaa. Vuokrattavana kolmannen kerroksen valoisaa toimistotilaa. Tilassa on muutamia työhuoneita...
Kysy hintaa!


























































































































