Uudet käyttö- ja sopimusehdot
Päivitämme käyttö- ja sopimusehtojamme. Uudet ehdot ovat voimassa 1.5.2025 alkaen. Tutustu ehtoihin
Siltasaarenkatu 12 Hakaniemi, Helsinki
00530Tyyppi
Toimisto
Koko
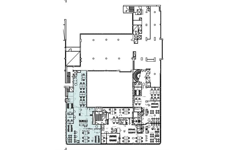
307 m²
Kerros
3
Vuokra
Kysy hintaa!
Perustiedot
Tilan koko
Rakennustiedot
Lisätiedot
Ympäristö
Kartta
Tietoa ilmoittajasta

Realium Oy LKV toimitilat
Näytä kaikki saman ilmoittajan kohteetTammasaarenkatu 1
00180
Helsinki
Realium Oy on pääkaupunkiseudulla toimiva toimitilojen välittämiseen erikoistunut yritys. Toimitilojemme valikoima on yksi laajimmista ja kattavimmista markkinoilla. Tavoitteenamme on löytää yrityksellesi uudet toimitilat, jotka soveltuvat tarpeisiinne parhaiten. Autamme yrityksiä löytämään aina kulloinkin tarjolla olevat parhaat tilat helposti ja tehokkaasti. Kerro meille tilantarpeesi, niin kartoitamme teille aina parhaat tarjolla olevat vaihtoehdot. Palvelumme ovat tilojen hakijoille ilmaisia. Tilantarpeessasi ota reippaasti meihin yhteyttä! Realium Oy LKV Tammasaarenkatu 1 00180 Helsinki info@realium.fi Puh. vaihde: 010 3263 466 Tuomo Mäkelä p. 044 050 1158 tuomo.makela@realium.fi tai Joel Keto p.045 317 0330 joel.keto@realium.fi



























































