Ravintolatilaa Pikonlinnasta. Kyseinen 760m2 liiketila sijaitsee kiinteistön 2.kerroksessa. Tilaan haetaan ravintolatoimijaa. Tila on mahdollista j...
Uudet käyttö- ja sopimusehdot
Päivitämme käyttö- ja sopimusehtojamme. Uudet ehdot ovat voimassa 1.5.2025 alkaen. Tutustu ehtoihin
Bureau Real Estate Finland Oy
Bureau Toimitilat on suomalainen toimitilavälitysyritys. Olemme tehneet tuloksellista välitystyötä jo vuodesta 2010. Toimintamme lähtökohtana ovat asiakaskeskeisyys ja ratkaisulähtöisyys. Haluamme olla nyt ja tulevaisuudessa yritysten luotettavin kumppani toimitilojen hankintaprosessissa. Olemme tilanhakijan apuna koko toimitilojen hankintaprosessin ajan aina tilatarpeen kartoituksesta sopimuksen allekirjoittamiseen asti. Palvelumme on tilanhakijalle ilmainen. Meiltä saat kaikki tarpeisiinne soveltuvat toimitilavaihtoehdot yhdellä yhteydenotolla.
-
Tallenna300 m²LiiketilatKysy hintaa!
-
Tallenna760 m²Liiketilat
Ravintolatilaa Pikonlinnasta. Kyseinen 760m2 liiketila sijaitsee kiinteistön 2.kerroksessa. Tilaan haetaan ravintolatoimijaa. Tila on mahdollista j...
Kysy hintaa! -
Tallenna233 m²Toimistot
Modernia ja tehokasta Business Park -toimistotilaa lentokentän läheltä, Aviapoliksesta. Tämä 233 m² toimisto sijaitsee kiinteistön 5. kerroksessa....
Kysy hintaa! -
Tallenna958 m²Toimistot
Siistiä toimistotilaa Helsingin Ruoholahdessa. Tämä 958m2 toimisto sijaitsee kiinteistön 4. kerroksessa. Tila on pääosin huoneellista ja siihen ku...
Kysy hintaa! -
Tallenna299 m²Toimistot
Toimistotilaa Helsingin Malmilla, Tattarisuon teollisuusalueella. Tämä 299 m² tila sijaitsee kiinteistön 1. kerroksessa. Ensimmäisen kerroksen toi...
Kysy hintaa! -
Tallenna370 m²Liiketilat
Vuokrattavana liiketilaa Helsingin Katajanokalla. Tämä 370m2 liiketila sijaitsee kiinteistön katutasossa. Tila on peruskorjattu ja se sijaitsee osi...
Kysy hintaa! -
Tallenna504 m²Liiketilat
Vuokrattavana liiketilaa Helsingin Katajanokalla. Tämä 262m2 liiketila sijaitsee kiinteistön 1. kerroksessa. Tila on avotilaa ja siihen kuuluu omat...
Kysy hintaa! -
Tallenna262 m²Liiketilat
Vuokrattavana liiketilaa Helsingin Katajanokalla. Tämä 262m2 liiketila sijaitsee kiinteistön 1. kerroksessa. Tila on avotilaa ja siihen kuuluu omat...
Kysy hintaa! -
Tallenna52 m²Liiketilat
Vuokrattavana katutason liiketilaa Helsingin Roihuvuoressa. Tämä 52 m² liiketila sijaitsee asuintalon kivijalassa. Tilassa on isot ikkunat kadulle....
Kysy hintaa! -
Tallenna156 m²Tuotantotilat
Tuotantotilaa Pitäjänmäellä. Kyseinen 156 m² tuotantotila sijaitsee kiinteistön 3. kerroksessa. Tila on ikkunaton, ja sinne on tavarahissiyhteys. K...
Kysy hintaa! -
Tallenna1 332 m²Tuotantotilat
Tuotantoon ja varastoksi soveltuvaa tilaa Orimattilassa. Tämä 1332m2 varasto-/tuotantotila sijaitsee kiinteistön katutasossa. Tila on puolilämmin, ...
Kysy hintaa! -
Tallenna3 216 m²Varastot
Varastotilaa Vantaanportista, läheltä kauppakeskus Jumboa. Kiinteistöstä on vuokrattavana 3216,5 m² kokoinen tilakokonaisuus (pohjakuvassa oranssi...
Kysy hintaa! -
Tallenna275 m²Toimistot
Modernia toimitilaa Helsingin Kruununhaassa. Tämä 275m2 toimistotila sijaitsee kiinteistön katutasossa. Tilaan mahtuu 22-25 työpistettä. Toimistoss...
Kysy hintaa! -
Tallenna250 m²Toimistot
Toimistotilaa Siuntion Pikkalassa. Tämä 250m2 toimistotila sijaitsee kiinteistön 2.kerroksessa. Tilat on remontoitu vuonna 2007. Kaapelitie 68 s...
Kysy hintaa! -
Tallenna402 m²Toimistot
Toimistotilaa Malmilla. Tämä valoisa 402m2 toimistotila sijaitsee kiinteistön 2. kerroksessa. Vapautuminen sopimuksen mukaan. Malmin kauppatie ...
Kysy hintaa! -
Tallenna257 m²Toimistot
Toimistotilaa hyvällä sijainnilla Malmilla. Kyseinen 257m2 toimistotila sijaitsee B-portaan 4. kerroksessa. Toimisto on huoneellinen, ja siihen ku...
Kysy hintaa! -
Tallenna363 m²Toimistot
Industrial henkistä toimistotilaa Vallilasta. Tämä 363m2 valoisa avotilatoimisto sijaitsee kiinteistön 2. kerroksessa. Siihen kuuluu oma keittiö ja...
Kysy hintaa! -
Tallenna1 494 m²Varastot
Toimisto-/varastotilaa industrial-henkisessä kiinteistössä Lauttasaaressa. Tämä 1493,5m2 toimitila sijaitsee kiinteistön B-portaan toisessa kerro...
Kysy hintaa! -
Tallenna1 494 m²Toimistot
Toimisto-/varastotilaa industrial-henkisessä kiinteistössä Lauttasaaressa. Tämä 1493,5m2 toimitila sijaitsee kiinteistön B-portaan toisessa kerro...
Kysy hintaa! -
Tallenna486 m²Toimistot
Edustavaa toimitilaa Keilaniemestä. Tämä 486m2 toimistotila sijaitsee kiinteistön 2. kerroksessa. Toimistossa on huoneita, avotilaa sekä omat keitt...
Kysy hintaa! -
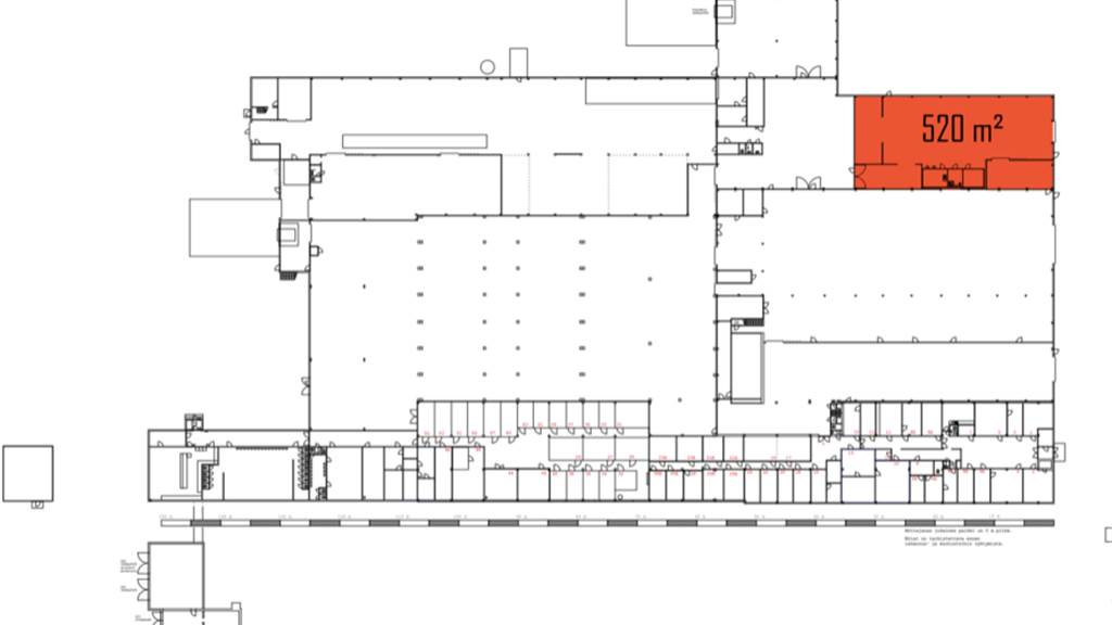
Tallenna520 m²Tuotantotilat
Varastoksi ja tuotantoon soveltuvaa tilaa Orimattilassa. Tämä tila on kooltaan 520m2 ja sijaitsee kiinteistön katutasossa. Hallin korkeus on 5,6 me...
Kysy hintaa! -
Tallenna520 m²Varastot
Varastoksi ja tuotantoon soveltuvaa tilaa Orimattilassa. Tämä tuotantotila on kooltaan 520m2 ja sijaitsee kiinteistön katutasossa. Hallin korkeus o...
Kysy hintaa! -
Tallenna600 m²Liiketilat
Liiketilaa Runsoria Business Parkissa Vaasassa, Airport Parkin alueella. Tämä 600m2 liiketila on ravintolatila suurkeittiötiloineen. Runsorinti...
Kysy hintaa! -
Tallenna270 m²Toimistot
Vuokrattavana toimistotilaa Vaasan Klemettilästä. Kiinteistössä on vapaana 270 m² kokoinen toimistotila. Tila sijaitsee kiinteistön 2. kerroksessa....
Kysy hintaa! -
Tallenna1 410 m²Varastot
Varasto-/tuotantotilaa Koskelo Trade Parkista, Espoon Koskelossa. Tämä tila on kooltaan 1410m2 ja se sijaitsee A-talon katutasossa. Varastossa on k...
Kysy hintaa!














































































































































