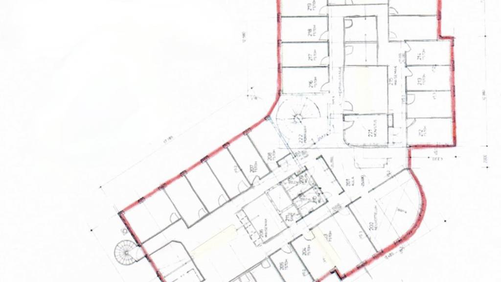
Toimistotilaa Vaasan Powergatessa. Tämä 2990m2 toimistotila sijaitsee kiinteistön 3. kerroksessa. Toimistossa on huoneita, avotilaa sekä omat keitt...
Uudet käyttö- ja sopimusehdot
Päivitämme käyttö- ja sopimusehtojamme. Uudet ehdot ovat voimassa 1.5.2025 alkaen. Tutustu ehtoihin
Bureau Real Estate Finland Oy
Bureau Toimitilat on suomalainen toimitilavälitysyritys. Olemme tehneet tuloksellista välitystyötä jo vuodesta 2010. Toimintamme lähtökohtana ovat asiakaskeskeisyys ja ratkaisulähtöisyys. Haluamme olla nyt ja tulevaisuudessa yritysten luotettavin kumppani toimitilojen hankintaprosessissa. Olemme tilanhakijan apuna koko toimitilojen hankintaprosessin ajan aina tilatarpeen kartoituksesta sopimuksen allekirjoittamiseen asti. Palvelumme on tilanhakijalle ilmainen. Meiltä saat kaikki tarpeisiinne soveltuvat toimitilavaihtoehdot yhdellä yhteydenotolla.
-
Tallenna2 990 m²ToimistotKysy hintaa!
-
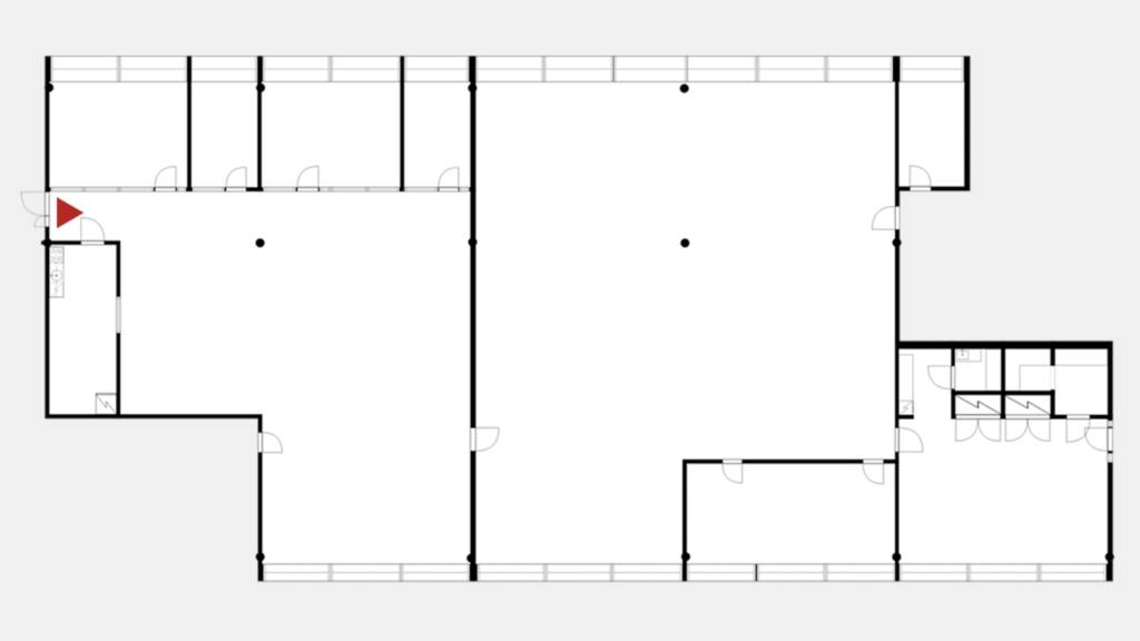
Tallenna66 m²Toimistot
Toimistotilaa Kuopiossa, Kallaveden rannalla. Tämä toimistotila on kooltaan 65,5 m2 ja se sijaitsee kiinteistön 2. kerroksessa. Kallaveden Kont...
Kysy hintaa! -
Tallenna286 m²Toimistot
Vuokrattavissa toimistotilaa Tampereen keskustan arvokiinteistöstä. Tämä 286m2 toimisto sijaitsee kiinteistön 3. kerroksessa. Kauppakatu 6 eli...
Kysy hintaa! -
Tallenna90 m²Toimistot
Siistiä ja edustavaa toimistotilaa Helsingin Pitäjänmäellä. Tämä toimistotila on kooltaan 89,5 m² ja se sijaitsee kiinteistön 5. kerroksessa. ...
Kysy hintaa! -
Tallenna763 m²Toimistot
Siistiä ja edustavaa toimistotilaa Helsingin Pitäjänmäellä. Tämä toimistotila on kooltaan 763m2 ja se sijaitsee kiinteistön 2. kerroksessa. Tila o...
Kysy hintaa! -
Tallenna185 m²Varastot
Varastotilaa Vallilan Akselissa & Elinassa. Tämä 185m2 varastotila sijaitsee kiinteistön kellarikerroksessa. Lemuntie 7 eli Vallilan Akseli & E...
Kysy hintaa! -
Tallenna179 m²Varastot
Varastotilaa Vallilan Akselissa & Elinassa. Tämä 179m2 varastotila sijaitsee kiinteistön kellarikerroksessa. Lemuntie 7 eli Vallilan Akseli & E...
Kysy hintaa! -
Tallenna570 m²Toimistot
Siistiä toimistotilaa Suomenojalla, Länsiväylän välittömässä läheisyydessä. Kyseinen 570m2 toimisto sijaitsee kiinteistön 3. kerroksessa. Toimisto...
Kysy hintaa! -
Tallenna74 m²Liiketilat
Katutason liiketilaa Kotkan keskustassa. Tämä 74 m2 liiketila sijaitsee asuintalon kivijalassa. Tila on avonainen, ja siihen kuuluvat omat keittiö-...
Kysy hintaa! -
Tallenna152 m²Toimistot
Toimistotilaa Lahden keskustan tuntumassa. Tämä siisti 151,5m2 toimistotila sijaitsee kiinteistön 5. kerroksessa. Vuorikatu 35 on toimistokiin...
Kysy hintaa! -
Tallenna340 m²Toimistot
Siistiä toimistotilaa Helsingin Punavuoressa, Mestaritalossa. Hyväkuntoinen 340m2 toimistotila sijaitsee kiinteistön 5. kerroksessa. Toimistossa on...
Kysy hintaa! -
Tallenna145 m²Liiketilat
Vuokrattavissa liiketilaa Rovaniemen Sampokeskuksesta. Kyseinen 145m2 kokoinen liiketila sijaitsee kauppakeskuksen 2. kerroksessa. Liiketila ei sov...
Kysy hintaa! -
Tallenna350 m²Liiketilat
Liiketilaa Kuopiossa, Hermanin kauppapaikalla. Tämä 350m2 liiketila sijaitsee kiinteistön 2.kerroksessa. Leväsentie 2 eli Hermanin kauppapaikka ...
Kysy hintaa! -
Tallenna300 m²Toimistot
Vuokrattavana toimistotilaa Tampereen Tammelassa. Tämä avonainen 300m2 toimistotila sijaitsee kiinteistön 4. kerroksessa. Erkkilänkatu 11, jok...
Kysy hintaa! -
Tallenna245 m²Toimistot
Toimistotilaa Askotalossa Lahdessa. Kyseinen 245m2 ja se sijaitsee kiinteistön 5. kerroksessa. Tila on remontoimaton, ja siihen on mahdollista rake...
Kysy hintaa! -
Tallenna627 m²Toimistot
Toimistotilaa Askotalossa Lahdessa. Kyseinen toimisto on kooltaan 627 m², ja se sijaitsee kiinteistön 2. kerroksessa. Tila on raakapinnoilla. Toimi...
Kysy hintaa! -
Tallenna196 m²Toimistot
Toimistotilaa Askotalossa Lahdessa. Kyseinen toimisto on kooltaan 196m2 ja se sijaitsee kiinteistön 1. kerroksessa. Toimistotila on pääosin avonain...
Kysy hintaa! -
Tallenna155 m²Toimistot
Siistiä toimistotilaa Oulun keskustasta. Tämä 155m2 toimistotila sijaitsee kiinteistön 6. kerroksessa. Toimistossa on avotilaa, oma keittiö ja wc-...
Kysy hintaa! -
Tallenna245 m²Toimistot
Vuokrattavana toimistotilaa Tampereen Tammelassa. Tämä 245m2 toimistotila sijaitsee kiinteistön 2. kerroksessa. Se on hieman normaalia matalampi t...
Kysy hintaa! -
Tallenna1 171 m²Liiketilat
Liiketilaa Salon Retail Parkissa. Vuokrattavana on 1171m2 kokoinen liiketila katutasosta. Tilassa on oma lastauslaituri ja iso pysäköintialue. ...
Kysy hintaa! -
Tallenna379 m²Varastot
Vuokrattavana varastotilaa Riihimäen keskustan tuntumasta Retail Park Neutronista. Tämä siisti 379m2 varasto sijaitsee kiinteistön katutasossa. Si...
Kysy hintaa! -
Tallenna645 m²Toimistot
Monipuolista toimistotilaa Vantaan Aviapoliksessa. Tämä 645m2 toimisto sijaitsee C-kiinteistön 2. kerroksessa. Tila koostuu avotilasta, huoneista...
Kysy hintaa! -
Tallenna628 m²Toimistot
Vuokrattavana toimistotilaa Espoon Niittykummussa. Tämä 628m2 toimisto sijaitsee kiinteistön 3. kerroksessa. Toimistossa on avotilaa, huoneita sekä...
Kysy hintaa! -
Tallenna439 m²Toimistot
Vuokrattavana toimistotilaa Espoon Niittykummussa. Tämä 439m2 toimisto sijaitsee kiinteistön 2. kerroksessa. Toimistossa on avotilaa, huoneita sekä...
Kysy hintaa! -
Tallenna491 m²Toimistot
Vuokrattavana toimistotilaa Espoon Niittykummussa. Tämä 491m2 toimisto sijaitsee kiinteistön 3. kerroksessa. Niittytaival 13 on toimistokiintei...
Kysy hintaa!





















































































































































