Vuokrataan 4. kerroksen toimistohuoneisto. HTC Helsinki on upealla paikalla merellisessä Ruoholahdessa sijaitseva Business Park, joka tarjoaa tasok...
Uudet käyttö- ja sopimusehdot
Päivitämme käyttö- ja sopimusehtojamme. Uudet ehdot ovat voimassa 1.5.2025 alkaen. Tutustu ehtoihin
Juhola Asset Management Oy
Juhola Asset Management Oy on vuodesta 1995 asti toiminut kiinteistöjen varainhoitopalveluyritys. Vahva ja laaja-alainen kokemuksemme kiinteistöalalta antaa meille vankan pohjan toimitilavuokrauksen markkinoilla. Autamme ja neuvomme asiakkaitamme tilatarpeen kartoittamisesta tilan valmistumiseen saakka. Kauttamme löydätte parhaiten tarpeitanne vastaavat toimitilat. Tarjoamme kiinteistöjä omistaville yrityksille ja yhteisöille mahdollisuuden antaa laaja vastuu kiinteistösalkustaan asiantunteviin käsiin ja vapauttaa resursseja yrityksen pääliikeidean toteuttamiseen. Palveluvalikoimamme kattaa omistajahallinnon ja rahastohallinnon, sijoituskiinteistöjen isännöinnin, taloushallinnon, rakennuttamistoiminnan, kiinteistöjen kehittämisen, kiinteistöarvioinnin sekä kiinteistöjen vuokraus-, osto- ja myyntitoiminnan.
-
Tallenna285 m²ToimistotKysy hintaa!
-
Tallenna1 620 m²Toimistot
3. kerroksen avara ja valoisa toimistohuoneisto Keilasatamassa Keilasatama on ikoninen maamerkki Espoon Keilaniemessä. Tyylikäs ja palveluiltaan la...
Kysy hintaa! -
Tallenna264 m²Toimistot
Valoisa 7. kerroksen toimistohuoneisto. Näkymät Eteläiselle Rautatiekadulle Osoitteessa Fredrikinkatu 48 sijaitseva Kampintorni on 12 kerroksinen l...
Kysy hintaa! -
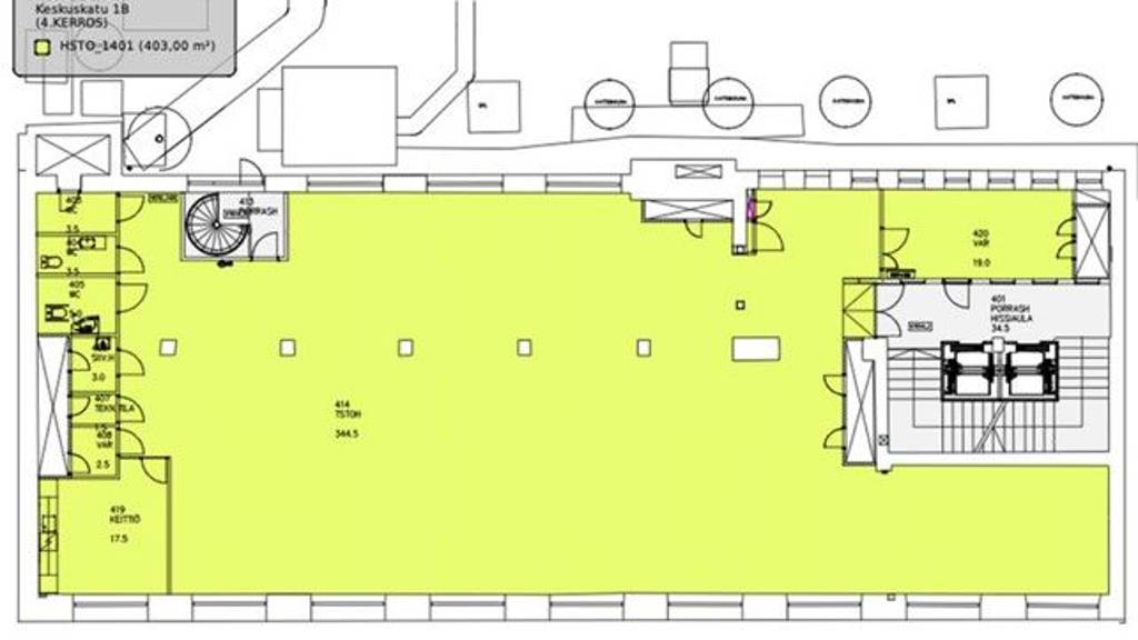
Tallenna403 m²Toimistot
4. kerroksen upea toimistokokonaisuus arvotalossa. Saneerattavissa yksilöllisesti tarpeiden mukaan. Helsingin Keskuskatu 1B on Eliel Saarisen vuonn...
Kysy hintaa! -
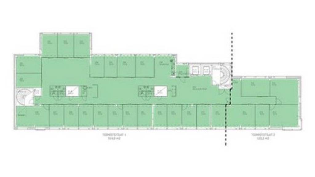
Tallenna412 m²Toimistot
3. kerroksen upea toimistokokonaisuus arvotalossa. Saneerattavissa yksilöllisesti tarpeiden mukaan. Helsingin Keskuskatu 1B on Eliel Saarisen vuonn...
Kysy hintaa! -
Tallenna376 m²Toimistot
9. kerroksen upea ja valoisa toimistohuoneisto, joka on myös jaettavissa kahdeksi erilliseksi tilaksi. Keilaranta 1 on platinatason kiinteistö Keil...
Kysy hintaa! -
Tallenna180 m²Toimistot
2. kerroksen valoisa toimistohuoneisto Keilaranta 1 on platinatason kiinteistö Keilaniemen metroaseman yläpuolella. Kestävän kehityksen periaatteel...
Kysy hintaa! -
Tallenna188 m²Toimistot
2. kerroksen valoisa toimistohuoneisto Keilaranta 1 on platinatason kiinteistö Keilaniemen metroaseman yläpuolella. Kestävän kehityksen periaatteel...
Kysy hintaa! -
Tallenna188 m²Toimistot
9. kerroksen upealla näköalalla varustettu valoisa toimistohuoneisto Keilaranta 1 on platinatason kiinteistö Keilaniemen metroaseman yläpuolella. K...
Kysy hintaa! -
Tallenna188 m²Toimistot
9. kerroksen upealla näköalalla varustettu valoisa toimistohuoneisto Keilaranta 1 on platinatason kiinteistö Keilaniemen metroaseman yläpuolella. K...
Kysy hintaa! -
Tallenna368 m²Toimistot
2. kerroksen valoisa toimistohuoneisto, joka on myös jaettavissa kahdeksi erilliseksi tilaksi. Keilaranta 1 on platinatason kiinteistö Keilaniemen ...
Kysy hintaa! -
Tallenna550 m²Toimistot
4. kerroksen valoisa ja avara toimistohuoneisto, johon sisäänkäynti B-portaasta. Keilaranta 1 on platinatason kiinteistö Keilaniemen metroaseman yl...
Kysy hintaa! -
Tallenna
Fabianinkatu 29
Helsinki, Helsinki Keskusta - Etu-Töölö794 m²ToimistotKesällä 2025 vapautuva 3. kerroksen toimistohuoneisto ydinkeskustassa Esplanadin puiston tuntumassa. Kaupat ja palvelut vieressä, hyvät liikenneyhteyd...
Kysy hintaa! -
Tallenna
Fabianinkatu 29
Helsinki, Helsinki Keskusta - Etu-Töölö794 m²ToimistotKesällä 2025 vapautuva 2. kerroksen toimistohuoneisto ydinkeskustassa Esplanadin puiston tuntumassa. Kaupat ja palvelut vieressä, hyvät liikenneyhteyd...
Kysy hintaa! -
Tallenna210 m²Toimistot
2. kerroksen valoisa toimistohuoneisto vuokrattavana. PR25:n kiinteistöstä Pohjoiselta Rautatiekadulta löytyy viihtyisää toimistotilaa Kampin kupee...
Kysy hintaa! -
Tallenna638 m²Toimistot
3. kerroksen avara ja helposti muokattavissa oleva toimistohuoneisto. PR25:n kiinteistöstä Pohjoiselta Rautatiekadulta löytyy viihtyisää toimistoti...
Kysy hintaa! -
Tallenna616 m²Toimistot
2. kerroksen avara ja helposti muokattavissa oleva toimistohuoneisto. PR25:n kiinteistöstä Pohjoiselta Rautatiekadulta löytyy viihtyisää toimistoti...
Kysy hintaa! -
Tallenna103 m²Toimistot
Nyt betonipinnoilla oleva tila, joka rakennetaan vuokralaisen toiveiden mukaan. Muotoilun ja sisustamisen rouhea keskittymä Vallilan Akseli & Elina...
Kysy hintaa! -
Tallenna211 m²Toimistot
Nyt betonipinnoilla oleva tila, joka rakennetaan vuokralaisen toiveiden mukaan. Muotoilun ja sisustamisen rouhea keskittymä Vallilan Akseli & Elina...
Kysy hintaa! -
Tallenna133 m²Toimistot
Nyt betonipinnoilla oleva tila, joka rakennetaan vuokralaisen toiveiden mukaan. Muotoilun ja sisustamisen rouhea keskittymä Vallilan Akseli & Elina...
Kysy hintaa! -
Tallenna248 m²Toimistot
Nyt betonipinnoilla oleva tila, joka rakennetaan vuokralaisen toiveiden mukaan. Muotoilun ja sisustamisen rouhea keskittymä Vallilan Akseli & Elina...
Kysy hintaa! -
Tallenna895 m²Toimistot
Myllypuron kampuksen ja metroaseman vierestä katutason koulutustila. Toimitila koostuu yhdeksästä luokkahuoneesta, tauko-, varasto- ja toimistohuoneis...
Kysy hintaa! -
Tallenna1 545 m²Toimistot
Vuokralaisen tarpeiden mukaan moderniksi saneerattavissa avara toimistotila kiinteistön 4. kerroksessa. Tila kattaa koko kerroksen ja voidaan jakaa my...
Kysy hintaa! -
Tallenna290 m²Toimistot
Vuokrattavana monikäyttöinen, toisen kerroksen toimistotila. Kerroksen tilat yhdistettävissä toisiinsa, yht. 1090,5m² kokonaisuudeksi ja tila on jaett...
Kysy hintaa! -
Tallenna146 m²Liiketilat
Valimotieltä vuokrattavissa ensimmäisen kerroksen muuntojoustava liiketila, josta löytyy muun muassa avotilaa, työhuoneita sekä wc-tilat. Tulevalla kä...
Kysy hintaa!















































































































































































































































































































































