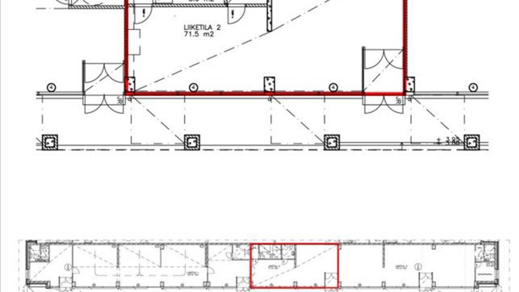
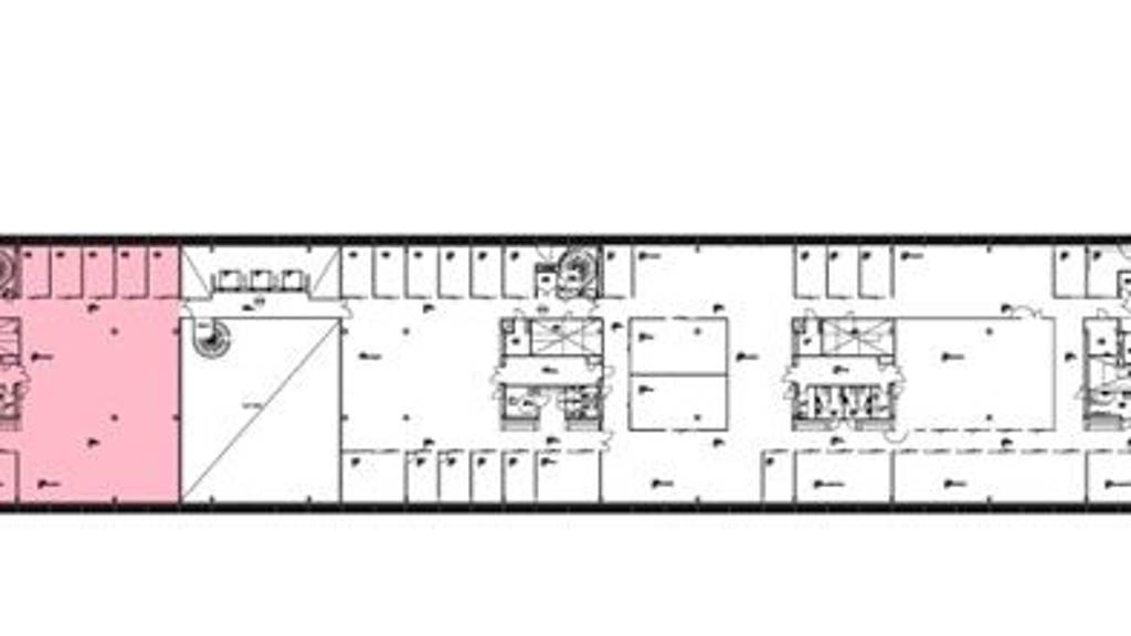
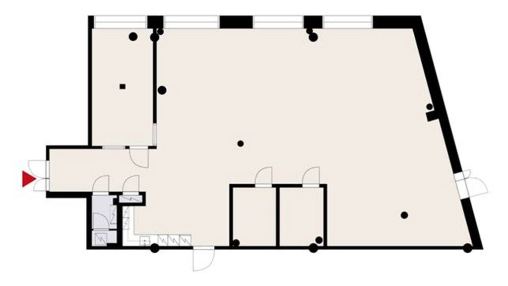
Katutason liiketila Jätkäsaaressa hyvällä sijainnilla, Tyynenmerenkadun alkupäässä. Kiinteistö Oy Tyynenmerenkatu 3 sijaitsee Jätkäsaaren trendikkä...
Uudet käyttö- ja sopimusehdot
Päivitämme käyttö- ja sopimusehtojamme. Uudet ehdot ovat voimassa 1.5.2025 alkaen. Tutustu ehtoihin
Juhola Asset Management Oy
Juhola Asset Management Oy on vuodesta 1995 asti toiminut kiinteistöjen varainhoitopalveluyritys. Vahva ja laaja-alainen kokemuksemme kiinteistöalalta antaa meille vankan pohjan toimitilavuokrauksen markkinoilla. Autamme ja neuvomme asiakkaitamme tilatarpeen kartoittamisesta tilan valmistumiseen saakka. Kauttamme löydätte parhaiten tarpeitanne vastaavat toimitilat. Tarjoamme kiinteistöjä omistaville yrityksille ja yhteisöille mahdollisuuden antaa laaja vastuu kiinteistösalkustaan asiantunteviin käsiin ja vapauttaa resursseja yrityksen pääliikeidean toteuttamiseen. Palveluvalikoimamme kattaa omistajahallinnon ja rahastohallinnon, sijoituskiinteistöjen isännöinnin, taloushallinnon, rakennuttamistoiminnan, kiinteistöjen kehittämisen, kiinteistöarvioinnin sekä kiinteistöjen vuokraus-, osto- ja myyntitoiminnan.
-
Tallenna72 m²LiiketilatKysy hintaa!
-
Tallenna312 m²Toimistot
Vantaan Tammistossa hyvien liikenneyhteyksien äärellä 2. kerroksen avotoimistotila, joka voidaan muuntaa myös liiketilaksi. Ikkunoista on näkymät liik...
Kysy hintaa! -
Tallenna833 m²Toimistot
Vantaan Tammistossa hyvien liikenneyhteyksien äärellä 2. kerroksen avotoimistotila, joka voidaan muuntaa myös liiketilaksi. Ikkunoista on näkymät liik...
Kysy hintaa! -
Tallenna27 m²Liiketilat
Katutason liiketila, joka vapautuu 1.10.2025 Liisankatu 14 koostui alun perin korttelin sisäosassa sijaitsevasta, Arkkitehtuuritoimisto Frosterus &...
Kysy hintaa! -
Tallenna38 m²Toimistot
2. kerroksen toimistotila. Kohteessa on myös muita eri kokoisia vuokrattavia tiloja, neuvottelutiloja sekä saunatilat ja takkahuone. Malminkaari 23...
Kysy hintaa! -
Tallenna152 m²Toimistot
2. kerroksen täysin uutta tilaa, joka toteutetaan uuden vuokralaisen toiveiden mukaisesti Vallila Corner on upeasti uudistettu, valoisa ja viihtyis...
Kysy hintaa! -
Tallenna371 m²Toimistot
2. kerroksen valoisa toimistohuoneisto. Keilasatama on ikoninen maamerkki Espoon Keilaniemessä. Tyylikäs ja palveluiltaan laadukas toimistotalo sij...
Kysy hintaa! -
Tallenna157 m²Toimistot
1. kerroksen toimistohuoneisto. Keilasatama on ikoninen maamerkki Espoon Keilaniemessä. Tyylikäs ja palveluiltaan laadukas toimistotalo sijaitsee K...
Kysy hintaa! -
Tallenna693 m²Toimistot
7. kerroksen näköalatoimisto Keilasatamassa Keilasatama on ikoninen maamerkki Espoon Keilaniemessä. Tyylikäs ja palveluiltaan laadukas toimistotalo...
Kysy hintaa! -
Tallenna1 331 m²Toimistot
4. kerroksen suuri, avara ja valoisa toimistohuoneisto. Keilasatama on ikoninen maamerkki Espoon Keilaniemessä. Tyylikäs ja palveluiltaan laadukas ...
Kysy hintaa! -
Tallenna
Miestentie 5-7
Espoo, Otaniemi902 m²ToimistotTästä monitilatyöympäristöstä avautuu ikkunat kolmeen suuntaan. Koko kerros on n. 902 m2, ikkunat neljään suuntaan. Swing House sijaitsee yhdessä p...
Kysy hintaa! -
Tallenna
Miestentie 5-7
Espoo, Otaniemi238 m²ToimistotTästä 238m2/664m2/902m2 monitilatyöympäristöstä avautuu ikkunat kolmeen suuntaan. Koko kerros on n. 902 m2, ikkunat neljään suuntaan. Swing House s...
Kysy hintaa! -
Tallenna949 m²Toimistot
5. kerroksen monitilatoimisto, joka on mahdollista laajentaa koko kerroksen (949m2) tilaksi. Talo sijaitsee erinomaisella paikalla Helsingin Sörnäisis...
Kysy hintaa! -
Tallenna1 055 m²Toimistot
Valoisa ja selkeäpohjainen monitilatoimisto, jota voidaan myös laajentaa 208m2 samassa tasossa. Muuntojoustava tila. Ikkunarivistö kiertää tilaa antae...
Kysy hintaa! -
Tallenna168 m²Toimistot
Valoisa katutason avotoimistotila. Neuvottelutilat toimitilan vieressä. Rantatie Business Park on moderni, linjakas ja tyylikäs talo Kalasataman pa...
Kysy hintaa! -
Tallenna248 m²Toimistot
Valoisa ja neliöitään isomman oloinen moderni toimistotila, jossa on avotilan lisäksi useita työhuoneita ja integroitu keittiö. Suuret lattiasta katto...
Kysy hintaa! -
Tallenna208 m²Toimistot
Valoisa ja neliöitään isomman oloinen uudehko toimistotila, jossa on muutama huone, neuvottelutila ja integroitu keittiö. Suuret lattiasta kattoon ole...
Kysy hintaa! -
Tallenna179 m²Toimistot
Moderni ja avara avotilatoimisto, johon mahdollista rakentaa myös huoneita. Tilaan asennetaan integroitu keittiö seuraavalle asiakkaalle. Suuret latti...
Kysy hintaa! -
Tallenna89 m²Liiketilat
Ravintolan keittiötila, soveltuu lounasravintolaksi. Keittiötilan yhteydessä vuokrataan ravintolasalitila, johon on mahdollista toteuttaa 80-130 asiak...
Kysy hintaa! -
Tallenna610 m²Toimistot
Vuokrattavissa koulutustila Domus Gaudiumin toisesta kerroksesta. Tila taipuu myös moderniksi toimistotilaksi. Vuonna 2008 valmistunut Domus Gaudiu...
Kysy hintaa! -
Tallenna718 m²Toimistot
Siisti toimistotila usealla pienemmällä toimistohuoneella vuokrattavissa Kaivotalon 7. kerroksessa. Arkkitehti Pauli Salomaan suunnittelema Kaivota...
Kysy hintaa! -
Tallenna48 m²Toimistot
Tiilitalon pientoimisto jossa keittiö yhteiskäytössä. Toimisto koostuu kahdesta huoneesta, 31m2 ja 9,5m2. 7m2 on jyvitettyä yhteistilaa Oopperatalo...
Kysy hintaa! -
Tallenna78 m²Liiketilat
Huoneisto koostuu 1. krs 34m2 liiketilasta ja sisäporrasyhteyden päässä olevasta n. 46m2 varastosta. Tila ei sovellu ravintolakäyttöön. Arkkitehti ...
Kysy hintaa! -
Tallenna224 m²Toimistot
Tämä poikkeuksellisen valoisa 4. kerroksen toimistohuoneisto sijaitsee Kuparitalon “terävässä kärjessä” josta avautuu upeat näköalat joka suuntaan. ...
Kysy hintaa! -
Tallenna346 m²Liiketilat
Liikehuoneisto osoitteessa Pohjoisesplanadi 35. Huoneisto avautuu kauppakäytävän puolelle, joten sillä ei ole suoraa näkyvyyttä Esplanadin suuntaan. S...
Kysy hintaa!

























































































































































































































































































