Uudet käyttö- ja sopimusehdot
Päivitämme käyttö- ja sopimusehtojamme. Uudet ehdot ovat voimassa 1.5.2025 alkaen. Tutustu ehtoihin
Jasperintie 334 Linnakorpi, Pirkkala
33960Tyyppi
Tuotantotila
Koko
2 143 m²
Vuokra
Kysy hintaa!
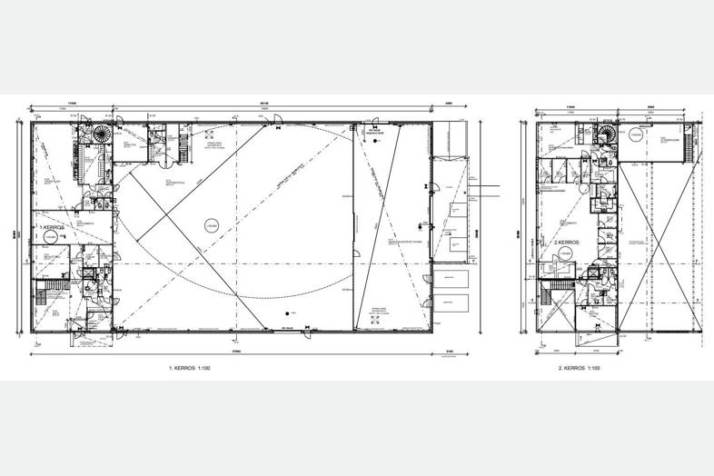
Etsitkö kasvua tukevaa toimitilaa erinomaisella sijainnilla? Kesällä 2026 vapautumassa vuokrattavaksi selkeää ja korkeaa hallitilaa näkyvällä paikalla, suoraan ohitustien varrella. Kiinteistölle on helppo saavutettavuus joka puolelta kaupunkia.
Vuokrattavan toimitilan kokonaispinta-ala on 2143 m², josta noin 1450 m² on korkeaa ja avaraa hallitilaa. Toimistoa löytyy kahdessa kerroksessa yhteensä noin 682 m² – tilavat huoneet isoilla ikkunoilla tarjoavat valoisan ja viihtyisän työympäristön.
Hallissa on kaksi nosto-ovea sekä lastauslaituri, jossa kaksi kuormaussiltaa helpottavat tavaraliikennettä. Tilat on varustettu pukuhuoneilla sekä hallin että toimiston puolella – lisäksi käytössä on oma sauna ja edustustila.
Kohteella on hyvin parkkipaikkoja saatavilla.
Vuokraan lisätään alv + kulut.
Ota yhteyttä ja kysy lisää!
www.blanctoimitilat.fi
Masa Hakala
masa.hakala@blanckiinteisto.com
+358 40 964 2482
Perustiedot
Tyyppi:
Tuotantotila
Sopimustyyppi:
Vuokrataan
Osoite:
Jasperintie 334, 33960 Pirkkala
Kaupunginosa:
Linnakorpi
Kartta
Tietoa ilmoittajasta
Blanc Toimitilat
Näytä kaikki saman ilmoittajan kohteetHenry Fordin katu 5
00150
Helsinki






















