Uudet käyttö- ja sopimusehdot
Päivitämme käyttö- ja sopimusehtojamme. Uudet ehdot ovat voimassa 1.5.2025 alkaen. Tutustu ehtoihin
<< Takaisin kohdesivulle

Luontokeskus, tutkimuskeskus ja majoitusrakennus

Luontokeskus asiakastila

Toimistorakennus julkisivu

Luontokeskus ja tutkimuskeskus

Luontokeskus

Luontokeskus

Luontokeskus

Luontokeskus

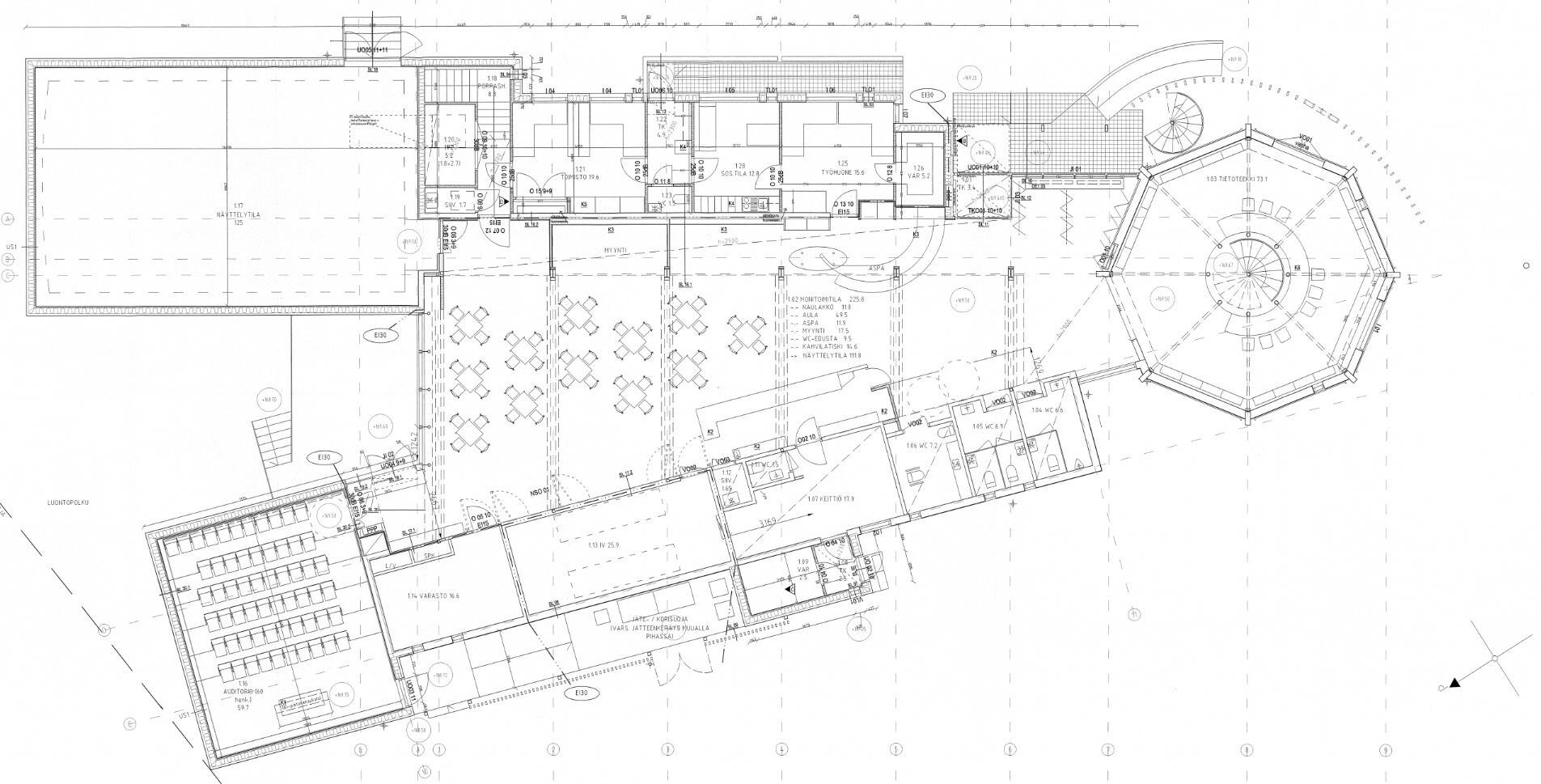
Luontokeskus pohjakuva

Toimisto

Toimisto

Toimisto

Toimisto

Toimisto

Toimisto

Tutkimuskeskus

Tutkimuskeskus

Majoitusrakennus

Majoitusrakennus

Majoitusrakennus autotalli

Majoitusrakennus

Majoitusrakennus

Majoitusrakennus

Majoitusrakennus pohjakuva
<< Takaisin kohdesivulle























