Uudet käyttö- ja sopimusehdot
Päivitämme käyttö- ja sopimusehtojamme. Uudet ehdot ovat voimassa 1.5.2025 alkaen. Tutustu ehtoihin
Lemuntie 7 Vallila, Helsinki
00510Tyyppi
Toimisto
Koko
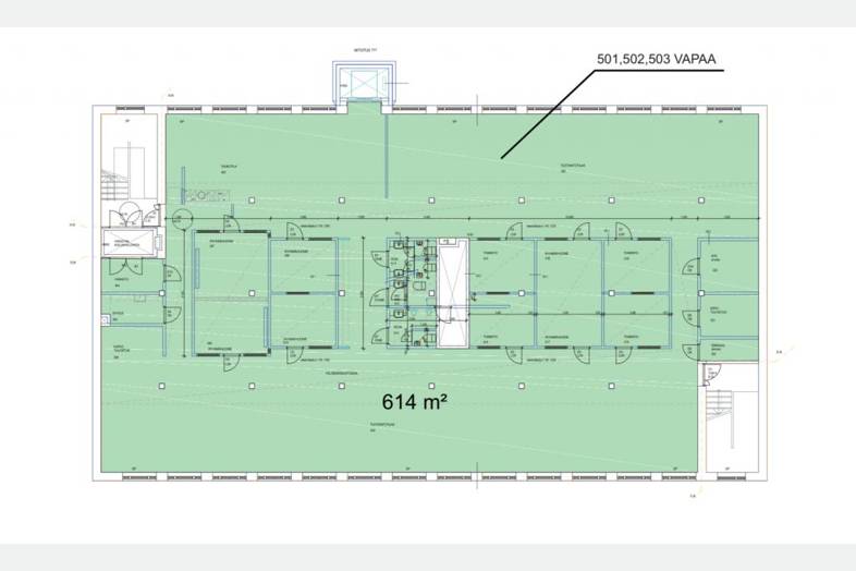
614 m²
Vuokra
Kysy hintaa!
Vuokrataan valoisa viidennen kerroksen 614m2 toimistotila erinomaisella sijainnilla Vallilassa. Vallilan Akseli & Elina on tunnettu etenkin designin, teollisen muotoilun sekä muiden luovien alojen yrityksistä. Kiinteistön tiloissa yhdistyvät kiehtovalla tavalla mennyt, nykyisyys ja tuleva.
Rakennukset ovat toimineet aiemmin radioverstaana sekä linja-autojen koritehtaana.Tilat ovat saneerattuja ja siistejä. Kiinteistössä on lisäksi suosittu Antell lounasravintola. Kiinteistöön on helppo tulla myös pyörällä tai omalla autolla. Lähin parkkihalli on Elimäenkadun Aimo Park, johon on suora hissisisäänkäynti Nokiantieltä Akselin & Elinan vierestä.
Kysy lisää, Jouko Raitanen puh. 0504695444
Perustiedot
Tyyppi:
Toimisto
Sopimustyyppi:
Vuokrataan
Osoite:
Lemuntie 7, 00510 Helsinki
Kaupunginosa:
Vallila
Linkit
Kartta
Tietoa ilmoittajasta
Toimitilavälitys RHG Oy
Näytä kaikki saman ilmoittajan kohteetHämeenkatu 2 B20
20500
Turku
















