Vuokrattavana muuttovalmis ja toimiva liiketila esimerkiksi terveysalan yritykselle Technopolis Peltolassa, 1. kerroksessa, aivan aulapalvelun vieress...
Vapaat toimitilat
Haussa vapaa toimisto tai toimistotila? Tällä sivulla on listattuna kaikki vapaat vuokrattavat ja myytävät toimistot ja toimistotilat. Jos etsit toimistotilaa tai toimistoa tietyltä alueelta, rajaa hakua alta sijaintien mukaan. Tutustu toimistotilojen tarjontaan ja löydä tarpeisiisi sopiva toimisto tai business park -tila!
-
KohdenostoOmistajaTallenna178 m²ToimistotKysy hintaa!
-
KohdenostoTallenna285 m²Toimistot
Toimistotilaa Helsinki-Vantaan välittömässä läheisyydessä • Aviabulevardi I
Kysy hintaa! -
KohdenostoTallenna128 m²LiiketilatToimistot
Toimistotilaa Business Park Safiirissa erinomaisella sijainnilla Espoon Matinkylässä kauppakeskus Iso Omenan kupeesta.
Kysy hintaa! -
Tallenna
Kisällintie 3
Vantaa, Piispankylä
1 880 m²LiiketilatVarastotVuokrataan Vantaan Piispankylästä maantason n. 530 m² modernia myymälä-/näyttely-/toimistotilaa ja n. 1350 m² varastotilaa sosiaalitiloineen. Varasto...
Kysy hintaa! -
Tallenna485 m²ToimistotTuotantotilat
Vuokrattavissa tuotanto-/toimistoilaa Koivuhaasta Hyväkuntoista toimitilaa, joka soveltuu toimistokäyttöön sekä myös kevyeen tuotantoon. Toimitilaa...
Kysy hintaa!OmistajaTallenna490 m²ToimistotTuotanto-/toimistotila 490 m², Koivuhaankuja 1 Heti vapaana hyväkuntoista toimitilaa, joka soveltuu toimistokäyttöön sekä myös kevyeen tuotantoon. To...
Kysy hintaa!Tallenna490 m²TuotantotilatVuokrattavana hyväkuntoista toimisto-/kevyttuotantotilaa Vantaan Koivuhaassa. Tämä 490 m² tila sijaitsee kiinteistön 1. kerroksessa. Tila on pääos...
Kysy hintaa!Tallenna
490 m²ToimistotTuotantotilat+1Vapautumassa loppuvuodesta 2025 hyväkuntoista toimisto/kevyt tuotantotilaa. Toimitilaan on kulkuyhteys lastauslaiturilta. Tila pääosin avotilaa, tilas...
Kysy hintaa!Tallenna490 m²ToimistotVarastotHyväkuntoinen toimitila kevyeen tuotantoon tai toimistoksi, loistavalla sijainnilla Koivuhaassa. Hyväkuntoinen toimisto-/kevyttuotantotila loistopa...
Kysy hintaa!Tallenna
490 m²ToimistotTuotantotilatVuokrattavana hyväkuntoista toimisto-/kevyt tuotantotilaa. Vuokrattavana hyväkuntoista toimisto-/kevyt tuotantotilaa. Toimitilaan on kulkuyhteys l...
Kysy hintaa!Tallenna1 800 m²ToimistotTuotantotilatViehättävän yksilöllistä tilaa Koivuhaasta
Kysy hintaa!Tallenna -
Tallenna
-
-
Tallenna490 m²ToimistotTuotantotilatKysy hintaa!
-
Tallenna200 m² - 5 000 m²ToimistotVarastot
Lentokentän vierestä tilaa loistaa
Kysy hintaa!OmistajaTallenna
228 m²ToimistotVuokrattavana siisti 2. kerroksen toimistotila lähellä Helsinki-Vantaan lentokenttää. Tilassa on muutama huone, avotilaa sekä omat wc- ja keittiötilat...
Kysy hintaa!TallennaTallennaTallennaTallenna -
-
Tallenna450 m² - 1 500 m²ToimistotTuotantotilat+1
Tilaa mahtavien kulkuyhteyksien päästä
Kysy hintaa!Tallenna -
Tallenna
-
-
Tallenna51 m²Varastot
Kompakti, uutta vastaava halliosake erinomaisella sijainnilla Koivuhaassa Lähellä Tuusulantietä ja Kesä III:a. Tila 53,7m2: Leveys 4,613m, pituus 8,...
15,49 €/m2/kk -
Tallenna
-
Tallenna404 m²ToimistotTuotantotilat+1
Myydään tuotanto- / varasto- / toimistotila 404 m2
249 000 € -
Tallenna50 m² - 1 800 m²ToimistotTuotantotilat+1
Pääkonttoritason tilaa kaikilla mausteilla Koivuvaarasta
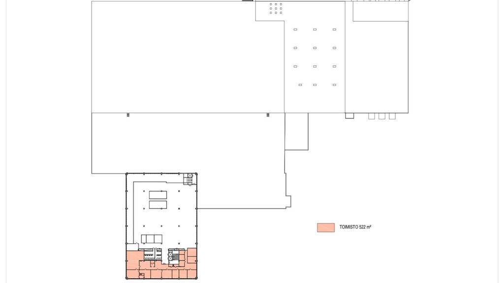
Kysy hintaa!Tallenna522 m²ToimistotTarjolla toimistotilaa Ärrävaaran Business Park-tason palveluilla. Vuokraan kuuluu aulapalvelu sekä uima-altaan käyttöoikeus. Kohteessa lounasravintol...
Kysy hintaa!Tallenna -
Tallenna
Kukonkalliontie 3-5
Vantaa, Koivuhaka13 680 m²MuutMyydään KT-tontti. Tontin koko n. 1,37 hehtaaria ja rakennusoikeus e=0,65 eli n. 8.900 kem².
Kysy hintaa! -
Tallenna321 m² - 5 178 m²MuutTuotantotilat+1Kysy hintaa!
-
Tallenna3 000 m²Varastot
Toimiva ja monipuolinen n. 3000 m² varastotila Vantaalla Kehä III:n tuntumassa Varasto- ja toimistokiinteistö Vantaan Vaaralassa. Tilassa toiminut ...
Kysy hintaa!Tallenna
3 100 m²TuotantotilatVarastotMonipuolista varasto-tuotantotilaa jossa lastauslaituri, ajoramppi sekä useita sisään ajettavia nosto-ovia. Varaston korkeus 5.5m. Tilava aidattu piha...
Kysy hintaa!Tallenna3 100 m²VarastotVantaan Vaaralassa sijaitsevassa varasto- ja tuotantokiinteistössä monipuolinen ja selkeä 3100m2 varastotila, jossa on lastauslaituri, ajoramppi varas...
Kysy hintaa!Tallenna3 100 m²VarastotLastauslaiturilla ja kolmella nosto-ovella varustettua varastotilaa. Tilan korkeus n. 4,5 m. Kaksikerroksinen varastokiinteistö on rakennettu vuonn...
Kysy hintaa!Tallenna3 100 m²VarastotVuokrataan varastotilaa Vantaan Vaaralasta. Lastauslaiturilla ja kolmella nosto-ovella varustettu varastotila, jossa tilan korkeus noin 4,5 metriä.<br...
Kysy hintaa!Tallenna3 300 m²VarastotVarastotila erinomaisella sijainnilla Vantaan Vaaralassa. Varastotilassa on lastauslaituri sekä kolme nosto-ovea. Tilan korkeus on noin 4,5 metriä. ...
Kysy hintaa!Tallenna3 512 m²VarastotVuokrattavana 3 512 m² yhdellä lastauslaiturilla ja neljällä nosto-ovella varustettua varastotilaa, josta 194 m² on toimistokäyttöön soveltuvaa tilaa....
Kysy hintaa!Tallenna -
Tallenna620 m²Varastot
Varastotilaa yhdellä lastaussillalla ja kolmella nosto-ovella Vaaralan teollisuusalueella Kuussillassa sijaitseva pienteollisuuskiinteistö. Kii...
Kysy hintaa!TallennaOmistajaTallenna623 m²VarastotVarastotilaa yhdellä lastaussillalla ja kolmella nosto-ovella.Pienteollisuuskiinteistö Vantaan Vaaralassa Kehä III:n sekä Lahdenväylän ja Porvoon moot...
Kysy hintaa!Tallenna
623 m²TuotantotilatVarastotVuokrataan maantason varasto-tuotantotilaa yhdellä lastaussillalla ja kolmella nosto-ovella. Varaston vapaa korkeus 4m. SOITA ja SOVI ESITTELY! puh: 0...
Kysy hintaa!Tallenna623 m²VarastotVuokrattavana moderni teollisuus- ja varastokiinteistö Vantaalla, logistisesti erinomaisella sijainnilla Kehä III:n varrella. Kiinteistöltä on suora y...
Kysy hintaa!Tallenna623 m²ToimistotTuotantotilat+1Toimisto-/tuotanto-/varastotilaa Vantaan Vaaralan teollisuusalueelta hyvien kulkuyhteyksien varrelta. Toimisto-/tuotanto-/varastotilaa Vantaan Vaar...
Kysy hintaa!Tallenna623 m²VarastotVarastotilaa Vantaalla, Vaaralan teollisuusalueella. Vuokrattavana 623 m² kokoinen varastotila, jossa on lastaussilta ja kolme nosto-ovea. Kuuss...
Kysy hintaa!Tallenna
623 m²VarastotVuokrattavana varastotilaa. Vuokrattavana varasto/tuotantotilaa, yhdellä lastaussillalla ja kolmella nosto-ovella.
Kysy hintaa!Tallenna
623 m²ToimistotVarastotVuokrtaan varastotilaa yhdellä lastaussillalla ja kolmella nosto-ovella. Vaaralan teollisuusalueella Kuussillassa sijaitseva pienteollisuuskiinteis...
Kysy hintaa!TallennaTallenna -
Tallenna116 m²Liiketilat
Moneen käyttöön soveltuva 116,5 m² liiketila Kivistön aseman vieressä. Siisti liiketila jossa isot näyteikkunat jotka tuovat valoa ja avaruutta. ...
Kysy hintaa! -
Tallenna400 m² - 1 950 m²Varastot
Vuokrataan monikäyttöisiä tuotanto-, varasto-, ja teollisuustiloja. Betonirunkoinen tuotanto- ja varastokiinteistö on rakennettu vuonna 1969. Kiint...
Kysy hintaa!Tallenna1 813 m²TuotantotilatVarastotKorkeaa varasto-/tuotantotilaa 1813m2, lastaustasku, myös maantasosta sisäänajo. Heti vapaa! Kivistön alueen takana, lähellä Hämeenlinnanväylää.
Kysy hintaa!Tallenna1 950 m²TuotantotilatVarastotVuokrataan 1950 m2 varasto- tai tuotantotiloja hyvällä sijainnilla Vantaan Keimolassa. Tässä tilassa on 1 x lastaustasku + 1 x nosto-ovi. Kiinteist...
Kysy hintaa!Tallenna1 950 m²VarastotTuotantotilaa lastaustaskulla ja nosto-ovella. Betonirunkoinen tuotanto- ja varastokiinteistö on rakennettu vuonna 1969. Kiinteistöä on laajennettu vu...
Kysy hintaa!Tallenna -
Tallenna
1 953 m²TuotantotilatVarastotVuokrataan varasto-/tuotantotilaa Kehä III:n ja Hämeenlinnan moottoritien läheisyydessä. vapaa korkeus 7-10 metriä, pesubetonilattiat, lastaustasku se...
Kysy hintaa! -
Tallenna5 150 m²Varastot
Vuokrattavana Tuotanto-/Varastotilaa Kivistössä, 5 300 m² Vapaana 5 150 m² tuotanto-/varastotilaa, joka tarjoaa erinomaiset puitteet monipuolis...
Kysy hintaa!Tallenna
5 156 m²TuotantotilatVarastotHyväkuntoista v. 2000 valmistunutta varasto-/tuotantotilaa Kehä III:n ja Hämeenlinnan moottoritien läheisyydessä, vapaa korkeus n. 6 metriä. Tilassa n...
Kysy hintaa!OmistajaTallenna5 165 m²Varastot6 m korkeaa varastotilaa varustettuna neljällä lastaustaskulla ja usealla nosto-ovella. Tila on mahdollista jakaa esim. kahdelle käyttäjälle.Vuonna 20...
Kysy hintaa!Tallenna5 165 m²VarastotKorkeaa varastotilaa Vantaan Keimolassa. Vuokrattavana 5165 m² selkeäpohjainen varastotila. Tilassa on neljä lastaustaskua ja useita nosto-ovia. S...
Kysy hintaa!Tallenna
5 165 m²VarastotVuokrattavana varastotilaa neljällä lastaustaskulla ja usealla nosto-ovella. Vuokrattavana varastotilaa neljällä lastaustaskulla ja usealla nosto-...
Kysy hintaa!Tallenna -
Tallenna168 m² - 484 m²Toimistot
Köysikuja 1 on logistiikkakiinteistö loistavalla sijainnilla Vantaan Hämevaarassa ja sen toimistot sijaitsevat toisessa kerroksessa. Kiinteistöllä on ...
Kysy hintaa!OmistajaTallenna168 m² - 833 m²ToimistotToimistotilaa vuokrattavana Köysikujalla rustiikkisen kiinteistön toisesta kerroksesta
Kysy hintaa!Tallenna1 833 m²VarastotAlkuvuodesta 2025 vapautuva varastotila tehokkaalla logistiikkakiinteistöllä. Tilassa on 2 isoa maantason nosto-ovea. Varaston vapaa korkeus on noin 5...
Kysy hintaa!



























































































































































































































































































































