!!! ENNAKKOMARKKINOINNISSA !!! Nykyaikainen moderni brändätty toimitila Tampereella Hankkion alueella, aloitus vuonna 2026!
Liiketilat Tampere
-
KohdenostoTallenna2 000 m² - 5 000 m²LiiketilatToimistot+2Kysy hintaa!
-
KohdenostoTallenna446 m²LiiketilatToimistot
Arkkitehti Birger Federleyn suunnittelema jugendtyylinen arvotalo tarjoaa näyttävät puitteet toimistolle tai liiketilalle Tampereen keskustassa. Kansa...
Kysy hintaa! -
KohdenostoTallenna1 000 m² - 4 000 m²LiiketilatToimistot+2
!!! ENNAKKOMARKKINOINNISSA !!! Nykyaikainen moderni brändätty toimitila Tampereella Linnainmaalla, aloitus vuonna 2026! Logistisesti huippusijainti
Kysy hintaa! -
Tallenna
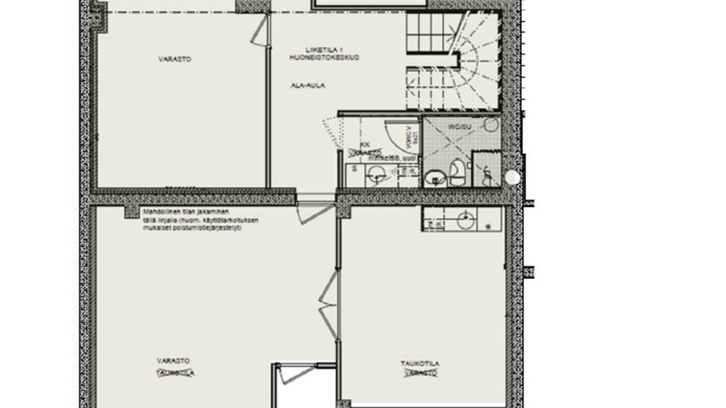
254 m²LiiketilatToimistotVuokrataan noin 93,5 m2 + 161 m2 liike/toimistotilaa Kalevasta. Siistiä tsto/myymäläkäytössä ollutta tilaa. Viilentävä iv. Autopaikkoja kiek...
Kysy hintaa! -
Tallenna
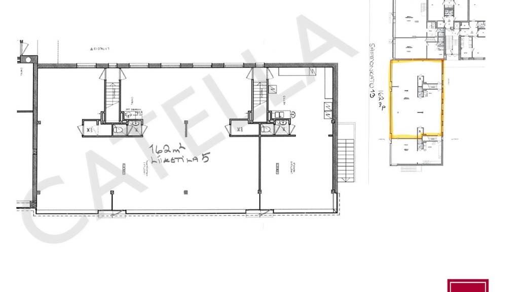
62 m² - 162 m²LiiketilatVuokrataan noin 162 m2 liiketila Sammonkadulta Kalevasta. Tila katutasossa, hyvät näyteikkunat. Ilmaisia autopaikkoja erillisellä pysäköintialue...
Kysy hintaa! -
Tallenna
58 m²LiiketilatVuokrataan noin 58 m2 toimisto- ja liiketilaa Kalevasta. Hyväkuntoista katutason liiketilaa. Remontoitu 2024. Talo rakennettu 2008. wc. Hyvät n...
Kysy hintaa! -
KohdenostoTallenna475 m²Toimistot
Vuokrataan toisen kerroksen toimistotila, joka tullaan remontoimaan nykyaikaiseksi toimitilaympäristöksi yhteistyössä tulevan käyttäjän kanssa. ...
Kysy hintaa!
-
Tallenna
44 m²LiiketilatVuokrataan noin 43,5 m2 liiketila Kalevasta. Katutason tila Prismakeskuksen lähistöltä. Voimakkaasti kehittyvä alue. Rakennusvuosi 2019. Tila...
Kysy hintaa! -
Tallenna
89 m²LiiketilatLiiketilaa erinomaisella sijainnilla asuintalon kivijalassa Kalevassa. Liikenneyhteydet ovat vertaansa vailla ja ratikalla pääsee niin keskustasta kui...
Kysy hintaa!Tallenna89 m²LiiketilatVuokrattavana liiketilaa Tampereen Kalevasta. Tämä tila on kooltaan 89 m², ja sijaitsee kiinteistön katutasossa. Tilaan kuuluu omat keittiö ja wc-t...
Kysy hintaa!OmistajaTallenna
89 m²LiiketilatVuokrattavissa 89 m2 katutason liiketila, joka sopii erinomaisesti esimerkiksi kauneushoitolaksi. Tilassa on omat keittiö- ja wc-tilat. Tilasta on ikk...
Kysy hintaa!Tallenna89 m²LiiketilatModernia liiketilaa suoraan Sammonkadulta
Kysy hintaa! -
-
Tallenna59 m²Liiketilat
Vuokrattavana siistikuntoinen 59 m² liiketila Tampereen Kalevasta, keskeisellä paikalla hyvien liikenneyhteyksien varrella. Tila on hyvässä kunnos...
22,88 €/m2/kkTallenna
59 m²LiiketilatToimistotVuokrataan noin 59 m2 liikehuoneisto Kalevasta Sammonkadun varrelta. Jäähdytetty tila isoilla näyteikkunoilla. Mahdollisuus vuokrata autohallipaikk...
Kysy hintaa! -
Tallenna60 m²Liiketilat
Nyt on vapautumassa liiketila Kalevan pääkadun varrelta Sammonkadulta. Tila sijaitsee Prisman ja KALE -liikekeskuksen välittömässä läheisyydessä. Liik...
194 000 € -
-
Tallenna
-
Tallenna
Sarankulmankatu 12
Tampere, Sarankulma233 m²LiiketilatVuokrataan Tampereen Sarankulmasta katutason liiketilaa. Tilat remontoitu v. 2018. Pihassa ilmaista pysäköintitilaa. Tilaan toivotaan pitkäaikaista ...
10,73 €/m2/kk -
Tallenna48 m²Liiketilat
Tasokasta ja hyväkuntoista liiketilaa katutasossa 48 m2 Kalevassa. Myydään liikehuoneiston yhteydessä autopihapaikka 9 000€ ja autohallipaikoja my...
98 000 €Tallenna74 m²Liiketilat179 000 € -
Tallenna134 m²LiiketilatMuut+111,90 €/m2/kk
-
-
Tallenna108 m²LiiketilatToimistot
Vuokrattavana siisti katutason n. 108,5m² liiketila Satakunnankatu 22/ Kuninkaankatu 5 kohteesta. Näyteikkunat Kuninkaankadulle. Tilasta löytyy sosia...
Kysy hintaa!OmistajaTallenna
109 m²LiiketilatSatakunnankatu sijaitsee Tampereen ydinkeskustassa ja on osa valtakunnallisesti merkittävää Tammerkosken teollisuusmaisemaa. Satakunnankadun varrella ...
Kysy hintaa!Tallenna -
Tallenna956 m²Liiketilat
Kohde on tällä hetkellä huutokaupattavana Huutokaupat.com-sivustolla. Huutokaupan lähtöhinta on 500 000,00 €. Linkki huutokauppaan https://huutoka...
Kysy hintaa! -
Tallenna
Satakunnankatu 29
Tampere, Pirkanmaa192 m²LiiketilatVarastotVuokrataan käytännöllinen, kustannustehokas ja siisti liiketila Hämeenpuiston ja Satakunnankadun kulmauksessa! Kohde sijaitsee taloyhtiön kaksikerroks...
Kysy hintaa! -
Tallenna
-
Tallenna
Satakunnankatu 36
Tampere, Pirkanmaa
166 m²LiiketilatToimistotVuokrataan noin 165,5 m2 liike/toimistotila keskustasta Satakunnankadulta. Valoisa ja siistikuntoinen katutason liike- ja toimistotila. Tiloissa on...
Kysy hintaa! -
Tallenna43 m²Liiketilat
Vuokrataan Tampereen keskustasta Satamakadulta liiketilaa. Sijainti lähellä Laukontoria. Keskeiset tiedot: -Sijainti: Tampere, Keskusta -Vuokrah...
16,05 €/m2/kkTallenna -
Tallenna89 m²Liiketilat
Vuokrataan Tampereelta Satamakadulta liiketilaa. Hyvä sijainti lähellä Laukontoria. Tiedustelut Pasi Rasku puh. 0400 171 191 pasi.rasku@muut...
15,62 €/m2/kk -
Tallenna540 m²LiiketilatToimistot+1
Lielahdessa toimistotilaa jossa iso piha-alue Lielahdessa, Sellukadulla on vapautunut n. 540m2 kokoinen valoisa toimistotila. Erittäin suuri piha-a...
Kysy hintaa! -
Tallenna
600 m² - 1 200 m²LiiketilatVarastotVuokrataan monikäyttöistä liike- ja varastotilaa Lielahdesta. Avaraa yhtenäistä tilaa noin 1.200 m2. Tilan vapaa korkeus on noin 3,5 - 3,7 m lattia...
Kysy hintaa!Tallenna1 200 m²LiiketilatVuokrataan liiketilaa/varastotilaa Tampereen Lielahdesta. Tilasta vuokrataan n. 1200 m2. Tilan vapaa korkeus on n. 3,5 m - 3,7 m lattiasta kantavaan ...
Kysy hintaa!Tallenna600 m² - 1 200 m²LiiketilatTuotantotilat+1Kysy hintaa! -
Tallenna191 m²Liiketilat
Myydään Tampereen Armonkalliolta 191 neliöinen kerhohuoneisto. Kerhohuoneisto on tällä hetkellä vuokrattu. Tiedustelut Pasi Rasku puh. 040...
7,85 €/m2/kk -
Tallenna28 m²LiiketilatMuut+1Kysy hintaa!
















































































































































































































































































































































