Vuokrataan siistiä toimistotilaa Pitäjänmäeltä, vuokrattava tila on ylimmän kerroksen 226 m2 toimistotila. Kiinteistö Purotie 1 sijainti on erinoma...
Uudet käyttö- ja sopimusehdot
Päivitämme käyttö- ja sopimusehtojamme. Uudet ehdot ovat voimassa 1.5.2025 alkaen. Tutustu ehtoihin
Tuloskiinteistöt Oy, Helsinki
Tuloskiinteistöt on Suomen vanhimpia kaupallisen kiinteistöalan asiantuntijayrityksiä. Tarjoamme kattavasti palveluita kiinteistöjen vuokrauksen, kaupankäynnin ja kiinteistöarviointien toimeksiannoissa, sekä tarjoamme kiinteistöliiketoiminnan konsultointipalveluita. Tuloskiinteistöt toimii koko maassa, ja teemme kauppoja ja vuokrauksia kaikkialla Suomessa. Olemme kumppanisi kaikissa toimitila- ja sijoituskiinteistöihin liittyvissä asioissa.
-
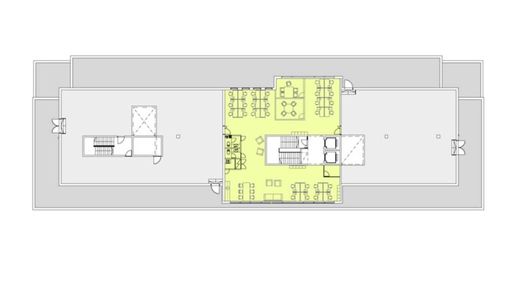
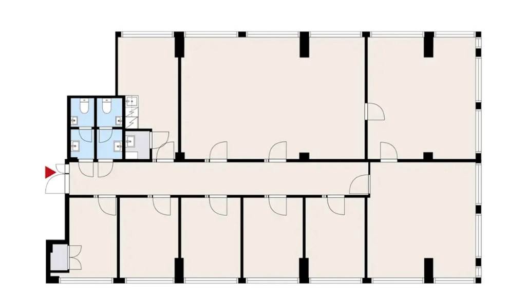
Tallenna226 m²ToimistotKysy hintaa!
-
Tallenna316 m²Toimistot
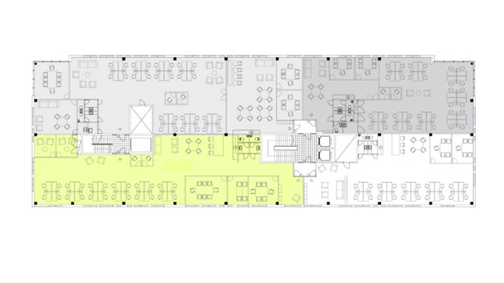
Vuokrataan siistiä toimistotilaa Pitäjänmäeltä, vuokrattava tila on 316 m2. Kiinteistö Purotie 1 sijainti on erinomainen aivan Pitäjänmäen ytimessä...
Kysy hintaa! -
Tallenna693 m²Toimistot
Vuokrataan valoisa moderni 693m2 toimistotila erinomaisella sijainnilla. Tila on tällä hetkellä pääosin huonetoimistona, mutta se voidaan muokata käyt...
Kysy hintaa! -
Tallenna3 000 m²Toimistot
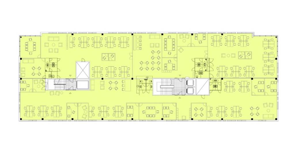
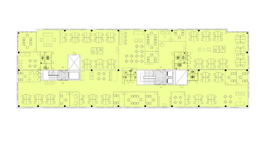
Vuokrataan siistiä toimistotilaa Pitäjänmäeltä, vuokrattava tila on 2.-4. kerroksien 2907 m2 toimistotila. Kiinteistö Purotie 1 sijainti on erinoma...
Kysy hintaa! -
Tallenna1 150 m²Toimistot
Vuokrataan siistiä toimistotilaa Pitäjänmäeltä, vuokrattava tila on 1150 m2. Kiinteistö Purotie 1 sijainti on erinomainen aivan Pitäjänmäen ytimess...
Kysy hintaa! -
Tallenna140 m²ToimistotTuotantotilat
Vuokrataan perussiistiä toimistotilaa Herttoniemessä, vuokrattava tila on 5. kerroksen 140,50 m2 toimistotila. Erinomaisella sijainnilla peruskunto...
Kysy hintaa! -
Tallenna352 m²ToimistotTuotantotilat
Vuokrattavana 352,5 m² toimistotilaa Helsingin Herttoniemessä, kiinteistön kuudennessa kerroksessa. Tila on perussiisti ja hyvässä peruskunnossa, ja s...
Kysy hintaa! -
Tallenna507 m²Toimistot
Vuokrattavana valoisa ja viihtyisä 6. kerroksen 507 m² toimistotila, josta avautuvat kauniit näkymät. Tilassa on mahdollisuus räätälöidä tilajakoa...
Kysy hintaa! -
Tallenna1 540 m²Toimistot
Vuokrataan laadukasta toimistotilaa Aitio Business Park Vivaldista, vuokrattava tila on 6. kerroksen 1540m2 toimisto. Vuokalaisen on mahdollista vaiku...
Kysy hintaa! -
Tallenna126 m²Toimistot
Vuokrataan kaunista ja valoisaa toimistotilaa keskeiseltä sijainnilta Kampista. Vuokrattava tila on 2. kerroksen 126 m2 toimistotila. Toimitila s...
Kysy hintaa! -
Tallenna145 m²Toimistot
Vuokrataan kaunista ja valoisaa toimistotilaa keskeiseltä sijainnilta Kampista. Vuokrattava tila on 3. kerroksen 145 m2 toimistotila. Toimitila s...
Kysy hintaa! -
Tallenna960 m²TuotantotilatVarastot
Vuokrataan siistiä tehdashallia aivan Lahden moottoritien välittömästä läheisyydestä. Tila on noin 960m2 halli, jossa on yksi nosto-ovi 6x6m ja jo...
Kysy hintaa! -
Tallenna157 m²Toimistot
Vuokrataan erinomaisella sijainnilla toimistotilaa Kaisaniemessä, vuokrattava tila on 157m2 toimistotila, joka sijaitsee 8. kerroksessa. Kiinteistö...
Kysy hintaa! -
Tallenna345 m²Toimistot
Vuokrattavana laadukas 345m2 toimistotila erinomaisella sijainnilla Kaartinkaupungissa. Tila saneerataan tulevalle käyttäjälle. Hyvin hoidettu kiin...
Kysy hintaa! -
Tallenna551 m²Toimistot
Vuokrattavana laadukas 551m2 toimistotila erinomaisella sijainnilla Kaartinkaupungissa. Tila koostuu isoista huoneista ja neuvottelutilasta, wc ja kei...
Kysy hintaa! -
Tallenna274 m²Toimistot
Vuokrattavana moderni 274 m² toimistotila Westendissä. Valoisassa ja avarassa toimistossa on tällä hetkellä avotilaa, avokeittiö ja wc-tilat. ...
Kysy hintaa! -
Tallenna784 m²Toimistot
Vuokrataan moderni 784 m2 5. kerroksen toimistotila erinomaisella sijainnilla. Kuvat ovat esimerkkikuvia asiakkaille toteutetuista ratkaisuista. ...
Kysy hintaa! -
Tallenna1 174 m²Toimistot
Vuokrataan moderni 1174 m2 toimistotila Vallilassa. Tila saneerataan ja räätälöidään tulevan vuokralaisen toiveiden mukaiseksi. Kuvat ovat esimerkkiku...
Kysy hintaa! -
Tallenna520 m²Toimistot
Vuokrataan moderni 520 m2 toimistotila Vallilassa. Tila saneerataan ja räätälöidään tulevan vuokralaisen toiveiden mukaiseksi. Kuvat ovat esimerkkikuv...
Kysy hintaa! -
Tallenna782 m²Toimistot
Vuokrataan moderni 782 m2 toimistotila Vallilassa. Tila saneerataan ja räätälöidään tulevan vuokralaisen toiveiden mukaiseksi. Kuvat ovat esimerkkikuv...
Kysy hintaa! -
Tallenna229 m²LiiketilatMuut
Vuokrattavana liiketilaa erinomaisella sijainnilla Kehä II:n varrella, kauppakeskus Suuriksesta. Katutason 229 m² liiketila tarjoaa mahdollisuuden...
Kysy hintaa! -
Tallenna379 m²LiiketilatTuotantotilat
Vuokrattavana 379,5 m² liike- tai tuotantotila Pasilan keskeisellä sijainnilla. Tila sijaitsee kiinteistön katutasossa (0-kerros), ja sinne on käy...
Kysy hintaa! -
Tallenna227 m²Toimistot
Vuokrattavana 227,5 m² toimistotila erinomaisella sijainnilla keskustassa. Tilasta 216m2 on toimistotilaa ja 11,5m2 aulatilaa. Kiinteistö sijai...
Kysy hintaa! -
Tallenna473 m²Toimistot
Vuokrataan laadukas 473 m2 toimistotila Espoon Leppävaarassa, Pohjois-Euroopan suurimmassa teknologiakeskittymässä. Pienellä pinta-remontilla tästä sa...
Kysy hintaa! -
Tallenna118 m²Toimistot
Vuokrataan toimistotilaa Konalassa, vuokrattavana on 3. kerroksen 118 m2 toimistotila. Tila on valoisa ja siisti, mukavuutta lisää keskitetty viilenny...
Kysy hintaa!




















































































































































































































