Vuokrattavana 71,5 m² liiketilaa Jätkäsaaressa. Tila sijaitsee katutasossa vuonna 2014 valmistuneessa nykyaikaisessa kahdeksankerroksisessa asuin- ja ...
Uudet käyttö- ja sopimusehdot
Päivitämme käyttö- ja sopimusehtojamme. Uudet ehdot ovat voimassa 1.5.2025 alkaen. Tutustu ehtoihin
Tuloskiinteistöt Oy, Helsinki
Tuloskiinteistöt on Suomen vanhimpia kaupallisen kiinteistöalan asiantuntijayrityksiä. Tarjoamme kattavasti palveluita kiinteistöjen vuokrauksen, kaupankäynnin ja kiinteistöarviointien toimeksiannoissa, sekä tarjoamme kiinteistöliiketoiminnan konsultointipalveluita. Tuloskiinteistöt toimii koko maassa, ja teemme kauppoja ja vuokrauksia kaikkialla Suomessa. Olemme kumppanisi kaikissa toimitila- ja sijoituskiinteistöihin liittyvissä asioissa.
-
Tallenna71 m²LiiketilatKysy hintaa!
-
Tallenna255 m²Toimistot
Vuokrataan laadukas 255m2 toimistotila 2. kerroksesta Kalasatamasta. Avarassa muuttovalmiissa tilassa on runsaasti avotilaa sekä useita huoneita. ...
Kysy hintaa! -
Tallenna179 m²Toimistot
Vuokrataan laadukas 179m2 toimistotila Kalasataman ytimestä. Toimisto on tällä hetkellä pääosin avotilaa. Modernissa ja tyylikkäässä Rantatie Busi...
Kysy hintaa! -
Tallenna132 m²Toimistot
Vuokrattavana 132 m² 2. kerroksen toimistotila Lahdessa erinomaisella sijainnilla. Tila vapautuu 1.10.2025. Tervetuloa tutustumaan, varaathan v...
Kysy hintaa! -
Tallenna371 m²Toimistot
Vuokrataan muuttovalmis 371m2 toimistotila Helsingin Ruoholahdessa. Tässä upeassa toimistotilassa on merinäkymät, avotilaa, erillisiä huoneita ja oma ...
Kysy hintaa! -
Tallenna356 m²Toimistot
Vuokrataan laadukasta toimistotilaa Innopoli 2:ssa, kehittyvän Otaniemen alueella. Vuokrattava tila on 4. kerroksen 356m2 toimistokokonaisuus, joka on...
Kysy hintaa! -
Tallenna256 m²Toimistot
Vuokrattavana 256 m² toimistotilaa Vallilassa, 2. kerroksessa. Toimiston sijainti on erinomainen, ja kulkuyhteydet alueelle ovat sujuvat sekä julk...
Kysy hintaa! -
Tallenna504 m²Toimistot
Vuokrataan 504m2 toimistotila kulttuurihistoriallisesti arvokkaasta toimistotalosta Kravattitehtaalta. Vuokralaisten käytössä ovat yhteiskäyttöiset ke...
Kysy hintaa! -
Tallenna196 m²Toimistot
Vuokrattavana 6. kerroksen 196 m² toimistotila Helsingin keskustassa. Tämä korkealuokkainen toimisto sijaitsee erinomaisella paikalla aivan palveluide...
Kysy hintaa! -
Tallenna254 m²Toimistot
Vuokrataan valoisa 254 m2 uudenveroinen toimistotila Espoon Otaniemestä, josta on mahdollista räätälöidä upeat toimitilat juuri teidän yrityksenne tar...
Kysy hintaa! -
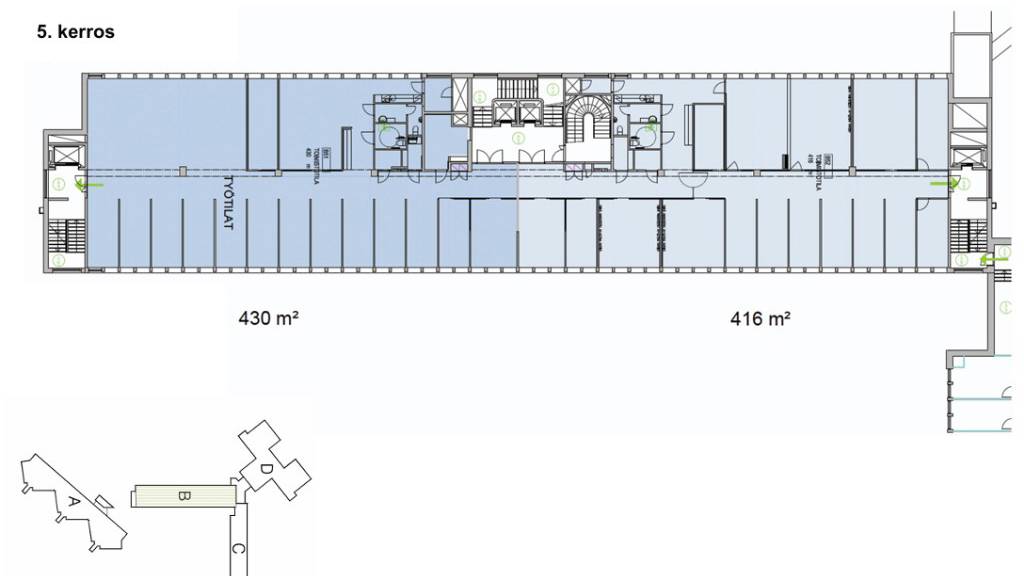
Tallenna416 m²Toimistot
Vuokrataan valoisa 416 m2 uudenveroinen toimistotila Espoon Otaniemestä, josta on mahdollista räätälöidä upeat toimitilat juuri teidän yrityksenne tar...
Kysy hintaa! -
Tallenna668 m²Toimistot
Vuokrattavana 3. kerroksen 668m2 toimistotilaa Lauttasaaren sydämessä. Aikoinaan Helsingin Villakehräämönä tunnettu kiinteistö, Kiviaidankatu 2, on...
Kysy hintaa! -
Tallenna100 m²Varastot
Vuokrataan varastotilaa Vantaan Viinikkalasta, vuokrattava tila on 100m2 ja sijaitsee ensimmäisessä kerroksessa katutasossa. Varasto- ja toimistoki...
Kysy hintaa! -
Tallenna
Ruosilantie 14
Helsinki, Konala1 583 m²ToimistotVuokrattavana 1583 m² tuotanto-/varastotilaa Helsingin Konalasta, osoitteesta Ruosilantie 14. Tila sijaitsee kiinteistön ensimmäisessä kerroksessa. ...
Kysy hintaa! -
Tallenna594 m²Toimistot
Vuokrataan laadukas ja edustava 594 m2 toimistotila Vallilasta. Kiinteistö Elimäenkatu 5 on 2015 peruskorjattu tyylikäs ja viihtyisä rakennus. Sen ...
Kysy hintaa! -
Tallenna155 m²Toimistot
Vuokrataan 155m2 toimistotila huippusuositusta Kiilasta. Toimistosta avautuvat upeat näkymät sekä Ruoholahteen että Kamppiin kauniisti remontoitujen r...
Kysy hintaa! -
Tallenna117 m²Toimistot
Korkealaatuista näyttävää toimistotilaa Punavuoren Merikorttelista! Vuokrattava tila on 3. kerroksen 117m2, jonka pohjaratkaisu ja viimeistely on mahd...
Kysy hintaa! -
Tallenna327 m²Toimistot
Korkealaatuista näyttävää toimistotilaa Punavuoren Merikorttelista! Vuokrattava tila on 2. kerroksen 327,5m2, jonka pohjaratkaisu ja viimeistely on ma...
Kysy hintaa! -
Tallenna5 476 m²Varastot
Vuokrattavana modernit ja joustavat varastotilat Vuosaaren Logistiikkakeskuksessa. Vuonna 2008 valmistunut logistiikkakeskus on osa nykyaikaista Vuosa...
Kysy hintaa! -
Tallenna2 345 m²Varastot
Vuokrattavana modernit ja joustavat varastotilat Vuosaaren Logistiikkakeskuksessa. Vuonna 2008 valmistunut logistiikkakeskus on osa nykyaikaista Vuosa...
Kysy hintaa! -
Tallenna267 m²Toimistot
Vuokrataan toimistotilaa Helsingin parhaimmalla paikalla Kampissa, vuokrattava tila on Kampin Huipun 6. kerroksen 267m2 toimistotila. Tilassa on tällä...
Kysy hintaa! -
Tallenna380 m²Toimistot
Vuokrattavana 380 m² kustannustehokasta ja nykyaikaista toimistotilaa Helsingin ydinkeskustassa. Tilassa on muunneltava pohjaratkaisu ja viimeistely, ...
Kysy hintaa! -
Tallenna460 m²Toimistot
Vuokrattavana 460 m² kustannustehokasta ja nykyaikaista toimistotilaa Helsingin ydinkeskustassa. Tilassa on muunneltava pohjaratkaisu ja viimeistely, ...
Kysy hintaa! -
Tallenna212 m²Toimistot
Vuokrattavana 212 m² kustannustehokasta ja nykyaikaista toimistotilaa Helsingin ydinkeskustassa. Tilassa on muunneltava pohjaratkaisu ja viimeistely, ...
Kysy hintaa! -
Tallenna309 m²Toimistot
Vuokrattavana 309 m² kustannustehokasta ja nykyaikaista toimistotilaa Helsingin ydinkeskustassa. Tilassa on muunneltava pohjaratkaisu ja viimeistely, ...
Kysy hintaa!




















































































































































































































































