Vuokrattavana monikäyttöistä toimistotilaa. Vuokrattavana monikäyttöistä toimistotilaa. Tilassa on avotilaa ja erillisiä huoneita.
Uudet käyttö- ja sopimusehdot
Päivitämme käyttö- ja sopimusehtojamme. Uudet ehdot ovat voimassa 1.5.2025 alkaen. Tutustu ehtoihin
Realium Oy LKV toimitilat
Realium Oy on pääkaupunkiseudulla toimiva toimitilojen välittämiseen erikoistunut yritys. Toimitilojemme valikoima on yksi laajimmista ja kattavimmista markkinoilla. Tavoitteenamme on löytää yrityksellesi uudet toimitilat, jotka soveltuvat tarpeisiinne parhaiten. Autamme yrityksiä löytämään aina kulloinkin tarjolla olevat parhaat tilat helposti ja tehokkaasti. Kerro meille tilantarpeesi, niin kartoitamme teille aina parhaat tarjolla olevat vaihtoehdot. Palvelumme ovat tilojen hakijoille ilmaisia. Tilantarpeessasi ota reippaasti meihin yhteyttä! Realium Oy LKV Tammasaarenkatu 1 00180 Helsinki info@realium.fi Puh. vaihde: 010 3263 466 Tuomo Mäkelä p. 044 050 1158 tuomo.makela@realium.fi tai Joel Keto p.045 317 0330 joel.keto@realium.fi
-
Tallenna484 m²ToimistotKysy hintaa!
-
Tallenna276 m²Toimistot
Vuokrattavana 2. kerroksen avaraa, valoisaa toimistotilaa. Vuokrattavana avaraa, valoisaa toimistotilaa. Huoneistoon kuuluu toimisto- ja neuvottelu...
Kysy hintaa! -
Tallenna399 m²Toimistot
Vuokrattavana tilavaa toimistotilaa kolmannesta kerroksesta. Vuokrattavana tilavaa toimistotilaa kolmannesta kerroksesta. Tilassa on valoisaa avoti...
Kysy hintaa! -
Tallenna272 m²Toimistot
Vuokrattavana neljännen kerroksen valoisaa ja tilavaa toimistotilaa. Vuokrattavana neljännen kerroksen valoisaa ja tilavaa toimistotilaa. Tila void...
Kysy hintaa! -
Tallenna344 m²Toimistot
Vuokrattavana toisen kerroksen monipuolista toimistotilaa. Tilassa on erillisiä toimistohuoneita, neuvottelutilaa ja taukotilaa. Vuokrattavana moni...
Kysy hintaa! -
Tallenna769 m²Toimistot
Vuokrattavana koko kerroksen hyväkuntoista, tehokasta toimistotilaa. Vuokrattavana koko kerroksen hyväkuntoista, tehokasta toimistotilaa. Tilaan on...
Kysy hintaa! -
Tallenna5 000 m²Toimistot
Vuokrattavissa isomman yrityksen tarpeisiin kaksi tai kolme siistiä ja muutosjoustavaa päällekkäistä kerrosta. Vuokrattavissa isomman yrityksen tar...
Kysy hintaa! -
Tallenna473 m²Toimistot
Vuokrattavana tilavaa, valoisaa ja modernia toimistotilaa Turun Eurocityssä. Vuokrattavana tilavaa, valoisaa ja modernia toimistotilaa Turun Euroci...
Kysy hintaa! -
Tallenna889 m²Toimistot
Vuokrattavana kolmannen kerroksen tilavaa, valoisaa, modernia toimistotilaa Tampereen keskustan läheisyydessä. Vuokrattavana kolmannen kerroksen va...
Kysy hintaa! -
Tallenna32 m²Toimistot
Vuokrattavana kolmannen kerroksen pieni toimistotila. Vuokrattavana kolmannen kerroksen pieni toimistotila. Kerroksen yhteiskäyttöinen taukokeittiö...
Kysy hintaa! -
Tallenna767 m²Toimistot
Vuokrattavana toisen kerroksen tilavaa, valoisaa, modernia toimistotilaa Tampereen keskustan läheisyydessä. Vuokrattavana toisen kerroksen valoisaa...
Kysy hintaa! -
Tallenna202 m²Liiketilat
Vuokrattavana siistiä ja avaraa liiketilaa Liikekeskus Liikeradasta Riihimäen Matkakeskuksesta. Vuokrattavana siistiä ja avaraa liiketilaa Liikekes...
Kysy hintaa! -
Tallenna
Runeberginkatu 5
Helsinki, Kamppi177 m²ToimistotVuokrattavana loistavaa, siistiä toimistotilaa. Vuokrattavana loistavaa, siistiä toimistotilaa, jossa on avotilaa ja työhuoneita.
Kysy hintaa! -
Tallenna70 m²Toimistot
Vuokrattavana valoisaa, ihanaa rauhallista toimistotilaa pienelle yrityksille. Vuokrattavana valoisaa, ihanaa rauhallista toimistotilaa pienelle yr...
Kysy hintaa! -
Tallenna
Linnoitustie 2
Espoo, Leppävaara99 m²ToimistotVuokrattavana 4. kerroksen modernia, valoisaa toimistotilaa. Vuokrattavana 4. kerroksen modernia, valoisaa toimistotilaa. toimistossa on avotilaa j...
Kysy hintaa! -
Tallenna
Hakamäenkuja 1-3/Koivuhaantie 9-11
Vantaa, Koivuhaka490 m²ToimistotTuotantotilatVuokrattavana muokattavaa monitoimitilaa, joka soveltuu on toimisto- tai tuotantotilaksi. Vuokrattavana vuokralaisen tarpeen mukaan muokattavaa mon...
Kysy hintaa! -
Tallenna156 m²Liiketilat
Vuokrattavana ensimmäisen kerroksen siistiä liiketilaa Lahden ydinkeskustassa. Vuokrattavana ensimmäisen kerroksen siistiä liiketilaa kauppakeskus ...
Kysy hintaa! -
Tallenna
Mannerheimintie 15a
Helsinki, Keskusta205 m²ToimistotVuokrattavana 1. kerroksen hyväkuntoista, siistiä toimistotilaa. Vuokrattavana 1. kerroksen siistiä toimistotilaa entisessä Töölön sokeritehtaassa....
Kysy hintaa! -
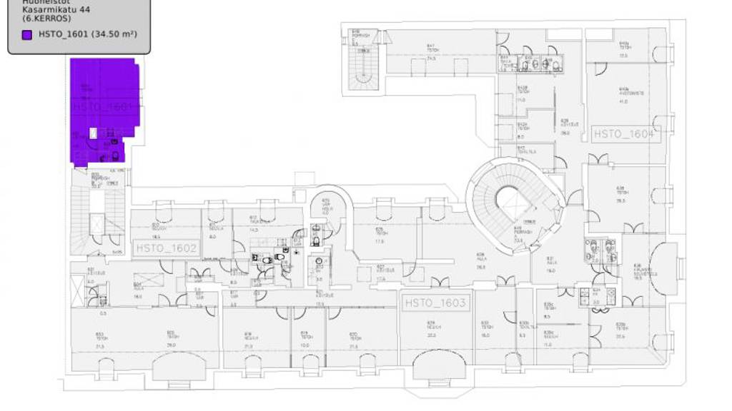
Tallenna34 m²Toimistot
Vuokrattavana pieni, siisti toimistohuone kiinteistön kuudennesta kerroksesta. Vuokrattavana pieni, siisti toimistohuone kiinteistön kuudennesta ke...
Kysy hintaa! -
Tallenna2 783 m²Varastot
Vuokrattavana modernia varastotilaa, jossa on 9 lastaustaskua, lastauslaituri ja 2 sisäänajorampia. Vuokrattavana modernia varastotilaa, jossa on 9...
Kysy hintaa! -
Tallenna450 m²TuotantotilatVarastot
Vuokrattavana kiinteistön sisään ajettavaa tuotanto/varastotilaa. Kylänpääntiellä tarjolla hyvien liikenneyhteyksien varrella teollisuus- ja varas...
Kysy hintaa! -
Tallenna200 m²Toimistot
Vuokrattavana hyvässä kunnossa olevaa toimistotilaa erinomaisella paikalla. Vuokrattavana hyvässä kunnossa olevaa toimistotilaa erinomaisella paika...
Kysy hintaa! -
Tallenna235 m²Toimistot
Vuokrattavana hyvässä kunnossa olevaa toimistotilaa erinomaisella paikalla. Vuokrattavana hyvässä kunnossa olevaa toimistotilaa erinomaisella paika...
Kysy hintaa! -
Tallenna460 m²Toimistot
Vuokrattavana muuttovalmista toimistotilaa kiinteistön toisesta kerroksesta. Vuokrattavana muuttovalmista toimistotilaa toisesta kerroksesta. Tilas...
Kysy hintaa! -
Tallenna28 m²Toimistot
Vuokrattavana 2. kerroksen kompakti avotoimisto. Vuokrattavana 2. kerroksen kompakti avotoimisto. Yhteiskäyttöiset keittiö-sekä wc-tilat löytyvät a...
Kysy hintaa!






























































































































