Vuokrattavana siistiä ja valoisaa toimistotilaa. Huoneistossa on neuvotteluhuone ja sosiaalitilat. Vuokrattavana siistiä ja valoisaa toimistotilaa....
Uudet käyttö- ja sopimusehdot
Päivitämme käyttö- ja sopimusehtojamme. Uudet ehdot ovat voimassa 1.5.2025 alkaen. Tutustu ehtoihin
Realium Oy LKV toimitilat
Realium Oy on pääkaupunkiseudulla toimiva toimitilojen välittämiseen erikoistunut yritys. Toimitilojemme valikoima on yksi laajimmista ja kattavimmista markkinoilla. Tavoitteenamme on löytää yrityksellesi uudet toimitilat, jotka soveltuvat tarpeisiinne parhaiten. Autamme yrityksiä löytämään aina kulloinkin tarjolla olevat parhaat tilat helposti ja tehokkaasti. Kerro meille tilantarpeesi, niin kartoitamme teille aina parhaat tarjolla olevat vaihtoehdot. Palvelumme ovat tilojen hakijoille ilmaisia. Tilantarpeessasi ota reippaasti meihin yhteyttä! Realium Oy LKV Tammasaarenkatu 1 00180 Helsinki info@realium.fi Puh. vaihde: 010 3263 466 Tuomo Mäkelä p. 044 050 1158 tuomo.makela@realium.fi tai Joel Keto p.045 317 0330 joel.keto@realium.fi
-
Tallenna292 m²ToimistotKysy hintaa!
-
Tallenna602 m²Toimistot
Vuokrattavana asiallista, tilavaa toimistotilaa. Vuokrattavana asiallista, tilavaa toimistotilaa. Huoneistossa on hyvät sosiaalitilat sekä neuvotte...
Kysy hintaa! -
Tallenna385 m²Toimistot
Vuokrattavana asiallista, peruskuntoista toimistotilaa. Vuokrattavana asiallista, peruskuntoista toimistotilaa. Huoneistossa on oma neuvottelutila,...
Kysy hintaa! -
Tallenna116 m²Toimistot
Siistiä, edullista toimistotilaa Sinimäessä. Vuokrattavana 4. kerroksen siistiä, edullista toimistotilaa. Tila on muokattavissa asiakkaan tarpeen m...
Kysy hintaa! -
Tallenna474 m²Toimistot
Siistiä, edullista toimistotilaa Sinimäessä. Vuokrattavana 4. kerroksen siistiä, edullista toimistotilaa. Tila on muokattavissa asiakkaan tarpeen m...
Kysy hintaa! -
Tallenna184 m²Toimistot
Vuokrattavana siistiä ja tehokasta toimistotilaa. Vuokrattavana siistiä ja tehokasta toimistotilaa, joka on muokattavissa vuokralaisten tarpeiden m...
Kysy hintaa! -
Tallenna140 m²Toimistot
Vuokrattavana siistiä ja tehokasta toimistotilaa. Vuokrattavana siistiä ja tehokasta toimistotilaa, joka on muokattavissa vuokralaisten tarpeiden m...
Kysy hintaa! -
Tallenna216 m²Toimistot
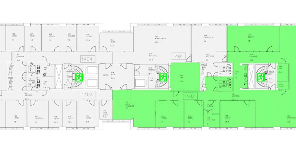
Vuokrattavana siistiä ja valoisaa toimistotilaa. Vuokrattavana siistiä ja valoisaa toimistotilaa. Toimistossa on oma neuvottelutila, varastohuone j...
Kysy hintaa! -
Tallenna318 m²Liiketilat
Vuokrattavana Hakaniemen torin vieressä liiketilaa. Vuokrattavana Hakaniemen torin vieressä siistiä katutason liiketilaa.
Kysy hintaa! -
Tallenna394 m²Toimistot
Vuokrattavana 5. kerroksen siistiä toimistotilaa. Vuokrattavana 5. kerroksen siistiä toimistotilaa. Tilassa on eri kokoisia toimistohuoneita.
Kysy hintaa! -
Tallenna352 m²Toimistot
Vuokrattavana siistiä, valoisaa toimistotilaa. Vuokrattavana siistiä, valoisaa toimistotilaa. Tilassa on eri kokoisia toimistohuoneita.
Kysy hintaa! -
Tallenna140 m²Toimistot
Vuokrattavana siistiä toimistotilaa.
Kysy hintaa! -
Tallenna30 m²Liiketilat
Kampissa Malminkadulla tarjolla pieni, katutason liiketila. Kampissa Malminkadulla tarjolla pieni, katutason liiketila, joka toiminut aiemmin kampa...
Kysy hintaa! -
Tallenna219 m²Toimistot
Vuokrattavana viihtyisää huonetoimistotilaa vanhassa kiinteistössä. Vuokrattavana viihtyisää huonetoimistotilaa vanhassa kiinteistössä. Huoneet muo...
Kysy hintaa! -
Tallenna262 m²Toimistot
Vuokrattavana neljännen kerroksen remontoitua, valoisaa avotoimistotilaa. Vuokrattavana neljännen kerroksen remontoitua, valoisaa avotoimistotilaa....
Kysy hintaa! -
Tallenna213 m²LiiketilatToimistot
Vuokrattavana liike-/toimistotilaa Helsingin keskustassa. Vuokrattavana liike-/toimistotilaa usealla työhuoneella. Tila koostuu 161 m2 liiketilasta...
Kysy hintaa! -
Tallenna
Mannerheimintie 15b
Helsinki, Keskusta666 m²ToimistotVuokrattavana 2. kerroksen monipuolista toimistotilaa Oopperatalon vieressä. Vuokrattavana 2. kerroksen monipuolista toimistotilaa Oopperatalon vie...
Kysy hintaa! -
Tallenna
Mannerheimintie 15b
Helsinki, Keskusta225 m²ToimistotVuokrattavana 2. kerroksen siistiä toimistotilaa. Vuokrattavana 2. kerroksen toimistotilaa entisessä Töölön sokeritehtaassa. Tila koostuu useista t...
Kysy hintaa! -
Tallenna
Mannerheimintie 15b
Helsinki, Keskusta35 m²ToimistotVuokrattavana 2. kerroksen toimistohuone entisessä Töölön sokeritehtaassa. Vuokrattavana 2. kerroksen toimistohuone entisessä Töölön sokeritehtaas...
Kysy hintaa! -
Tallenna
Mannerheimintie 15b
Helsinki, Keskusta48 m²ToimistotVuokrattavana 2. kerroksen toimistotilaa entisessä Töölön sokeritehtaassa. Vuokrattavana 2. kerroksen toimistotilaa entisessä Töölön sokeritehtaass...
Kysy hintaa! -
Tallenna
Mannerheimintie 15b
Helsinki, Keskusta66 m²ToimistotVuokrattavana 2. kerroksen siistiä avotoimistotila upealla paikalla Helsingin Töölössä. Vuokrattavana 2. kerroksen avotoimistotilaa entisessä Tööl...
Kysy hintaa! -
Tallenna
Mannerheimintie 15a
Helsinki, Keskusta47 m²ToimistotVuokrattavana siistiä, valoisaa toimistotilaa Sakkaroosin Tiilitalossa. Vuokrattavana siistiä, valoisaa toimistotilaa, jossa keittiö yhteiskäytössä...
Kysy hintaa! -
Tallenna
Mannerheimintie 15b
Helsinki, Keskusta32 m²ToimistotVuokrattavana 2. kerroksen toimistohuone entisessä Töölön sokeritehtaassa. Vuokrattavana 2. kerroksen toimistohuone entisessä Töölön sokeritehtaas...
Kysy hintaa! -
Tallenna
Mannerheimintie 15a
Helsinki, Keskusta1 172 m²ToimistotVuokrattavana upea kolmen kerroksen kokonaisuus edustavalla sisäänkäynnillä ja vastaanotolla Sakkaroosin tiilitalosta. Vuokrattavana Upea kolmen ke...
Kysy hintaa! -
Tallenna299 m²Toimistot
Vuokrattavana 5. kerroksen siistiä toimistotilaa kauniista arvokiinteistöstä. Vuokrattavana 5. kerroksen siistiä toimistotilaa kauniista arvokiint...
Kysy hintaa!





















































































