Rakennuksen mittava peruskorjaus on alkamassa. Kohteeseen rakennetaan täysin uusi näyttävä pääsisäänkäynti. Katutason pysäköintipaikkojen tilalle tote...
Uudet käyttö- ja sopimusehdot
Päivitämme käyttö- ja sopimusehtojamme. Uudet ehdot ovat voimassa 1.5.2025 alkaen. Tutustu ehtoihin
-
Tallenna1 122 m²ToimistotKysy hintaa!
-
Tallenna402 m²Toimistot
Vuokrataan muuttovalmis toimisto 3. kerroksesta. Tilassa useampi työhuone, neuvottelutilaa ja avotilaa. Ohessa havainnollistavia kuvia. Innopoli 3 ...
Kysy hintaa! -
Tallenna101 m²Toimistot
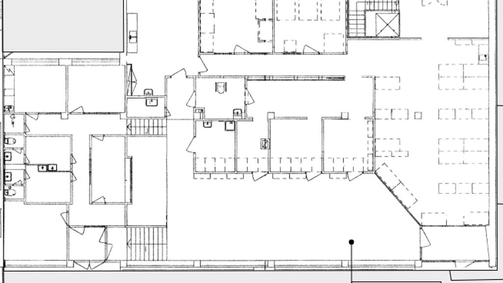
Vuokrataan 1.kerroksen toimistotila. Toimistotilat koostuvat avotilasta, erikokoisista työhuoneista sekä neuvottelutiloista. Ilmoitettu neliömäärä sis...
Kysy hintaa! -
Tallenna37 m²Toimistot
Tämä 26 m2 viihtyisä toimisto on rakennuksen toisessa kerroksessa. Näkymät tästä ovat valtatie 12 suuntaan. Kerroksessa on yhteiskäyttöiset sosiaaliti...
Kysy hintaa! -
Tallenna147 m²Toimistot
Vapaana hyväkuntoinen ja erillisjäähdytetty 147m2 toimistotila 2. kerroksessa. Tilassa on 4 toimistohuonetta, avotilaa tai showroom -tilaa, oma keitti...
Kysy hintaa! -
Tallenna104 m²Toimistot
Vuokrataan pohjakerroksen 103,5m2 toimistotila. Tilaan on oma sisäänkäynti ja siihen kuuluu omat wc- ja sosiaalitilat. Vattuniemenranta 2 on viihty...
Kysy hintaa! -
Tallenna286 m²Toimistot
Avia Wingin viidennessä kerroksessa sijaitseva monitilatoimisto. Valoisa läpitalontoimisto jossa laajat näkymät lentokenttäalueelle ja kiitoteille. Ti...
Kysy hintaa! -
Tallenna430 m²Liiketilat
Vuokrattava liiketila on kooltaan 440m2. Keskustie 17 on asuinkiinteistö Jyväskylän keskustassa. Sen kivijalassa on vuokrattavia liiketiloja. Kiint...
Kysy hintaa! -
Tallenna299 m²LiiketilatToimistot
Vuokrattavana 1. kerroksen toimisto, joka voi myös toimia liiketilana/ showroomina. Kiinteistöstä löytyy toimistotilaa kahdesta kerroksesta ja lis...
Kysy hintaa! -
Tallenna165 m²LiiketilatToimistot
Vuokrattavana katutason liike-/toimistotila vilkkaalta asiakaspaikalta. Tila on kahdessa kerroksessa: katutaso 101m2 ja alakerta 64m2. Tila ei sovellu...
Kysy hintaa! -
Tallenna343 m²Toimistot
Vuokrattavana valoisa ja tilava toimistotila kiinteistön ylimmästä kerroksesta Espoon Kutojantieltä. Kerrokseen on tavarahissiyhteys. Ylimmän kerro...
Kysy hintaa! -
Tallenna402 m²Toimistot
Vuokrattavana valoisa 402 m2 toimistotila kiinteistön 2. kerroksessa. Malmille on erinomaiset kulkuyhteydet niin julkisilla liikennevälineillä kuin...
Kysy hintaa! -
Tallenna257 m²Toimistot
Vuokrataan siisti 257 m2 toimistotila neljännestä kerroksesta. Tilassa on avotilaa, työhuoneita, neuvotteluhuone sekä keittiö- ja taukotilat. Kiinteis...
Kysy hintaa! -
Tallenna1 494 m²ToimistotVarastot
Helsingin Lauttasaaressa vuokrattavana suurikokoinen varasto- tai toimistotilaksi soveltuva kokonaisuus. Tila on mahdollista jakaa useammalle käyttäjä...
Kysy hintaa! -
Tallenna520 m²TuotantotilatVarastot
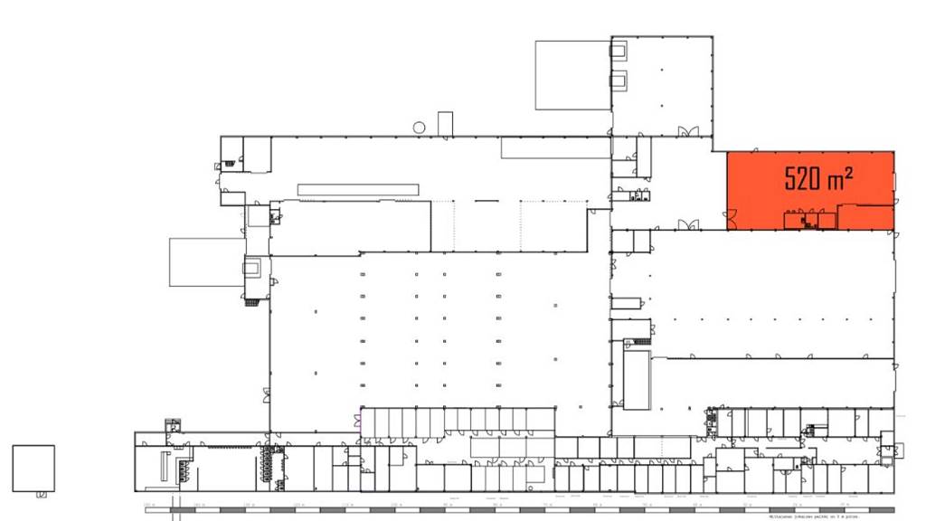
Vuokrataan tuotanto- tai varastotila 520 m2. Tilaan johtaa 3.6 m korkea ja 4.17 m leveä nosto-ovi. Tilan korkeus on 5.6 metriä kattopalkkiin. Laajassa...
Kysy hintaa! -
Tallenna8 528 m²Varastot
Terminaalitilaa, jonka vapaa korkeus 5,5-10. Sisäänajettava varasto, katettu lastauslaituri x 2 ja useita erillisiä lastaustaskuja. Osassa tilassa hyl...
Kysy hintaa! -
Tallenna1 158 m²Toimistot
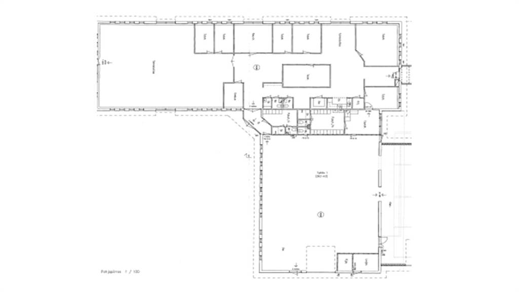
Vuokrattavana toisen kerroksen toimistotila, joka on mahdollista jakaa pienemmiksi. Ainutlaatuista toimistotilaa perinteikkäässä Auramo-talossa vuo...
Kysy hintaa! -
Tallenna157 m²LiiketilatToimistot
Myydään liiketilaa Itäkeskuksen Kauppakartanonkadulta. Tilan koko on 156,5 m2. Tila koostuu kahdesta liiketilasta, jotka yhdistetty, tämän vuoksi tila...
Kysy hintaa! -
Tallenna280 m²Toimistot
Vuokrataan siistiä huonetoimistotilaa (11 huonetta) Espoon Mikkelästä. Mahdollisuus vuokrata 335 m2 kokonaisuutena, jolloin kokonaisuuteen kuuluu iso ...
Kysy hintaa! -
Tallenna320 m²Toimistot
Vuokrataan siistiä huonetoimistotilaa (11 huonetta) Espoon Mikkelästä. Mahdollisuus vuokrata 320 m2 kokonaisuutena, jolloin kokonaisuuteen kuuluu iso ...
Kysy hintaa! -
Tallenna58 m²Toimistot
Vuokrataan toisen kerroksen toimistotila Vantaan Koivuhaasta, Puutarhatie 20 kiinteistöstä. Mahdollisuus vuokrata myös kaksi autopaikkaa. Yhteiskäyttö...
Kysy hintaa! -
Tallenna263 m² - 832 m²ToimistotTuotantotilat+1
Myydään vuoden 2024 alusta täyteen vuokrattu Lahden Kytölän alueella oleva tuotanto/varasto/näyttelytilaksi soveltuva osuus kiinteistöstä. Kiinteistö ...
Kysy hintaa! -
Tallenna126 m²Toimistot
Näppärä pienen yrityksen toimisto Helsingin ytimessä Mersumerkin alla. Talossa pyöriensäilytys ja parkkipaikka mahdollisuus ja viereisessä Autotalossa...
Kysy hintaa! -
Tallenna494 m²Toimistot
Ihana toimistotila, vuokrattavissa vaikka koko kerros noin 494m2 tai jaettuna kahdelle käyttäjälle. Kampin autotalokortteli sijaitsee näkyvällä pai...
Kysy hintaa! -
Tallenna515 m²Toimistot
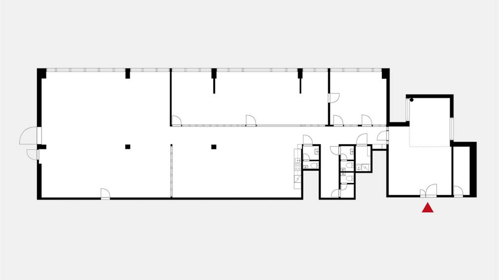
Vuokrataan muuttovalmis ensimmäisen kerroksen toimisto. Tilassa on avotilaa, useampi huone, neuvottelutila, omat keittiö- ja wc-tilat. Ohessa yleiskuv...
Kysy hintaa!




























































































































































































